
Prodej domu 6+1 • 132 m² bez realitkyHauptstraße, 49, , Hessen
Hauptstraße, 49, , HessenMHD 2 minuty pěšky • ParkováníSamostatně stojící rodinný dům z roku 1929 se nachází v centrální části Rodgau a byl během let důkladně zmodernizován a průběžně obnovován.
Původní dřevostavba se dnes prezentuje ve velmi udržovaném, moderním stavu.
Není třeba žádná rekonstrukce ani renovace – dům je připraven k nastěhování a je ideální pro kupce, kteří si přejí nastěhovat se bez stavebních zásahů.
Dům je v současné době obýván majiteli.
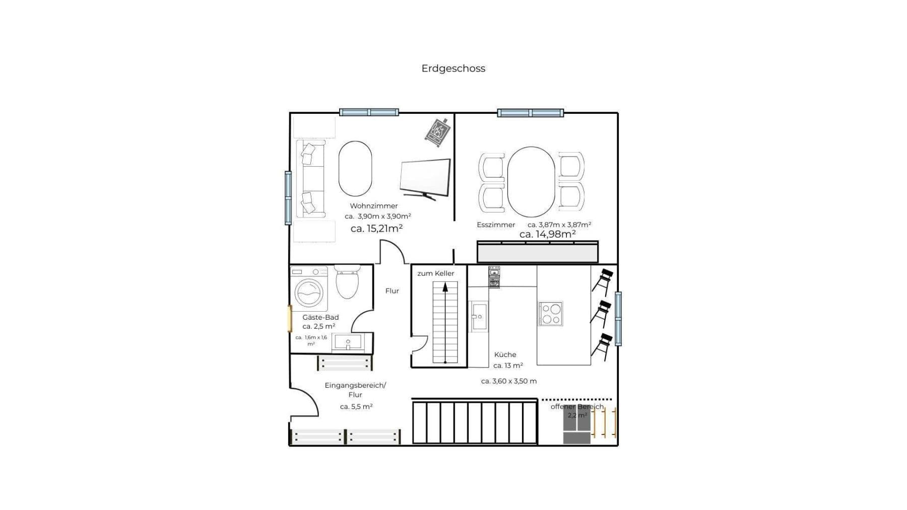
Obytná plocha & dispozice místností
Obytná plocha cca 132 m² se rozkládá mezi přízemím, patrem a podkrovím.
Celkem je k dispozici 6 místností, které lze flexibilně využít jako obývací, ložnice, pracovní či koníčkové prostory.
Dále je k dispozici:
1 sklepní místnost
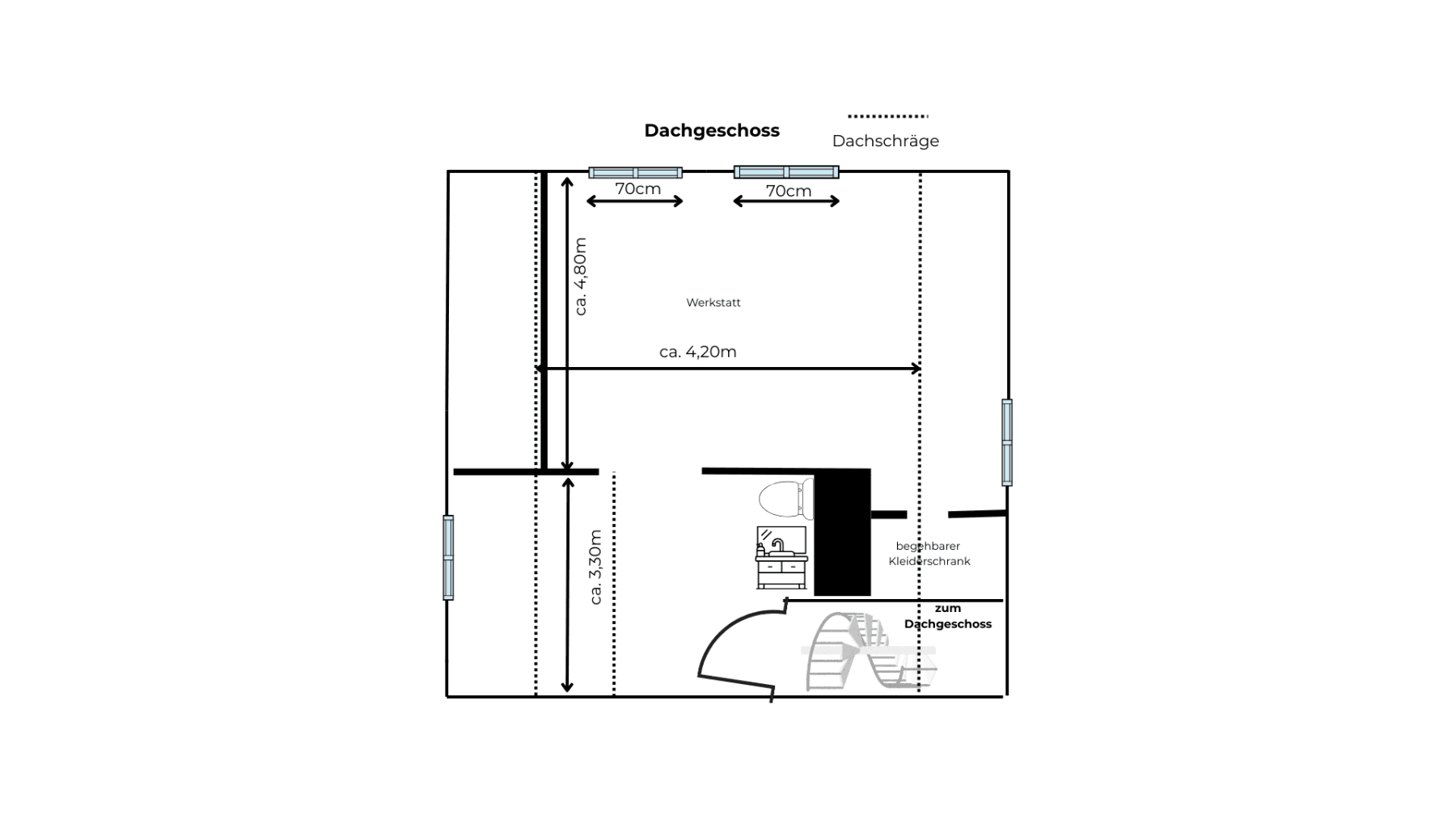
Upravené podkroví
Sanitární vybavení
– Koupelna se sprchou/vannou
– Moderní toaleta pro hosty v přízemí,
zcela renovovaná přibližně před rokem
– Toaleta a umyvadlo s dolními i horními skříněmi na podkroví
Moderní energetická a domovní technika:
Fotovoltaická elektrárna s úložným systémem pro elektřinu
Wallbox pro elektromobily
Dvě parkovací místa
Plně klimatizovaný dům s
pěti vnitřními jednotkami a jednou venkovní jednotkou,
použitelný jak k chlazení, tak k vytápění.
Toto vybavení zajišťuje vysoký komfort bydlení, energetickou efektivitu a flexibilitu v každodenním životě.
Stav & modernizace
Dům byl průběžně udržován a modernizován.
Obnova a vylepšení byla prováděna důsledně a udržitelně, takže se nemovitost dnes nachází ve velmi udržovaném, moderním stavu.
– Soukromý prodej – žádná realitní provize
– Plně zmodernizován
– Moderní energetická a klimatizační technika
Rodgau je město v okrese Offenbach ve Spolkové zemi Hesensko. Město nabízí dobrou infrastrukturu s četnými možnostmi nákupů, lékaři i školami. Díky blízkosti dálnic a veřejné dopravy je dopravní dostupnost velmi dobrá. Několik parků a zelených ploch zve k odpočinku.
V okolí nemovitosti najdete
Stále hledáte to pravé?
Nastavte si hlídacího psa. Nabídky vybrané na míru dostanete souhrnně 1× denně e-mailem. S Premium profilem máte k ruce hlídačů rovnou 5 a když se něco objeví, informují vás obratem.



















































