
Prodej domu 5+1 • 217 m² bez realitkyGRUNDSTÜCK 800M GRAZ EXKLUSIV NUR FÜR DANWOOD-HAUSBAU Hart bei Graz Steiermark 8075
GRUNDSTÜCK 800M GRAZ EXKLUSIV NUR FÜR DANWOOD-HAUSBAU Hart bei Graz Steiermark 8075MHD 2 minuty pěškyBODY 217 S ARCHITEKTURNÍM PROHLÁŠENÍM
Jako scénografie vás tento dům přivítá se zvýšenou vstupní částí a dveřmi, které vytvářejí prostor pro očekávání. Štítová okna – okouzlující prvek, slib.
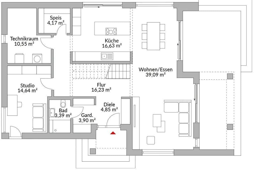
Okna sahající až k podlaze nechávají proudit světlo a propouštějí vzduch do místností. Kuchyně – otevřená, přívětivá – plynule přechází do obývacího prostoru, zatímco posuvné dveře otevírají cestu na terasu.
Studio v přízemí – útočiště, ateliér, pokoj pro hosty. Místnosti, které usnadňují každodenní život, aniž by jej dominovaly.
A nahoře? Ložnice jako útočiště. S procházející šatnou, exkluzivní koupelnou, dvojitým umyvadlem – a s možností samostatně stojící vany. Místo, které inspiruje.
Na vašem pozemku nebo v…
Güssing: Přibližně 2 600 m², zcela rovinatá poloha pozemku. Rozměry a umístění pozemku jsou volitelné – od 500 m² do 1500 m².
Zde jsou stavební pozemky nejvyšší třídy! V nejlepší lokalitě a s dechberoucím výhledem na nádherný hrad Güssing!
Güssing nabízí budoucnostně zajištěný, dostupný a energeticky nezávislý život v zeleném prostředí, což činí investici do nemovitosti zde strategickou hodnotovou investicí.
Proč Güssing
Energetický průkopník a udržitelnost:
Město je energeticky soběstačné a mezinárodně uznávané.
Vysoké pokrytí (více než 85 %) regionální biomasy pro centrální vytápění vede ke stabilním a příznivým nákladům na topení.
Dostupné ceny nemovitostí:
Ceny jsou stále výrazně nižší než rakouský průměr, což umožňuje splnit sen o vlastním domě s prostornými pozemky.
Silná infrastruktura a kvalita života:
Jako okresní předměstí zaručuje Güssing krátké vzdálenosti a vynikající občanskou vybavenost.
Plánované velké investice:
Nový vzdělávací kampus a moderní lékařské centrum (od roku 2026).
Kulturní centrum (hrad Güssing) a blízkost termálních lázní.
Plné otevření koridoru S7 přinese Güssingu a jeho obyvatelům řadu výhod:
Rychlejší spojení s metropolitními oblastmi: Rychlostní silnice zásadně zkracuje dobu jízdy na dálnici A2 směřující na jih, čímž se výrazně zkracují cesty do Grazu a Vídně.
Odlehčení regionu: Nová trať odkloní průjezdovou dopravu, která dříve zatěžovala obce jako Fürstenfeld a Rudersdorf.
Ekonomické impulzy: Nové spojení – mimo jiné přes uzlový bod u Rudersdorf/Dobersdorf a díky blízkosti k napojení v Königsdorfu – posiluje Güssing jako okresní předměstí a obchodní centrum díky lepší dostupnosti a podpoře nových průmyslových parků.
Stabilita hodnoty a rozvojový potenciál:
Cílené obecní investice do infrastruktury, oživení městského centra a technologického centra zajišťují dlouhodobou stabilitu hodnoty nemovitostí.
Obecní strategie se zaměřuje na řešení demografických výzev a na vytvoření Güssingu jako atraktivního místa pro bydlení i podnikání.
Cílová skupina
Rodiny hledající budoucnost, bezpečí a přírodu, ale i všichni, kteří kladou důraz na nízké náklady na energii a ekologickou odpovědnost.
Další pozemky v:
Pozemek, 8323 Kohldorf: Stavební pozemek s dostatkem slunce v kopcovitém území východního Štýrska, 15 km od Grazu!
Velikost: 758 m² Kupní cena: 66 000 €
Pozemek, 8323 Kohldorf: Slunečný stavební pozemek v Kohldorfu, 15 km východně od Grazu!
Velikost: 787 m² Kupní cena: 69 000 €
Pozemek, 8311 Markt Hartmannsdorf: Plně inženýrově uzavřený, slunečný stavební pozemek v Markt Hartmannsdorf.
Velikost: 920 m² Kupní cena: 53 000 €
Pozemek, 9335 Lölling Graben: Stavební pozemek s úchvatným výhledem do dálky v malebném Kärntner horském prostředí.
Velikost: 1001 m² Kupní cena: 50 000 €
Pozemek, 8075 Hart bei Graz: Slunečný pozemek přímo u bran Grazu.
Velikost: 1980 m² Kupní cena: 475 000 €
Pozemek ke koupi ve Stainzu: Slunečný pozemek na okraji obce Stainz.
Velikost: 825 m² Kupní cena: 149 000 €
Neexistuje žádné ekonomické propojení mezi vlastníkem pozemku a stavitelem domu.
Exkluzivní rodinné domy – kompletně realizované klíčové předání, přesně za atraktivní cenu a individuálně!
Rodinný dům, 5 pokojů, 2 koupelny, šatna.
Pozemek: 500 m², 1000 m², 1500 m² – dle přání k dispozici!
V ceně je zahrnuto:
• Klíčové předání (nábytek lze hned umístit a začít bydlet!)
• Dodání a montáž od vrcholu základů
• Střešní konstrukce posílená proti zatížení sněhem
• Vzduch-voda tepelné čerpadlo s podlahovým vytápěním
• Centrální větrání obytných prostor s rekuperací tepla (v létě zároveň chladí)
• Elektrické rolety v celém domě
• Veškeré podlahové krytiny podle vašeho výběru
• Veškeré sanitární vybavení dle vašeho výběru
• Příprava na fotovoltaický systém
• Balíček "Vše bez starostí"
OPTIONÁLNĚ: Samozřejmě je možná i vlastní účast na pracích!
Okamžitá informace – První konzultace!
Poradenství – Prodej
Fr. Tatjana Wyss
+43 676553 77 47
tatjana.wyss@danwood.at
DAN-WOOD staví po celém Rakousku!
Další nabídky naleznete na:
https://qr.scan.page/uploads/pdf/1752425788820_67fe2f4050367.pdf
Požádejte o stavební popis a katalogy!
Pro tento účel je nutné uvést telefonní číslo, e-mailovou adresu a adresu.
Děkujeme!
V okolí nemovitosti najdete
Stále hledáte to pravé?
Nastavte si hlídacího psa. Nabídky vybrané na míru dostanete souhrnně 1× denně e-mailem. S Premium profilem máte k ruce hlídačů rovnou 5 a když se něco objeví, informují vás obratem.



















