
Pronájem bytu 3+1 • 55 m² bez realitkyNohlstr. 160 Oberhausen Styrum Nordrhein-Westfalen 46045
Nohlstr. 160 Oberhausen Styrum Nordrhein-Westfalen 46045MHD 2 minuty pěškyDie hier angebotene Altbauwohnung überzeug durch Hohe Decken, einen tollen großzügigen Schnitt, eine große Küche und einen Balkon
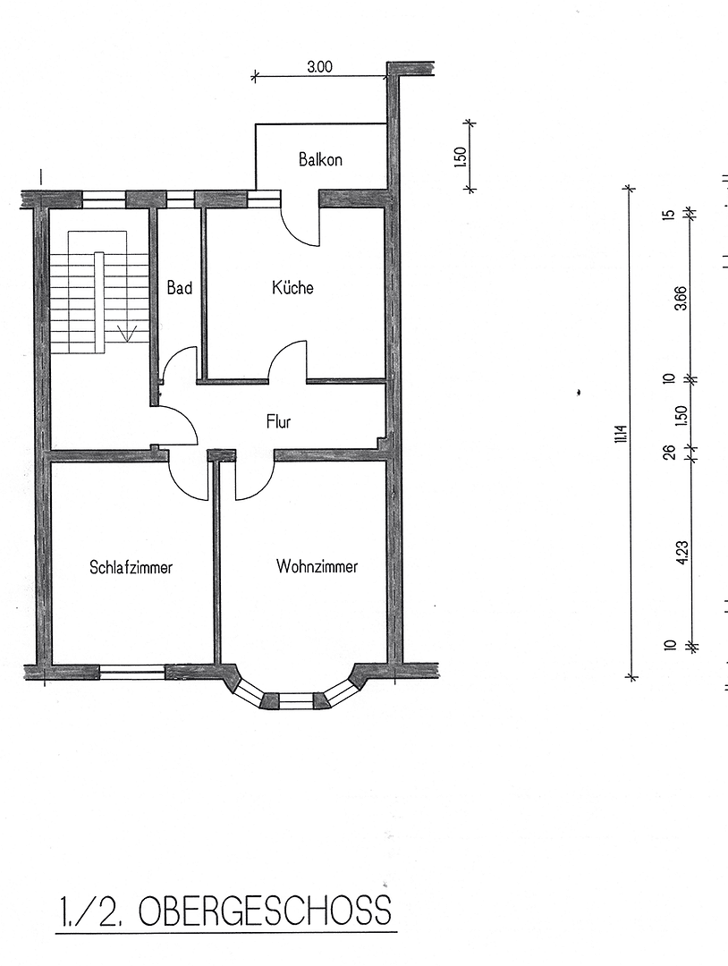
Nabízený starší byt láká vysokými stropy, úžasným a prostorným dispozicemi, velkou kuchyní a balkonem.
Ein helles Wannenbad, ein ruhiges Schlafzimmer und zuetzte das großzügige Wohnzimmer runden die 55m2 Wohnfläche ab.
Světlá vana koupelna, klidná ložnice a navíc prostorný obývací pokoj doplňují celkovou obytnou plochu o rozloze 55 m².
Der Balkon ist von der Küche aus begehbar und mit einem Holzboden belgt.
Balkon je přístupný přímo z kuchyně a je pokryt dřevěnou podlahou.
Hier verbringen Sie den Sommer und Ihre Freizeit.
Zde strávíte léto i volný čas.
Die Wohnung wurde zuletzt in 2024 komplett renoviert.
Byt byl naposledy kompletně zrenovován v roce 2024.
Die Wohnung wird bis auf die Küchenzeile leer vermietet. Die Bilder sind Beispielbilder einer privaten Einrichtung aus der Vergangenheit.
Byt je pronajímán prázdný, s výjimkou kuchyňské linky. Fotografie jsou ukázkovými snímky soukromého zařízení z minulosti.
City nah und doch ruhig, über den Dächern der Altstadt.
Město je blízko, ale přesto tiché, nad střechami historické části města.
Fußnah erreichen Sie die ÖPNV und die Innenstadt, sowie die umliegenden Läden des täglichen Bedarfs.
Ve vzdálenosti pěší chůze se nachází MHD, centrum města a také okolní obchody pro každodenní potřeby.
In direkter Nachbarschaft finden Sie Ärtze, Apotheken und ein Krankenhaus.
V bezprostředním okolí najdete lékaře, lékárny a nemocnici.
Die Wohnung ist inklusive einer voll ausgestatteten Küchenzeile.
Byt je vybaven kompletní kuchyňskou linkou.
Wenn Sie sich für die Wohnung interessieren, schreiben Sie mich direkt mit Ihrem Namen, ihrer Mailadresse und am Besten auch Telefonnummer an.
Pokud máte o byt zájem, kontaktujte mě přímo a uveďte své jméno, e-mailovou adresu a nejlépe také telefonní číslo.
Bitte nennen Sie kurz eim parr Infos zu sich.
Prosím, uveďte také několik krátkých informací o sobě.
V okolí nemovitosti najdete
Stále hledáte to pravé?
Nastavte si hlídacího psa. Nabídky vybrané na míru dostanete souhrnně 1× denně e-mailem. S Premium profilem máte k ruce hlídačů rovnou 5 a když se něco objeví, informují vás obratem.
















