Prodej pozemku • 1571 m² bez realitkyHamburg Poppenbüttel Hamburg 22391
Hamburg Poppenbüttel Hamburg 22391MHD 1 minuta pěškyV jedné z nejžádanějších lokalit pro bydlení v Hamburku, v zelené a zavedené čtvrti Poppenbüttel, se tato vysoce kvalitní nemovitost jeví jako vzácná příležitost pro investory, projektové developery nebo majitele vlastního bydlení. Pozemek o rozloze přibližně 1 571 m² zaujme svou klidnou polohou, kvalitním obytným prostředím a již pokročilou přípravou projektu.
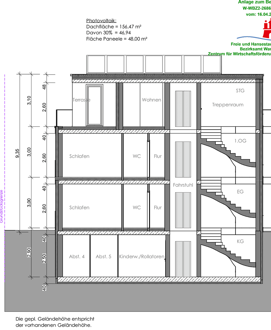
Schválený novostavbový projekt
Pro přední část pozemku byla v dubnu 2025 vydána kompletní stavební povolení (včetně posudku stavby), což zaručuje vysokou právní a plánovací jistotu.
Schválený stavební záměr zahrnuje výstavbu bytového domu o přibližně 450 m² obytné plochy, rozložené do pěti moderních bytových jednotek. Dispozice bytů je optimálně sladěna s poptávkou v této lokalitě a je vhodná jak pro kvalitní pronájem, tak pro rozdělení na byty ve vlastnictví. Pro realizaci novostavby je nutné pouze odstranit stávající dvojgaráž, čímž se eliminují větší náklady na demolici a umožní se tak rychlý začátek stavby.
Existující dvojdomovní dům s flexibilním využitím
V zadní části pozemku se nachází stávající dvojdomovní dům z roku 1975. Každá polovina domu disponuje přibližně 140 m² obytné plochy plus sklep. Dvojdomovní jednotky jsou v současnosti dočasně pronajaty a mohou být předány bez nájmů, což nabízí flexibilní možnosti využití – od pokračování pronájmu, přes vlastní bydlení až po budoucí rozvoj pozemku.
Nemovitost je prodávána přímo majitelem bez provize, prohlídky jsou kdykoli možné po domluvě.
Poppenbüttel patří mezi nejoblíbenější rezidenční lokality v severním Hamburku. Čtvrť se vyznačuje klidným a zeleným prostředím, vynikající infrastrukturou a vysokou kvalitou života. Obchody, školy, mateřské školky, zdravotní péče a volnočasové zařízení jsou v bezprostřední blízkosti. Blízkost k oblasti Alstertal a dobré spojení s veřejnou dopravou i hamburgerským letištěm dále podtrhují atraktivitu tohoto místa.
Nemovitost je prodávána přímo majitelem bez provize, prohlídky jsou kdykoli možné po domluvě.
Tato nabídka spojuje prostorný pozemek, již schválený novostavbový projekt s přibližně 450 m² obytné plochy, minimální náklady na demolici a hodnotný stávající dvojdomovní dům s flexibilní možností předání. Je to vzácná kombinace projektové jistoty, kvality lokality a rozvojového potenciálu v jedné z nejlepších rezidenčních oblastí Hamburku.
Nemovitost je prodávána přímo majitelem bez provize, prohlídky jsou kdykoli možné po domluvě.
Parametry nemovitosti
| Dostupné od | 26. 1. 2026 |
|---|---|
| Plocha pozemku | 1 571 m² |
| Číslo inzerátu | 979468 |
|---|---|
| Cena za jednotku | 1 337 € / m2 |
Co tato nemovitost nabízí?
| MHD 1 minuta pěšky |
V okolí nemovitosti najdete
Stále hledáte to pravé?
Nastavte si hlídacího psa. Nabídky vybrané na míru dostanete souhrnně 1× denně e-mailem. S Premium profilem máte k ruce hlídačů rovnou 5 a když se něco objeví, informují vás obratem.











