
Pronájem bytu 4+kk • 115 m² bez realitkyKolínská, Praha - Vinohrady
Kolínská, Praha - VinohradyVýtah • Balkón 3 m² • Sklep 9 m²Vyžadováno pojištění odpovědnostiVyžadováno ověření bezdlužnostiMáte o nabídku zájem?
Ušetřete 58 000 Kč na provizi a komunikujte se všemi majiteli.
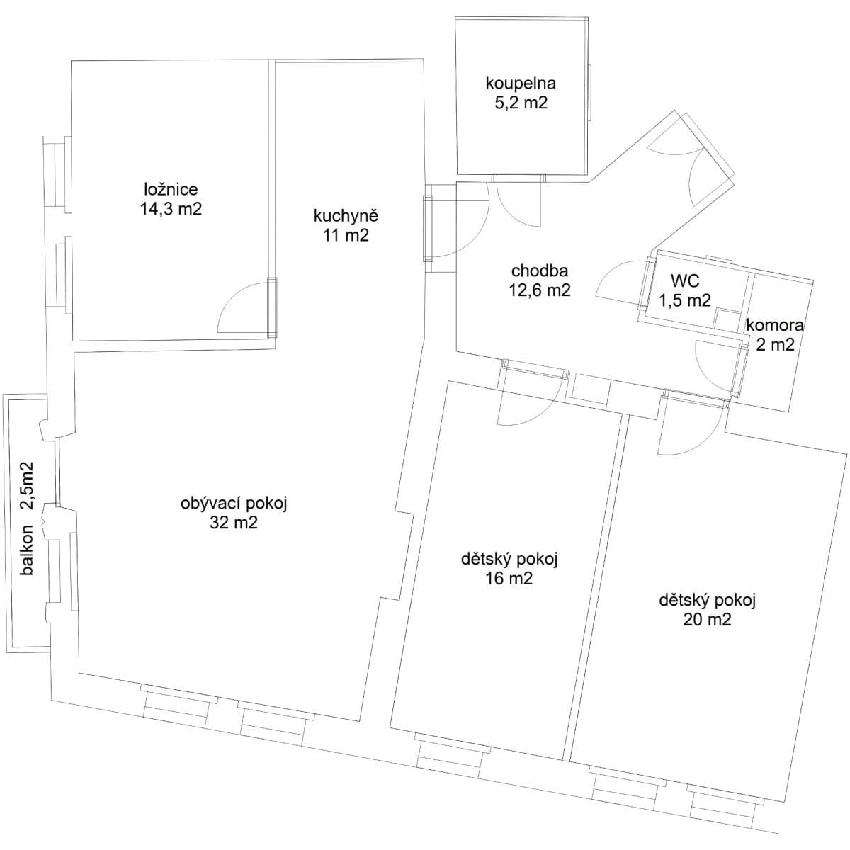
Pronajmu krásný světlý byt 4+kk 115 m2 v Praze na Vinohradech. Velký obývací pokoj s kuchyní, ložnice, dva dětské pokoje, koupelna, WC, komora, balkon, sklep, úložná půda. Byt je po kompletní kvalitní rekonstrukci, která byla právě dokončena. Okna jsou nová, špaletová, celkem třívrstvá. Bezpečnostní vstupní dveře. Vytápění vlastním plynovým kotlem. Dům je zrekonstruovaný, s výtahem.
-
Byt je v pátém podlaží, má celkem devět oken a tedy spoustu světla. Má praktickou dispozici - všechny pokoje jsou neprůchozí. Plocha bytu je 115 m2, plus balkon 2,5 m2, sklep 9 m2 a úložná půda nad chodbou 16 m2.
-
Dům je v klidné ulici, kousek od náměstí Jiřího z Poděbrad. V lokalitě je veškerá občanská vybavenost, obchody, restaurace, kavárny. Obchodní centrum Flora je pět minut pěšky. Základní škola je hned za rohem. Výborná dostupnost MHD. Blízko jsou stanice metra Jiřího z Poděbrad i Flora a tramvajové zastávky.
-
Měsíčně 58 000 Kč plus poplatky. Zálohy na služby v rámci domu jsou 1 000 Kč na osobu. Elektřina a plyn budou převedeny na nájemce. Přímo od majitele, žádná provize. K dispozici ihned.
V okolí nemovitosti najdete
Máte o nabídku zájem?
Ušetřete 58 000 Kč na provizi a komunikujte se všemi majiteli.
Stále hledáte to pravé?
Nastavte si hlídacího psa. Nabídky vybrané na míru dostanete souhrnně 1× denně e-mailem. S Premium profilem máte k ruce hlídačů rovnou 5 a když se něco objeví, informují vás obratem.





















