
Pronájem bytu 2+1 • 68 m² bez realitkyHauptstraße 13a, , Dolní Sasko
Hauptstraße 13a, , Dolní SaskoMHD 2 minuty pěšky • ParkováníUdržovaná duplexní byty v Hollenstedtu – Váš nový domov v klidné lokalitě!
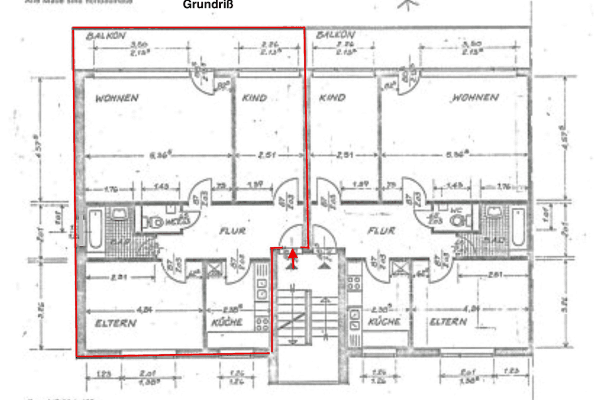
Tento půvabný duplexní byt o rozloze přibližně 68 m² nabízí dva podlaží s promyšleným dispozicí. Velké okenní plochy zajišťují světlé a prostorné místnosti, zatímco obývací kuchyně s výklenkem zve ke společnému vaření a vychutnávání jídla.
V přízemí je k dispozici koupelna s oknem a samostatné návštěvnické WC, zatímco na horním patře Vás čeká útulná ložnice a studio s praktickými vestavěnými skříněmi z pravého dřeva.
Podlahové krytiny vhodné pro alergiky – dlaždice a parkety – jsou nenáročné na údržbu a moderní.
V roce 2024 byla instalována nová plynová kondenzační topení (Vaillant).
Nájem se skládá následovně:
• Měsíční studený nájem: 850,00 €
• Měsíční nájem za carport: 50,00 €
• Měsíční náklady na topení: 140,00 €
• Měsíční provozní náklady: 140,00 €
Celkový teplý nájem: 1.180,00 €
Kauce: 2.550,00 € (= 3 měsíční nájmy)
Nemovitost se nachází přímo v srdci Hollenstedtu, okouzlující obce v okrese Harburg. Všechny důležité služby denní potřeby – supermarkety, pekárny, lékaři a lékárny – jsou pohodlně dostupné pěšky.
Rodiny ocení blízkost mateřských školek a škol.
Díky přímé poloze na hlavní silnici je dopravní dostupnost excelentní – dálnici A1 dosáhnete během několika minut, takže Hamburk a Brémy jsou rychle dostupné. Zároveň si vychutnáte klid vyspělé rezidenční čtvrti s množstvím zeleně v okolí.
Četné pěší a cyklistické stezky Vás zve k odpočinku v přírodě.
Poloha bytu kombinuje venkovskou idylku s městskou blízkostí – ideální pro všechny, kteří ocení dobrou infrastrukturu, ale nechtějí se vzdát klidu a přírody.
Vybavení a přednosti:
• Duplexní byt rozložený na 2 úrovně
• Přibližně 68 m² obytné plochy
• Koupelna s oknem a návštěvnické WC
• Obývací kuchyně s výklenkem a oknem pro jídelní kout
• Velkorysá okenní stěna v obývacím pokoji
• Studio na střeše
• Vestavěné skříně z pravého dřeva
• Podlahy vhodné pro alergiky (dlaždice, kámen, parkety)
• Klidná poloha, orientovaná dozadu
• Nové centrální topení (rok instalace 2024)
HAFERKAMP GMBH
Strandallee 11
23683 Scharbeutz (Haffkrug)
Telefon: 04563 / 423998-0
Fax: 04563 / 423998-9
E-mail: info(at)haferkamp-grundbesitz.de
Ředitel: Jens-Hendrik Haferkamp
Okresní soud Lübeck HRB 23030 HL
DIČ: DE304113136
Haferkamp Grundbesitz je obchodní označení společnosti Haferkamp GmbH.
Činnost vyžadující povolení podle § 34c odst. 1 obchodního řádu
Dozorový orgán:
Obec Scharbeutz (úřad pro podnikání) · Am Bürgerhaus 2, 23683 Scharbeutz
Haferkamp Grundbesitz je obchodní označení společnosti Haferkamp GmbH
Osoba odpovědná za obsah dle § 6 MDStV:
Jens-Hendrik Haferkamp
V okolí nemovitosti najdete
Stále hledáte to pravé?
Nastavte si hlídacího psa. Nabídky vybrané na míru dostanete souhrnně 1× denně e-mailem. S Premium profilem máte k ruce hlídačů rovnou 5 a když se něco objeví, informují vás obratem.












