
Prodej domu 5+1 • 141 m² bez realitkyJohan-Kaiser-Ring 148, , Hessen
Johan-Kaiser-Ring 148, , HessenMHD 2 minuty pěšky • ParkováníHerzlich willkommen in Ihrem neuen Zuhause!
Srdečně Vás vítáme ve Vašem novém domově!
Dieses attraktive Reihenmittelhaus überzeugt durch eine durchdachte Raumaufteilung, einen gepflegten Garten sowie zwei Stellplätze direkt vor dem Haus. Mit ca. 141 m² Wohnfläche bietet es ideale Voraussetzungen für Paare, kleine Familien oder alle, die modernes Wohnen in ruhiger Lage schätzen.
Tento atraktivní řadový dům zaujme promyšleným dispozicí, upravenou zahradou a dvěma parkovacími stáními přímo před domem. S přibližně 141 m² obytné plochy nabízí ideální podmínky pro páry, malé rodiny nebo ty, kdo ocení moderní bydlení v klidné lokalitě.
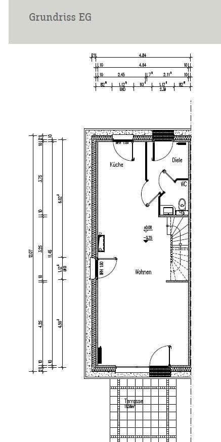
Im Erdgeschoss empfängt Sie ein großzügiger, lichtdurchfluteter Wohn- und Essbereich mit breiter Fensterfront, der einen harmonischen Übergang zur überdachten Terrasse und in den Garten schafft – der perfekte Ort für gemütliche Stunden oder geselliges Beisammensein.
V přízemí Vás přivítá prostorný, světlý obývací a jídelní prostor s širokými prosklenými okny, který vytváří harmonický přechod na zastřešenou terasu a do zahrady – ideální místo pro útulné chvíle či společenská setkání.
Die angrenzende Küche ist funktional angelegt und durch ihr offenes Konzept nahtlos in den Wohn- und Essbereich integriert. Kurze Wege beim Kochen und die direkte Nähe zum Essbereich sorgen dafür, dass Sie stets mitten im Geschehen bleiben – sei es beim Familienfrühstück oder beim gemeinsamen Abendessen mit Gästen.
Přilehlá kuchyň je funkčně zařízená a díky otevřenému konceptu je bezproblémově začleněna do obývacího a jídelního prostoru. Krátké vzdálenosti při vaření a přímá blízkost jídelny zajišťují, že budete vždy uprostřed dění – ať už při rodinné snídani nebo společné večeři s hosty.
Ein Gäste-WC rundet diese Ebene komfortabel ab und sorgt für zusätzlichen Komfort.
K tomu patří také hostinské WC, které komfortně doplňuje tuto úroveň a zvyšuje pohodlí.
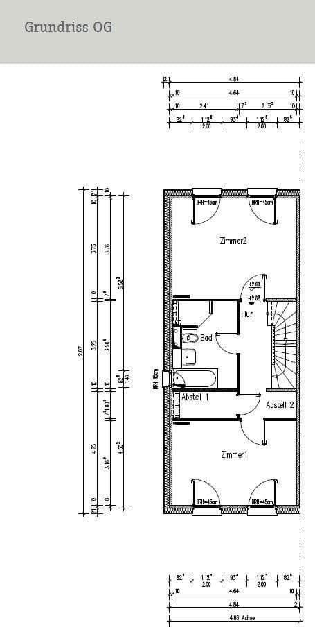
Im Obergeschoss erwarten Sie zwei helle, gut geschnittene Zimmer, die sich ideal als Elternschlafzimmer, Kinderzimmer oder Homeoffice nutzen lassen. Das Hauptschlafzimmer verfügt über eine praktische, begehbare Nische, die sich hervorragend als Kleiderschrank einrichten lässt – ein cleverer Stauraum, der Ordnung und Komfort vereint.
V patře na Vás čekají dva světlé, dobře dispozicované pokoje, které jsou ideální jako ložnice pro rodiče, dětské pokoje nebo domácí kancelář. Hlavní ložnice disponuje praktickou, přístupnou výklenkem, který lze skvěle využít jako šatní skříň – chytré úložné řešení spojující pořádek a komfort.
Das moderne Badezimmer auf dieser Ebene ist mit Badewanne und separater Dusche ausgestattet. Zusätzlich steht eine Abstellkammer zur Verfügung, die praktischen Stauraum für Dinge des täglichen Bedarfs bietet.
Moderní koupelna na této úrovni je vybavena vanou a samostatnou sprchou. Navíc je k dispozici komora, která poskytuje praktický úložný prostor pro věci denní potřeby.
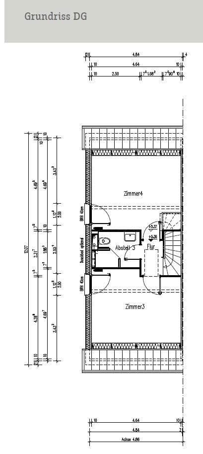
Ein besonderes Highlight des Hauses ist das Dachgeschoss: Es bietet zwei weitere vollwertige Zimmer, ideal als zusätzliche Schlafzimmer, Gästezimmer oder Hobbybereiche. Ergänzt wird diese Etage durch ein modernes Duschbad, das den Wohnkomfort weiter erhöht.
Výjimečným prvkem domu je podkrovní patro: Nabízí další dva plnohodnotné pokoje, ideální jako dodatečné ložnice, pokoj pro hosty nebo zónu pro volnočasové aktivity. Tuto úroveň doplňuje moderní sprchová koupelna, která dále zvyšuje komfort bydlení.
Vom Dachgeschoss aus haben Sie zudem Zugang zum Dachboden, der zusätzlichen Stauraum bietet und sich perfekt zur Unterbringung seltener genutzter Gegenstände eignet – eine praktische Erweiterung des Wohnraums, die Flexibilität und Ordnung schafft.
Z podkroví máte také přístup na půdu, která nabízí dodatečný úložný prostor a je ideální pro uložení věcí, které se používají jen zřídka – praktické rozšíření obytného prostoru, které přináší flexibilitu a pořádek.
Der liebevoll angelegte Garten mit überdachter Terrasse lädt zu entspannten Stunden im Freien ein – ideal für Grillabende, Spielmöglichkeiten für Kinder oder ein kleines Kräuter- und Blumenbeet. Die Terrasse ist mit einer lichtdurchlässigen Glasüberdachung versehen, die viel Tageslicht hereinlässt und zugleich Schutz bei jedem Wetter bietet.
Pečlivě upravená zahrada se zastřešenou terasou zve k odpočinku na čerstvém vzduchu – ideální pro grilovací večery, dětská hřiště nebo malý bylinkový a květinový záhon. Terasa je opatřena prosvětlenou skleněnou střechou, která propouští spoustu denního světla a zároveň poskytuje ochranu za jakéhokoli počasí.
Ein zusätzliches Gartenhäuschen rundet das Angebot ab und lässt sich vielseitig nutzen – sei es zur Aufbewahrung von Gartengeräten, Fahrrädern oder als kleiner Hobbyraum. So genießen Sie Ihren Außenbereich in jeder Jahreszeit komfortabel und flexibel.
Další zahradní domek doplňuje nabídku a lze jej využít mnoha způsoby – ať už k uschování zahradního nářadí, kol nebo jako malý hobby pokoj. Takto si můžete svůj venkovní prostor užívat komfortně a flexibilně v každém ročním období.
Ein rundum stimmiges und vielseitiges Zuhause, das durch Komfort, durchdachte Raumaufteilung und eine familienfreundliche Lage überzeugt – ideal für alle, die Wert auf Wohnqualität und eine ausgewogene Mischung aus Natur und Infrastruktur legen.
Jedinečný a všestranný domov, který zaujme svým komfortem, promyšlenou dispozicí a rodinně přátelskou lokalitou – ideální pro všechny, kdo si cení kvality bydlení a vyvážené kombinace přírody a infrastruktury.
Das Reihenmittelhaus befindet sich in einer ruhigen und dennoch verkehrsgünstigen Wohnlage am Johann-Kaiser-Ring in Hanau. Die Nachbarschaft ist geprägt von gepflegten Reihen- und Einfamilienhäusern und bietet ein harmonisches, familienfreundliches Umfeld.
Řadový dům se nachází v klidné, avšak dopravně výhodné lokalitě na ulici Johann-Kaiser-Ring v Hanau. Okolí je charakterizováno upravenými řadovými a rodinnými domy a nabízí harmonické, rodinně přátelské prostředí.
Alle wichtigen Einkaufsmöglichkeiten für den täglichen Bedarf – darunter Supermärkte, Bäckereien und Drogerien – sind schnell erreichbar. Besonders praktisch: Das Fachmarktzentrum Kinzigbogen liegt nur wenige Gehminuten entfernt und bietet ein umfangreiches Sortiment an Geschäften und Dienstleistungen. Auch Arztpraxen und Apotheken befinden sich in unmittelbarer Nähe.
Všechny důležité možnosti nákupu pro každodenní potřeby – včetně supermarketů, pekáren a drogérií – jsou rychle dostupné. Zvláště praktické je, že obchodní centrum Kinzigbogen se nachází jen pár minut chůze a nabízí široký sortiment obchodů a služeb. Také lékařské ordinace a lékárny jsou v bezprostřední blízkosti.
Für Familien ist die Lage ideal: Kindertagesstätten und Grundschulen sind bequem zu Fuß oder mit dem Fahrrad erreichbar, weiterführende Schulen sind gut angebunden. Zahlreiche Spielplätze, Sport- und Freizeitangebote sowie Grünflächen und Parkanlagen laden zu Aktivitäten im Freien ein und sorgen für hohe Lebensqualität.
Pro rodiny je lokalita ideální: jesle a základní školy jsou pohodlně dostupné pěšky nebo na kole, střední školy jsou dobře napojeny. Řada dětských hřišť, sportovních a volnočasových aktivit, stejně jako zelené plochy a parky, zve k venkovním aktivitám a zajišťují vysokou kvalitu života.
Pendler profitieren von der schnellen Anbindung an die A66, B43a und B45, sodass Ziele im gesamten Rhein-Main-Gebiet komfortabel erreichbar sind. Auch die Hanauer Innenstadt sowie öffentliche Verkehrsmittel mit regelmäßigen Verbindungen in die umliegenden Stadtteile liegen nur wenige Minuten entfernt.
Dojíždějící pracovníci ocení rychlé napojení na dálnici A66, silnice B43a a B45, což umožňuje komfortní dosažení destinací po celém regionu Rýn-Main. Centrum Hanau a veřejná doprava s pravidelnými spoji do okolních čtvrtí jsou také vzdáleny jen pár minut.
So vereint diese Wohnadresse ruhiges, naturnahes Wohnen mit hervorragender Infrastruktur, hoher Mobilität und vielseitigen Freizeitmöglichkeiten – ideal für Familien, Berufspendler oder alle, die eine ausgewogene Lebensqualität suchen.
Tato adresa sjednocuje klidné, přírodově orientované bydlení s vynikající infrastrukturou, vysokou mobilitou a pestrými možnostmi volnočasových aktivit – ideální pro rodiny, dojíždějící pracovníky nebo všechny, kdo hledají vyváženou kvalitu života.
Das Haus verfügt über fünf gut geschnittene Zimmer auf drei Ebenen und bietet zwei moderne Bäder, eines mit Badewanne und separater Dusche im Obergeschoss, das andere als Duschbad im Dachgeschoss, sowie ein Gäste-WC im Erdgeschoss. Die offene Küche ist mit einer modernen Einbauküche ausgestattet und nahtlos in den Wohn- und Essbereich integriert. Zusätzlichen Stauraum bieten die praktische Abstellkammer und der Dachboden.
Dům disponuje pěti dobře propracovanými pokoji rozloženými do tří úrovní a nabízí dvě moderní koupelny – jednu s vanou a samostatnou sprchou v patře, druhou jako sprchové koupelnu v podkroví, a také hostinské WC v přízemí. Otevřená kuchyň je vybavena moderním vestavěným nábytkem a je bezproblémově integrována do obývacího a jídelního prostoru. Další úložný prostor poskytují praktická komora a půda.
Das Haus verfügt über fünf gut geschnittene Zimmer auf drei Ebenen und bietet zwei moderne Bäder – eines mit Badewanne und separater Dusche im Obergeschoss, das andere als Duschbad im Dachgeschoss – sowie ein Gäste-WC im Erdgeschoss. Die offene Küche ist mit einer modernen Einbauküche ausgestattet und nahtlos in den Wohn- und Essbereich integriert. Zusätzlichen Stauraum bieten die praktische Abstellkammer und der Dachboden.
Dům má pět dobře dispozicovaných pokojů rozložených do tří úrovní a nabízí dvě moderní koupelny – jednu s vanou a oddělenou sprchou v patře, druhou jako sprchovou koupelnu v podkroví – a hostinské WC v přízemí. Otevřená kuchyň je vybavena moderní vestavěnou kuchyňskou linkou a je plynule začleněna do obývacího a jídelního prostoru. Další úložný prostor představují praktická komora a půda.
Die Wohnbereiche sind mit hochwertigen Laminat ausgestattet. Die Bäder, das Gäste-WC sowie Küche und Eingangsbereich funktional gefliest. Der Garten mit überdachter Glas-Terrasse lädt zu entspannten Stunden im Freien ein und wird durch ein Gartenhäuschen ergänzt, das zusätzlichen Stauraum oder Platz für Hobbys bietet. Zwei Stellplätze direkt am Haus stehen zur Verfügung, jeweils zu einem Preis von 10.000 €.
Obytné prostory jsou vybaveny kvalitní laminátovou podlahou. Koupelny, hostinské WC, stejně jako kuchyň a vstupní prostor jsou funkčně obloženy dlažbou. Zahrada se zastřešenou skleněnou terasou zve k odpočinku venku a je doplněna zahradním domkem, který nabízí dodatečný úložný prostor či místo pro koníčky. Dvě parkovací místa přímo u domu jsou k dispozici, každé za cenu 10 000 €.
V okolí nemovitosti najdete
Stále hledáte to pravé?
Nastavte si hlídacího psa. Nabídky vybrané na míru dostanete souhrnně 1× denně e-mailem. S Premium profilem máte k ruce hlídačů rovnou 5 a když se něco objeví, informují vás obratem.





























