
Prodej bytu 3+1 • 56 m² bez realitkyFriedrich-Pieper-Str. 6, , Severní Porýní-Vestfálsko
Friedrich-Pieper-Str. 6, , Severní Porýní-VestfálskoMHD 2 minuty pěšky • ParkováníTento byt se nachází v kompletně zrekonstruované vile v exkluzivní vilové čtvrti Friedrichshöhe/Am Königsberg v Detmold-Heiligenkirchen a jde o prvotní využití. Stav budovy odpovídá novostavbě, protože byly kompletně obnoveny všechny rozvody, podlahy, stěny, stropy, koupelny, topení a střecha.
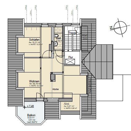
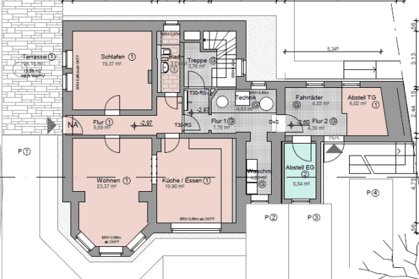
Byt se nachází v posledním patře čtyřrodinného domu (2. patro) a má rozlohu 70 m² (podle nařízení o obytných plochách 56 m²). Nádherná střešní terasa o rozloze 9 m² nabízí přímý výhled na památník Hermannsdenkmal a Teutoburger Wald.
Nová střecha se třemi veknami byla vysoce izolována, takže je zaručeno pohodlí i v létě. Okna jsou trojskleněná.
Podlahové topení může být pokryto buď parketovou podlahou nebo dlažbou. V koupelně se nachází bezbariérová sprcha s prosklenými dveřmi.
K bytu dále náleží úložná místnost, prádelna, parkovací místo a sklep na kola.
Pozemek má rozlohu 802 m².
Další informace o budově a fotografie ostatních nabízených bytů naleznete na www.villa-sonnenblick.com.
Lokalitu charakterizuje klidná rezidenční oblast s exkluzivními vilami a výhledem na památník Hermannsdenkmal. Také LWL skanzen je vzdálen jen pár minut.
Zvláště je třeba vyzdvihnout rodinně přívětivé obytné prostředí a velmi dobrou infrastrukturu. Autobusová linka 701 je vzdálena přibližně 200 m, do krásného centra Detmoldu se dostanete na kole za 10 minut. V Heiligenkirchen se nachází veškeré obchody a zařízení pro každodenní potřeby (Rewe, lékárna, lékaři, pošta, čerpací stanice, mateřská škola, školy atd.).
Všechny byty mají podlahové topení a multimediální připojení. Budova disponuje moderním vzduch-voda tepelným čerpadlem se centrálním zásobováním teplou vodou. Velké balkony zajišťují výjimečný pocit bydlení.
V okolí nemovitosti najdete
Stále hledáte to pravé?
Nastavte si hlídacího psa. Nabídky vybrané na míru dostanete souhrnně 1× denně e-mailem. S Premium profilem máte k ruce hlídačů rovnou 5 a když se něco objeví, informují vás obratem.











