
Prodej bytu 4+1 • 105 m² bez realitky, Bavorsko
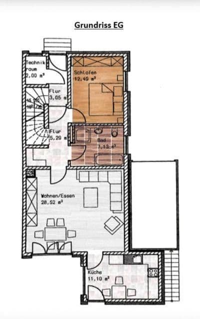
, BavorskoMHD do minuty pěšky • Parkování • GarážModerní byt v přízemí se soukromou zahradou, prostorným suterénem a energeticky efektivní výstavbou (KfW-40, tepelné čerpadlo využívající podzemní vodu, solární systém).
Světlé místnosti, udržovaný stav a promyšlené uspořádání prostor jsou ideální pro rodiny, páry nebo práci z domova.
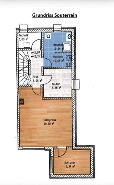
Spací kout v suterénu umožňuje flexibilní využití.
Nízké provozní náklady jsou zajišťovány díky inovativnímu vytápění.
Perfektní poloha je vhodná pro dojíždějící do Augsburgu a Mnichova.
Mering nabízí velmi dobrou infrastrukturu pro každodenní potřeby a kombinuje klidné bydlení s vynikající dopravní dostupností.
Rodinně přívětivá čtvrť se vyznačuje příjemným sousedstvím a krátkými vzdálenostmi.
Dopravní spojení veřejnou dopravou je ideální: nádraží v Meringu umožňuje rychlou dostupnost do Augsburgu (cca 15 minut) a Mnichova (cca 25 minut) – což je velkou výhodou pro dojíždějící.
Navíc blízká spolková silnice B2 zajišťuje rychlé napojení na regionální i nadregionální silniční síť.
K dispozici je řada nákupních možností, lékařů, mateřských škol, základních a středních škol a gastronomická nabídka přímo na místě, což zajišťuje vysokou kvalitu života.
I nabídka volnočasových a rekreačních aktivit nenechává nic na přání: venkovní bazén, jezera, cyklostezky, pěší stezky a další možnosti odpočinku se nacházejí v bezprostřední blízkosti a vybízejí k aktivnímu trávení volného času.
Nemovitost postavená v roce 2009 odpovídá standardu KfW-40 a ohromuje svou mimořádně energeticky účinnou výstavbou.
Udržitelnou a nákladově efektivní tepelnou zásobování zajišťuje čerpadlo využívající podzemní vodu, které je doplněno moderním solárním systémem nainstalovaným v roce 2024.
Ve všech místnostech je podlahové topení, jež zajišťuje příjemné a rovnoměrné klima.
Byt je ve velmi udržovaném stavu a vyniká světlými, prosvětlenými prostory.
Vestavěná kuchyň je již zahrnuta v kupní ceně, takže nic nebrání okamžitému nastěhování.
Nemovitost je navíc vybavena optickým připojením, což nabízí ideální podmínky pro práci z domova a moderní bydlení.
Nabídku doplňuje garáž a další parkovací místo, které lze zakoupit společně za 20 000 €.
V okolí nemovitosti najdete
Stále hledáte to pravé?
Nastavte si hlídacího psa. Nabídky vybrané na míru dostanete souhrnně 1× denně e-mailem. S Premium profilem máte k ruce hlídačů rovnou 5 a když se něco objeví, informují vás obratem.














