
Pronájem bytu 2+1 • 68 m² bez realitky, Bavorsko
, BavorskoMHD 1 minuta pěškyPříjemný dvoupokojový byt v přízemí rodinného domu se samostatným bytem v Sulzbach a. Main zve k pocitu pohody. Dům je energeticky efektivně vytápěn zemním tepelným čerpadlem a fotovoltaickou elektrárnou. Tento koncept je nejen udržitelný, ale také vám ušetří řadu provozních nákladů.
Vybavení
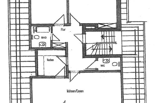
• 2 světlé pokoje s úložnou komorou, sklep a terasa.
• Kuchyně bude předchozím nájemcem demontována, a proto není možné ji převzít.
• Koupelna s přirozeným denním světlem, vybavená vanou, sprchou a toaletou.
• Dlažební a laminátové podlahy spolu s podlahovým vytápěním zajišťují komfort.
• Praktická úložná místnost s připojením pro pračku.
• TV kabelové připojení je k dispozici.
• V současné době je instalováno optické připojení a bude brzy k dispozici.
Bez provize s nástupem od 01.03.2026 – uzavřeme indexovaný nájemní smlouvu, abychom zajistili dlouhodobou bezpečnost nájemce. Kontaktujte nás pro prohlídku!
Sulzbach am Main, s přibližně 8000 obyvateli, je městys v podfranském okrese Miltenberg a nachází se asi 7 km jižně od Aschaffenburgu na západním okraji Spessartu. Kromě dobré infrastruktury s několika supermarketů a obchodů se zde nachází také řada lékařů a zubařů, mateřské školy a jesle, základní i střední škola a četné maloobchodní prodejny, pekárny a řeznictví. Unikátní přírodní poloha a četná sdružení nabízejí mnoho možností pro volnočasové aktivity. Dopravní spojení s veřejnou dopravou prostřednictvím autobusu i vlaku je velmi dobré, autobusová zastávka se nachází pouhých několik metrů od domu.
V okolí nemovitosti najdete
Stále hledáte to pravé?
Nastavte si hlídacího psa. Nabídky vybrané na míru dostanete souhrnně 1× denně e-mailem. S Premium profilem máte k ruce hlídačů rovnou 5 a když se něco objeví, informují vás obratem.










