
Pronájem bytu 2+1 • 45 m² bez realitkyHabsburger Straße 97 Freiburg Herdern Baden-Württemberg 79104
"HABSBURGER MITTE" – Výjimečný pronájem bytu v srdci Freiburgu!
Tyto byty v novém developerském projektu Habsburger-Mitte lze skutečně označit za něco výjimečného.
Celý objekt se rozprostírá na 6 patrech; moderní obchody a kanceláře se nacházejí v přízemí a od 2. do 6. patra najdete skvělé byty s vysoce kvalitním interiérem – perfektní bydlení pro život ve stylu.
Výtah do všech pater, včetně sklepa a podzemní garáže, a také servis profesionálního správce domu jsou u tohoto objektu samozřejmostí.
Nový projekt „HABSBURGER MITTE“ se nachází v žádané části Freiburgu – Herdern.
Skvělá lokalita: Ulice Habsburgerstraße představuje ideální adresu pro krátké cesty i vynikající infrastrukturu. Freiburger Münsterplatz je pouhých 15 minut pěšky od HABSBURGER MITTE.
Vážíte si vysoce kvalitní výbavy v moderním domě se speciální architekturou? Pak jste na správném místě!
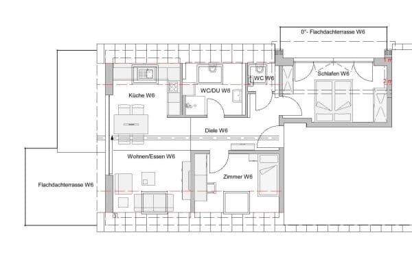
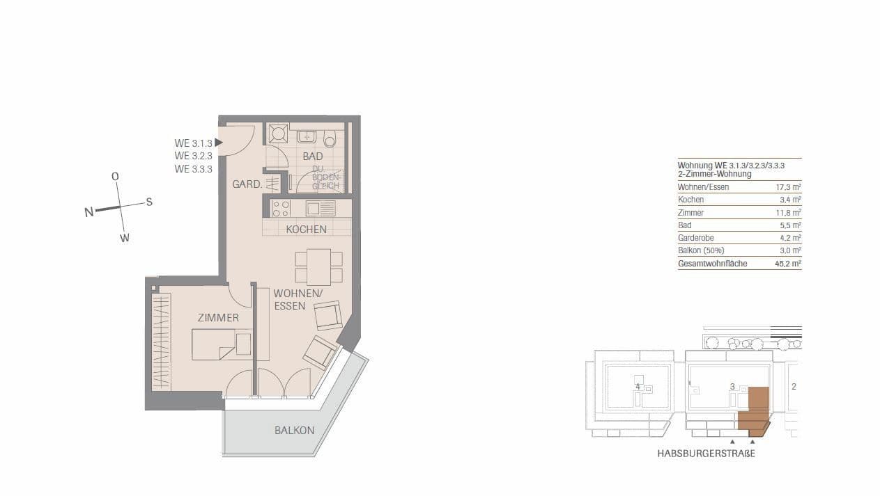
K pronájmu je od 1. 3. 2026 nebo později k dispozici tento špičkový moderní dvoupokojový byt s balkonem v prvním patře. Otevřenou kuchyň s jídelnou a vestavěnou kuchyňskou linkou (EBK) si vytvoříte podle vlastních představ.
Prostorná ložnice je světlá a příjemná.
Jedním z krásných detailů je kvalitní parketová podlaha. Podlahové vytápění zajišťuje pohodlí ve všech místnostech.
Moderní, vnitřní koupelna je světlá, obložena dlažbou a vybavena sprchou (poznámka: vana není součástí vybavení).
Prakticky se pračka umístí přímo do koupelny.
Prádelna, místo pro uskladnění kol a sklepní prostory jsou pohodlně dostupné výtahem.
Klíčová slova:
– Rezidenční objekt v blízkosti centra
– Obytný dům č. 3 na krásně a nově upravené Habsburgerstraße
– Energeticky efektivní dům třídy 55
– Blokové kogenerační zařízení s výrobou elektřiny
– Podlahové vytápění
– Elektrické rolety
– Kvalitní parkety
– Videointerkom
– Společná podzemní garáž
– Sklepní prostory a úložné prostory pro kola
– Nevhodné pro spolubydlení
– Bez možnosti chovat domácí mazlíčky
– Vestavěná kuchyňská linka (EBK)
– Pronájem od 1. 3. 2026 nebo později
– Stupňový nájemní smlouva
Jsme exkluzivně pověřeni zprostředkováním tohoto objektu. Za správnost a úplnost údajů v našich nabídkách nemovitostí nepřebíráme žádnou odpovědnost. Všechny informace byly sestaveny s nejvyšší pečlivostí, podle nejlepšího vědomí a svědomí a vycházejí z údajů vlastníka či pronajímatele. Uvedené rozměry v metrech čtverečních se mohou mírně lišit.
Fotografie zde zobrazené byly po konzultaci s příslušnými nájemci či vlastníky vyhotoveny a jsou zveřejněny se výslovným souhlasem k jejich použití na internetu pro účely pronájmu a/nebo prodeje. Mezitímní pronájem či prodej si vyhrazujeme. Fotografie, půdorysy a další dokumenty nesmí být kopírovány. Fotografování během prohlídky je výslovně zakázáno.
Prosíme, uveďte při podání kontaktní poptávky pravdivé údaje (jméno/adresa) a telefonní číslo, na kterém vás můžeme zpětně kontaktovat. Prosíme o pochopení, že e-mailové dotazy bez uvedení potřebných údajů, včetně těch, které se týkají vašeho hledání, zůstanou bez odpovědi. Vzhledem k dynamice trhu s byty vás budeme kontaktovat pouze v případě, že byt stále bude k dispozici a vy budete mezi vážnými zájemci. Upozorňujeme, že kritéria výběru stanovuje vlastník pronajatého bytu a my na nich nemáme vliv.
V okolí nemovitosti najdete
Stále hledáte to pravé?
Nastavte si hlídacího psa. Nabídky vybrané na míru dostanete souhrnně 1× denně e-mailem. S Premium profilem máte k ruce hlídačů rovnou 5 a když se něco objeví, informují vás obratem.










