
Prodej bytu 4+1 • 90 m² bez realitkyGuineastraße 38 Berlin Wedding Berlin 13351
Atraktivní investice do kapitálu v Berlín-Wedding – udržovaný, světlý byt na prodej od soukromé osoby
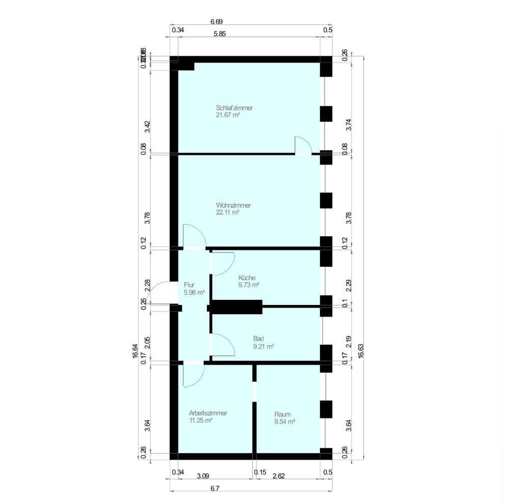
Tento prostorný a světlý byt se nachází ve čtvrtém patře udržované bytové budovy v oblíbené berlínské čtvrti Wedding. Byt zaujme promyšlenou dispozicí a kromě chodby, koupelny a kuchyně obsahuje celkem čtyři další obytné místnosti (viz dispozice). Celkový stav nemovitosti lze označit za udržovaný.
Byt se prodává jako pronajatá investice do kapitálu a nabízí solidní a bezpečný výnos. Roční čistý nájem činí 6.718,32 €. Stávající nájemní vztah je spolehlivý: od počátku nájemce vždy plnil své platební povinnosti včas a neustále se staral o zachování bytu. Měsíční poplatek za společné náklady činí 374,81 €.
Hlavní přednosti na první pohled:
- Bezpečně pronajatý vlastnický byt
- Udržovaný stav
- Umístění v přední části budovy
- Čtyři samostatné obytné místnosti
- Okna téměř v každé místnosti (včetně kuchyně a koupelny)
- Topení pomocí dálkového vytápění
- Velmi dobrá infrastruktura
- Prodej od soukromé osoby bez poplatků pro makléře
- Zákaz převodu do 05/2026
V případě dalších dotazů jsem Vám samozřejmě k dispozici. Při vážném zájmu o koupi a po dohodě s nájemcem je možné si byt prohlédnout. Na výslovnou žádost nájemce nebudou zveřejněny žádné snímky interiéru bytu.
Wedding patří mezi centrálně umístěné berlínské čtvrti s dobrou dopravní dostupností jak do City Ost, tak do City West. Toto tradiční dělnické čtvrť se přeměnilo z průmyslově dominujícího městského okresu na lokalitu pro moderní služby, vědu, výzkum a kulturu.
Hlavní centrum kolem Müllerstrasse si ve víceměstské struktuře celého Berlína udrželo své postavení a nabízí obyvatelům široký výběr obchodů, stánků, kaváren a restaurací. Pěšky je snadno dosažitelná veškerá infrastruktura pro každodenní potřeby – řada supermarketů, mateřských škol a škol se nachází v bezprostřední blízkosti. Mimochodem, čtvrť Wedding se již nějakou dobu stává prestižnější a některé části Wedding patří dnes mezi nejoblíbenější lokality Berlína.
V okolí nemovitosti najdete
Stále hledáte to pravé?
Nastavte si hlídacího psa. Nabídky vybrané na míru dostanete souhrnně 1× denně e-mailem. S Premium profilem máte k ruce hlídačů rovnou 5 a když se něco objeví, informují vás obratem.











