
Pronájem bytu 2+kk • 38 m² bez realitkyZenklova, Praha - Libeň
Máte o nabídku zájem?
Ušetřete 22 000 Kč na provizi a komunikujte se všemi majiteli.
Přímý majitel nabízí k pronájmu nedávno rekonstruovaný světlý byt o dispozici 2+kk o celkové ploše 38 m², který díky své promyšlené dispozici a dostatku úložného prostoru nabízí útulné bydlení pro jednotlivce či pro mladý pár.
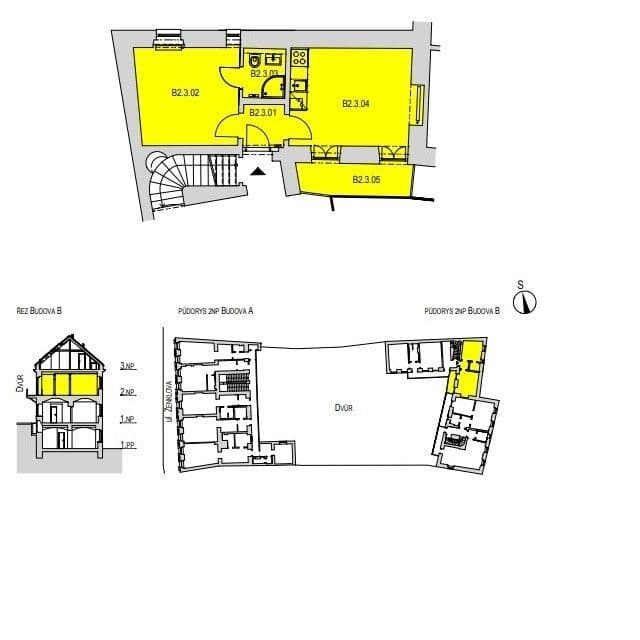
Byt se nachází ve druhém patře trojpodlažního cihlového domu. Z obývacího pokoje s kuchyňským koutem se vstupuje na terasu o rozloze 5 m² s výhledem do klidného vnitrobloku/dvoru. Pod okny ložnice se pak nachází soukromá zástavba na břehu potoka Rokytky, jedná se tedy celkově o velmi klidný byt. Dopravně je ale výborně dostupný – zastávka tramvaje Libeňský zámek je téměř před vchodem do domu, odtud jsou to pouhé dvě zastávky na metro B – Palmovka.
Interiér bytu je částečně vybaven – v ložnici je vestavěná skříň a čalouněný rám postele. Kuchyňská linka zahrnuje ledničku s mrazákem, pračku, myčku, mikrovlnku, varnou desku s troubou. Pohovka není součástí vybavení (fotka pořízená před vyklizením).
Do domu je právě zaváděna optická přípojka, která zajistí vysokorychlostní internet. V případě zájmu je možné poptat u SVJ možnost parkování ve vnitrobloku.
Byt je čerstvě vymalovaný a volný ihned k nastěhování. V případě zájmu mě neváhejte kontaktovat prostřednictvím zpráv na komunikační platformě a domluvíme si prohlídku bytu.
V okolí nemovitosti najdete
Máte o nabídku zájem?
Ušetřete 22 000 Kč na provizi a komunikujte se všemi majiteli.
Stále hledáte to pravé?
Nastavte si hlídacího psa. Nabídky vybrané na míru dostanete souhrnně 1× denně e-mailem. S Premium profilem máte k ruce hlídačů rovnou 5 a když se něco objeví, informují vás obratem.











