
Prodej bytu 2+1 • 67 m² bez realitky, Porýní-Falc
Tato udržovaná a nedávno zrenovovaná 2pokojová bytová jednotka s jižním balkonem zaujme svým klidným umístěním na kraji pole a funkční půdorysem – ideální pro investory.
Byt se nachází v domě se šesti byty v Erbes-Büdesheim, nedaleko Alzey, a má přibližně 67 m² obytné plochy. Po vystěhování současného nájemce koncem března je jednotka volná a může být pružně nově pronajata nebo vlastně využita. Byt byl naposledy pronajímán za 9,90 euro za metr čtvereční (bez režie) plus parkovací stání.
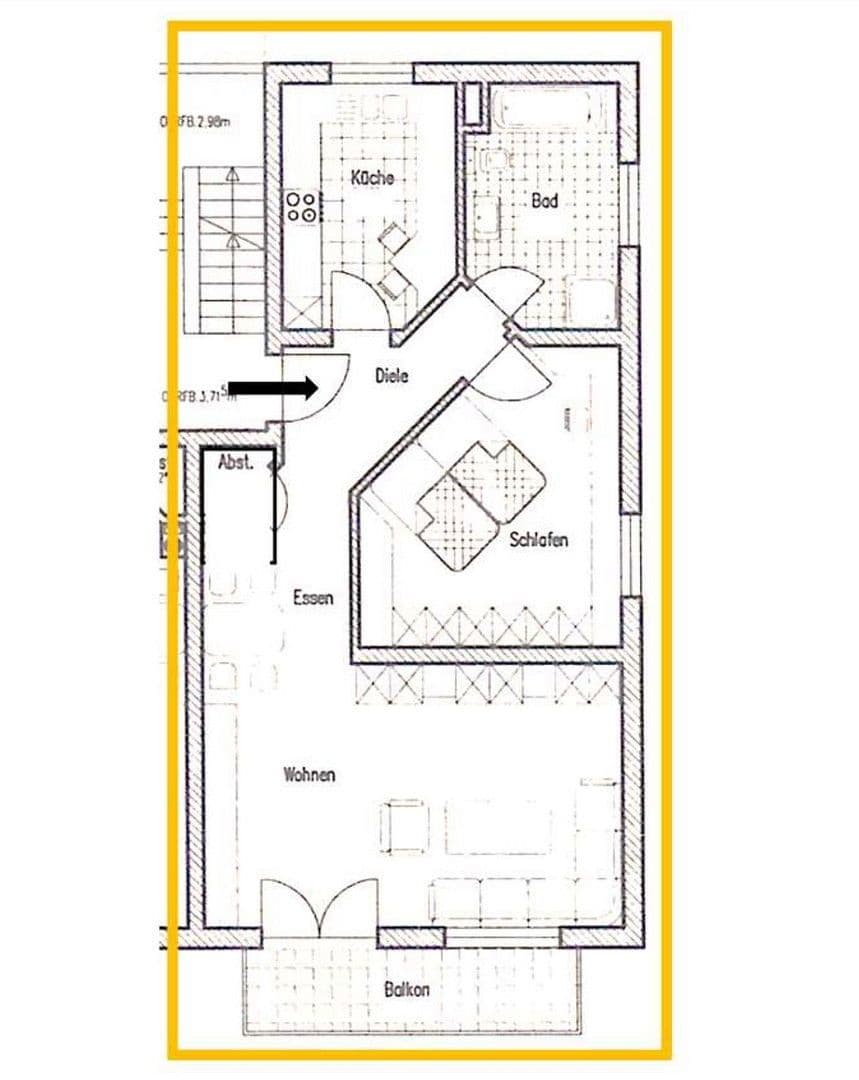
Rozložení místností a vybavení:
- Samostatná kuchyň s prostorem pro malý jídelní nebo snídaňový kout
- Otevřený obývací/jídelní pokoj s přístupem na jižní balkon
- Ložnice s dostatečným prostorem
- Koupelna s denním světlem, se sprchou a vanou
- Skladová místnost přímo v bytě
- Prostorný sklep s oknem
- Vlastní parkovací stání
V rámci rekonstrukce v roce 2024 byla obnovena podlahová a stěnová úprava, čímž byt získal moderní a upravený vzhled. Na podlahu byl položen odolný vinylový systém typu klik, stěny byly překlikované tapetou s mírným strukturálním reliéfem a celý byt byl natřen na bílou.
Společné náklady na dům činí 299,39 eur, z toho je 173,65 eur přenositelných na nájemce.
Nabídku doplňuje prostorný, zdivo vybudovaný sklep s oknem a příslušné parkovací stání přímo před domem, které lze dodatečně zakoupit za 8 000 eur.
Byt se nachází v klidném prostředí na kraji pole v Erbes-Büdesheim, tradiční obci v okrese Alzey-Worms. Okolí je charakterizováno obytnou zástavbou, přírodou a krátkými cestami do okolí – ideální pro nájemce, kteří kladou důraz na klid a příjemné životní prostředí.
Erbes-Büdesheim nabízí základní infrastrukturu s mateřskou školou a dalšími zařízeními denní potřeby. Školy, lékaři a širší nabídka maloobchodu a služeb se nacházejí v nedalekém Alzey, které je dosažitelné během několika minut jízdy.
Dopravní spojení je výborné: po silnici B271 a dálnici A61 je zajištěno rychlé napojení na oblasti Mainz, Worms a Kaiserslautern. Navíc železniční stanice Alzey nabízí pravidelná vlaková spojení do regionů Rhein-Main a Rhein-Neckar.
V okolí nemovitosti najdete
Stále hledáte to pravé?
Nastavte si hlídacího psa. Nabídky vybrané na míru dostanete souhrnně 1× denně e-mailem. S Premium profilem máte k ruce hlídačů rovnou 5 a když se něco objeví, informují vás obratem.















