
Prodej bytu 4+1 • 93 m² bez realitky, Bádensko-Württembersko
Světlý a prostorný 4-pokojový byt se nachází ve třetím patře udržovaného vícepodlažního domu z roku 1961.
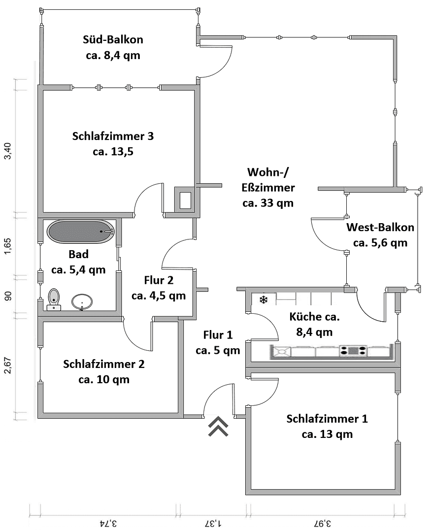
Byt nabízí obytnou plochu přibližně 93 m² (plus balkonové plochy) a zaujme promyšleným dispozicím a jižní a západní orientací, která zajišťuje velmi dobré přirozené osvětlení. Srdcem bytu je prostorný obývací a jídelní pokoj s přímým vstupem na jižní a západní balkon.
Kromě obývacího prostoru jsou k dispozici tři ložnice, které lze flexibilně využít jako dětské, pracovny či hostinské místnosti. Samostatná kuchyň je vybavena plně funkční vestavěnou kuchyní a nabízí vstup na západní balkon. Koupelna s denním světlem má dvě okna a je vybavena toaletou a vanou.
K bytu patří dvě uzamykatelné sklepy o celkové ploše cca 16 m², společný prostor v podkroví přímo nad bytem a také garáž. Celkově se byt představuje jako prostorný, velmi dobře dispozicovaný domov s vysokým pohodlím bydlení.
Byt se nachází v klidné rezidenční lokalitě na jižním okraji Kornwestheimu. Nedaleký Salamanderstadtpark nabízí velké možnosti pro volnočasové aktivity i odpočinek. Obchodní možnosti jako Rewe, lékárny, lékaři a také kulturní a společenské centrum „Das K“ s knihovnou jsou dosažitelné pěšky.
Rodiny ocení dostupnost hřišť, mateřských školek, základních a společných škol, dále střední školu a gymnázium, které jsou snadno dostupné pěšky.
Přímo před domem se nachází autobusová zastávka, nádraží Kornwestheim je dosažitelné za cca 20 minut pěšky nebo pohodlně autobusem.
Dopravní spojení je vynikající: Silnice B27 se nachází v bezprostřední blízkosti, silnice B10 i dálnice A81 jsou dosažitelné během několika minut. Řada zaměstnavatelů, jako například Sika, SATA, Úřad pro geoinformace, Dachser a další, se nachází rovněž v bezprostřední blízkosti. Mnoho dalších společností jako Porsche, Bosch, Mercedes-Benz či skupina Schwarz je rovněž výborně dostupných.
Kompletní rekonstrukce bytu v roce 2018:
• Obnova všech rozvodů studené vody a elektřiny
• Nová pojistková skříň v bytě
• Nové vypínače a zásuvky
• Nová okna ve všech místnostech
• Obnovené radiátory s chytrými termostaty
• Moderní koupelna s denním světlem a vanou
• Nová vestavěná kuchyně, všechny elektrické spotřebiče funkční
Podlahy:
• Dlaždice ve vstupní hale, kuchyni a koupelně
• Světlý korkový parket v ložnicích
• Parket v obývacím pokoji
Ostatní:
• Dva balkony (jižní a západní) s elektricky ovládanými markýzami
• Elektrická rolety ve všech místnostech
• Vestavěné skříně v obou chodbách
• Balkonová elektrárna na jižním balkoně
• Dostupné optické připojení
• Nový elektrický průtokový ohřívač vody v kuchyni
• Nový plynový průtokový ohřívač vody v koupelně (s elektrickou přípravou pro případnou přeměnu)
• Dva uzamykatelné sklepy (cca 16 m²)
• Garáž s novými garážovými dveřmi a rampou pro plynulý vjezd
V okolí nemovitosti najdete
Stále hledáte to pravé?
Nastavte si hlídacího psa. Nabídky vybrané na míru dostanete souhrnně 1× denně e-mailem. S Premium profilem máte k ruce hlídačů rovnou 5 a když se něco objeví, informují vás obratem.

















