
Prodej domu 4+1 • 120 m² bez realitkyHintergasse 21, , Hessen
Hintergasse 21, , HessenMHD 3 minuty pěšky • ParkováníTento kouzelný rodinný dům se nachází v klidné a centrální části Riedstadt-Goddelau. Dům, původně postavený v roce 1922, spojuje historický charakter s moderním standardem bydlení, protože byl v roce 2018 kompletně zrenovován a izolován. Klíčové rekonstrukční práce momentálně nejsou nutné – stačí se nastěhovat a cítit se jako doma.
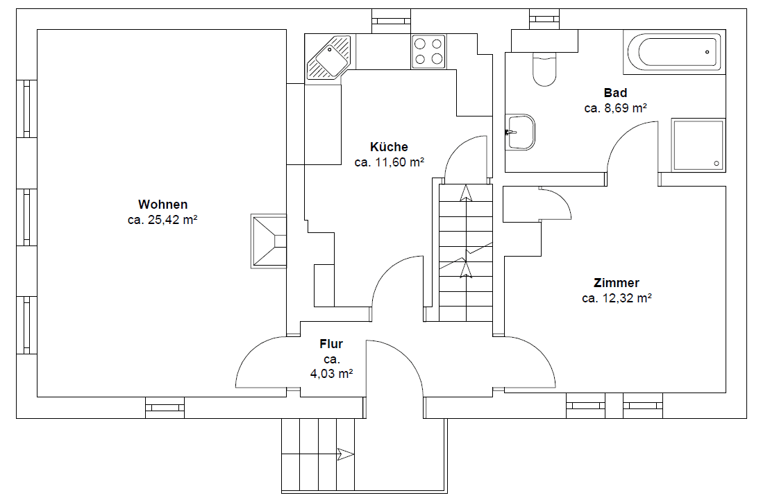
Nemovitost nabízí obytnou plochu přibližně 120 m², rozdělenou do čtyř dobře navržených pokojů. Promyšlené uspořádání prostoru poskytuje moderní a světlé bydlení ideální jak pro páry, tak pro rodiny.
Jedním z hlavních lákadel je útulný obývací pokoj s krbem, který nejenže v chladnějších dnech vytváří příjemnou atmosféru, ale dodává domu také jedinečný pocit domova. Celkový dojem umocňuje i prostorný sklep s dostatkem úložného prostoru, stejně jako zateplený půdní prostor, ve kterém se nacházejí další dva pokoje, jež lze využít flexibilně.
Tento dům spojuje kouzlo historické architektury, moderní komfort bydlení a prostorová řešení vhodná pro rodiny v oblíbené lokalitě – domov, kde se ihned cítíte vítáni a pohodlně.
Nemovitost se nachází v klidné obytné čtvrti Riedstadt-Goddelau. Obchody s každodenními potřebami, školy, školky i lékaři jsou dosažitelní za pár minut. Dobré spojení s místní dopravou a blízkost k nádraží (cca 10 minut pěšky) a dálnicím zajišťují rychlou dostupnost okolních měst jako Darmstadt, Mainz a Frankfurt. Přírodní okolí navíc zve ke procházkám a rekreačním aktivitám.
Rodinný dům zaujme promyšleným vybavením a prostornými obytnými plochami. Zvláště je potřeba zdůraznit velký sklep, který nabízí dostatek úložného prostoru pro domácí potřeby, zásoby či hobby vybavení. Dále dům disponuje zatepleným půdním přístavkem, kde se nacházejí další dva pokoje, které lze flexibilně využít jako ložnice, pracovnu či hobby místnosti. Moderní celkový stav spolu s krbem v obývacím pokoji dokonale doplňují atraktivní koncepci vybavení.
Přesvědčte se o kvalitách tohoto domu při osobní prohlídce – těšíme se na vaši poptávku!
V okolí nemovitosti najdete
Stále hledáte to pravé?
Nastavte si hlídacího psa. Nabídky vybrané na míru dostanete souhrnně 1× denně e-mailem. S Premium profilem máte k ruce hlídačů rovnou 5 a když se něco objeví, informují vás obratem.











