
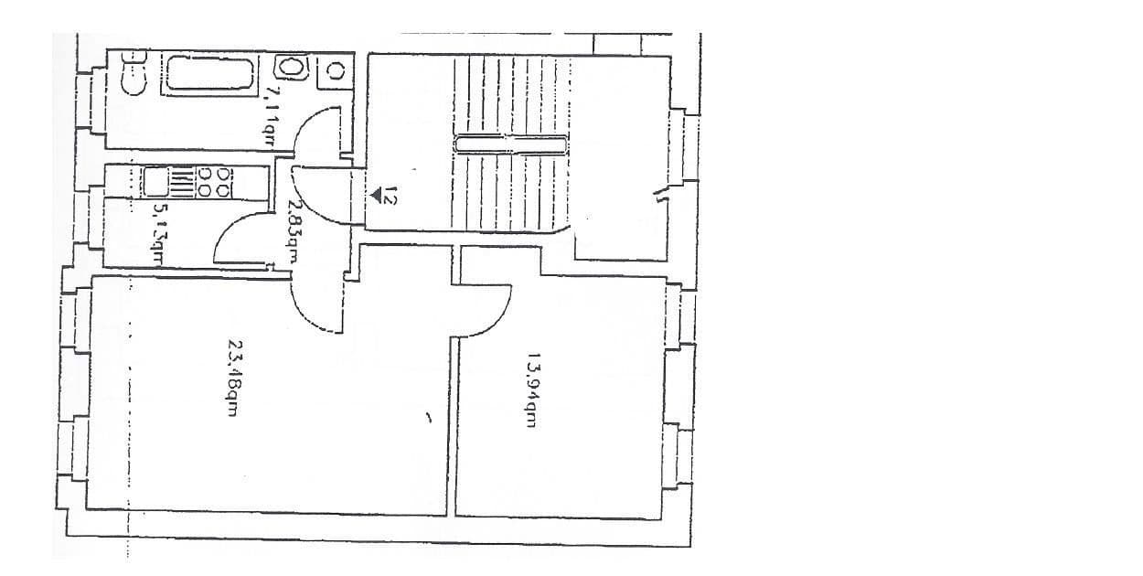
Pronájem bytu 2+1 • 57 m² bez realitkyLeipzig Eutritzsch Sachsen 04129
Leipzig Eutritzsch Sachsen 04129MHD 2 minuty pěškyMěsíční nájemné689 €
+ Poplatky za služby160 €
+ Vratná kauce1 800 €
Přeloženo pomocí AI
Tato úžasná nemovitost právě dostala novou kuchyni. Skvělá lokalita.
V okolí nemovitosti najdete
MHDEutritzscher Markt
🚶 163 m (2 min)
PoštaPostfiliale 504
🚶 628 m (8 min)
ObchodAldi
🚶 308 m (4 min)
BankaSparkasse Leipzig
🚶 432 m (5 min)
RestauraceBowling-Gipfel
🚶 85 m (1 min)
LékárnaHerz-Apotheke
🚶 514 m (6 min)
ŠkolaCarl-von-Linné-Schule
🚶 398 m (5 min)
Mateřská školakinderGARTENchristuskirche
🚶 236 m (3 min)
SportovištěSporthalle Wittenberger Straße
🚶 743 m (9 min)
Hřiště
🚶 36 m (0 min)
Vzdálenost k:
Měsíční nájemné689 €
+ Poplatky za služby160 €
+ Vratná kauce1 800 €
Stále hledáte to pravé?
Nastavte si hlídacího psa. Nabídky vybrané na míru dostanete souhrnně 1× denně e-mailem. S Premium profilem máte k ruce hlídačů rovnou 5 a když se něco objeví, informují vás obratem.





























