
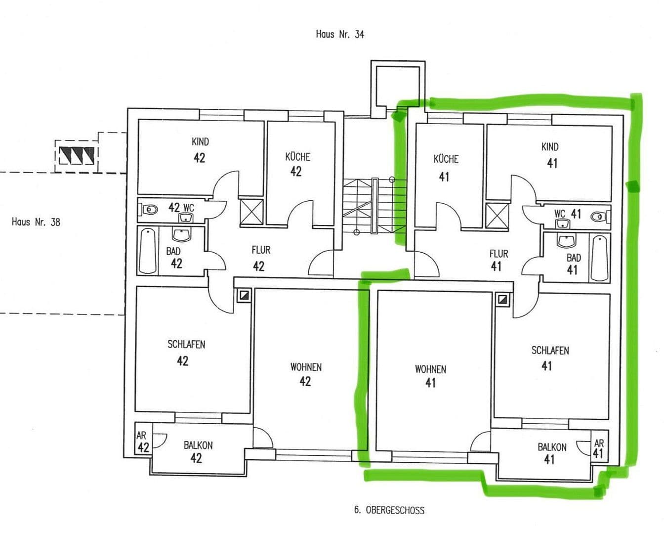
Prodej bytu 3+1 • 77 m² bez realitkyJohann-Krieger-Straße 34 Nürnberg Gartenstadt Bayern 90469
Johann-Krieger-Straße 34 Nürnberg Gartenstadt Bayern 90469MHD 4 minuty pěšky • Výtah • GarážTento pečlivě udržovaný byt v oblíbené nurnberské "Gartenstadt" oslovuje stejně jak uživatele, kteří zde chtějí bydlet, tak investory. Díky modernizaci v dubnu 2024 se nemovitost prezentuje jako stylová a současná. Světlý obývací a jídelní prostor zajišťuje otevřenost, a chráněný balkon s neomezeným výhledem zve k užívání klidu okolí.
• Vyhledávaná rezidenční lokalita na jihu Norimberku s bohatou zelení a příjemnou atmosférou
• Klidné, udržované okolí charakterizované atraktivními rodinnými domky
• Vynikající dopravní napojení – autobus i metro jsou rychle dostupné
• Norimberské centrum je vzdáleno jen přibližně 10–15 minut
• Obchody se základními potřebami se nacházejí v bezprostřední blízkosti
• Školy, mateřské školy i zdravotnická zařízení jsou pohodlně dostupné pěšky
• Rozmanité možnosti volnočasových a rekreačních aktivit, jako jsou Dutzendteich, Luitpoldhain a Volkspark, se nacházejí v okolí
• Rychlé spojení na dálnici A73 a Frankenschnellweg
• Vysoká kvalita bydlení v lokalitě s trvale silnou poptávkou po pronájmu
Zahradní čtvrť patří mezi obzvlášť oblíbené obytné oblasti Norimberku a spojuje klid, přírodu a vynikající infrastrukturu. Díky tomu je atraktivní jak pro vlastníky, kteří si cení komfortního životního prostředí, tak i pro investory, kteří upřednostňují dlouhodobou pronajímatelnost a stabilní poptávku.
Byt byl modernizován v dubnu 2024 a nabízí následující vybavení:
• Kvalitní vinylová podlaha v imitaci dřeva ve všech obytných místnostech
• Udržovaná vestavěná kuchyň
• Prostorný obývací a jídelní prostor s dostatkem denního světla
• Soukromý, chráněný balkon s volným výhledem
• Plastová okna s izolačním dvojsklem
• K dispozici je sklepní kóje
• Parkovací stání v podzemní garáži
V okolí nemovitosti najdete
Stále hledáte to pravé?
Nastavte si hlídacího psa. Nabídky vybrané na míru dostanete souhrnně 1× denně e-mailem. S Premium profilem máte k ruce hlídačů rovnou 5 a když se něco objeví, informují vás obratem.











