
Prodej domu 4+1 • 124 m² bez realitkyBURGBLICK GRUNDSTÜCK EXKLUSIV NUR FÜR DANWOOD-HAUSBAU Güssing Burgenland 7540
Kompaktní a promyšlený – prostorový zázrak na malém půdorysu.
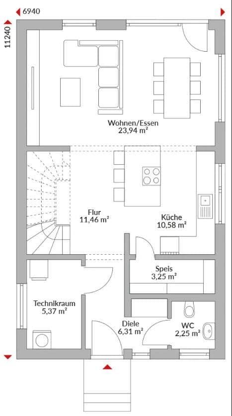
Přestože má malou dispozici, tento dům splňuje všechny požadavky moderního bydlení. Kuchyň je funkčně řešená, technická místnost nabízí dostatek prostoru pro zařízení domu a uskladnění věcí. Koupelna je vybavena vanou i sprchou a navíc je k dispozici samostatná toaleta pro hosty. Předsíň poskytuje prostorný šatní koutek, dětské pokoje a ložnice mají dobré možnosti využití. Obývací/jídelní část zaujme velkými okny a otevřenými přechody, které opticky zvětšují prostor.
Ideální pro všechny, kteří se zaměřují na podstatu – aniž by museli slevit z pohodlí.
Na vašem pozemku nebo v…
Güssing: přibližně 2 600 m², pozemek zcela rovný. Velikosti pozemků a jejich umístění lze volit dle libosti. Rozměry od 500 m² do 1500 m².
Toto jsou stavební pozemky první třídy! V nejlepší lokalitě a s úchvatným výhledem na nádherný hrad Güssing!
Güssing nabízí budoucnosti zajištěný, cenově dostupný a energeticky nezávislý život v přírodě, což činí investici do nemovitosti v této oblasti strategickým kapitálovým aktivem.
Proč Güssing
Energetický průkopník a udržitelnost:
Město je energeticky soběstačné a mezinárodně uznávané.
Vysoké pokrytí (přes 85 %) regionálním biomasovým dálkovým vytápěním vede k stabilním a výhodným nákladům na vytápění.
Cenově dostupné ceny nemovitostí:
Ceny jsou stále výrazně nižší než rakouský průměr, což umožňuje splnit sen o vlastním domově s prostornými pozemky.
Silná infrastruktura a kvalita života:
Jako okresní předměstí zaručuje Güssing krátké vzdálenosti a nejlepší dostupnost služeb.
Plánované velké investice:
Nový vzdělávací kampus a moderní lékařské centrum (od roku 2026).
Kulturní centrum (hrad Güssing) a blízkost termálních lázní.
Plné otevření S7 přináší významné výhody pro Güssing a jeho obyvatele:
– Rychlejší napojení na aglomerace: Rychlostní silnice výrazně zkracuje dobu jízdy na dálnici A2 směrem na jih, čímž se výrazně zkracují cesty do Grazu a Vídně.
– Uvolnění regionu: Nová trať odvádí tranzitní dopravu, která dříve zatěžovala obce jako Fürstenfeld a Rudersdorf.
– Hospodářské impulsy: Nové napojení, mimo jiné přes přípojku u Rudersdorf/Dobersdorf a blízkost spojení s Königsdorfem, posiluje Güssing jako okresní předměstí a podnikatelskou lokalitu díky lepší dostupnosti a podpoře nových průmyslových zón.
Stabilita hodnoty a rozvojový potenciál:
Cílené obecní investice do infrastruktury, oživení centra města a technologického parku zajišťují dlouhodobou hodnotu nemovitostí.
Obecní strategie je zaměřena na překonání demografických výzev a etablování Güssingu jako atraktivní rezidenční a podnikatelské oblasti.
Cílová skupina
Rodiny, které hledají budoucnost, bezpečí a přírodu, a také všichni, kteří kladou důraz na nízké náklady na energii a ekologickou odpovědnost.
Další pozemky v:
Pozemek, 8323 Kohldorf: Stavební pozemek s dostatkem slunce v kopcovitém východním Štýrsku, 15 km od Grazu!
Velikost: 758 m², kupní cena: 66 000 €,--
Pozemek, 8323 Kohldorf: Slunečný stavební pozemek v Kohldorfu, 15 km východně od Grazu!
Velikost: 787 m², kupní cena: 69 000 €,--
Pozemek, 8311 Markt Hartmannsdorf: Plně inženýrsky zajištěný, slunečný stavební pozemek v Markt Hartmannsdorf
Velikost: 920 m², kupní cena: 53 000 €,--
Pozemek, 9335 Lölling Graben: Stavební pozemek s úchvatným výhledem do dálky v malebné karinské horské krajině
Velikost: 1001 m², kupní cena: 50 000 €,--
Pozemek, 8075 Hart bei Graz: Slunečný pozemek před branami Grazu
Velikost: 1980 m², kupní cena: 475 000 €,--
Pozemek ke koupi ve Stainzu
Slunečný pozemek na okraji obce Stainz
Velikost: 825 m², kupní cena: 149 000 €
Mezi vlastníkem pozemku a stavitelem domu neexistuje žádné ekonomické spojení.
Rodinný dům se 4 pokoji – exkluzivní vybavení!
Hotový k nastěhování včetně dodání a montáže od horní hrany základů.
️ Zesílená střecha pro sněhovou zátěž
️ Tepelné čerpadlo vzduch-voda a podlahové topení
️ Rekuperační ventilační systém s rekuperací tepla (možnost letního chlazení)
️ Elektrické rolety v celém domě
️ Volba podlahových krytin a sanitárního vybavení dle vlastního výběru
️ Příprava pro fotovoltaiku
️ Balíček „všechno v jednom“
Možnost vlastní účasti – přesně podle vašich představ.
Poradenství a prodej:
Paní Tatjana Wyss
+43 676 553 77 47
tatjana.wyss@danwood.at
Zajistěte si první konzultaci již nyní!
Objednejte si stavební popis a katalogy!
K tomu je nutné zadat telefonní číslo, e-mailovou adresu a adresu.
Děkujeme!
KALKULAČKA FINANCOVÁNÍ
https://www.finaustria.at/finanzierungsrechner
DALŠÍ NABÍDKY!
https://qr.scan.page/uploads/pdf/1752348182250_686ba1debcb60.pdf
V okolí nemovitosti najdete
Stále hledáte to pravé?
Nastavte si hlídacího psa. Nabídky vybrané na míru dostanete souhrnně 1× denně e-mailem. S Premium profilem máte k ruce hlídačů rovnou 5 a když se něco objeví, informují vás obratem.





















