
Prodej domu 6+1 • 131 m² bez realitkySonnenhalde 7, , Bádensko-Württembersko
Sonnenhalde 7, , Bádensko-WürttemberskoMHD 6 minut pěšky • Výtah • GarážEinfamilienhaus in ruhiger Sackgassenlage in Rottwei-Göllsdorf
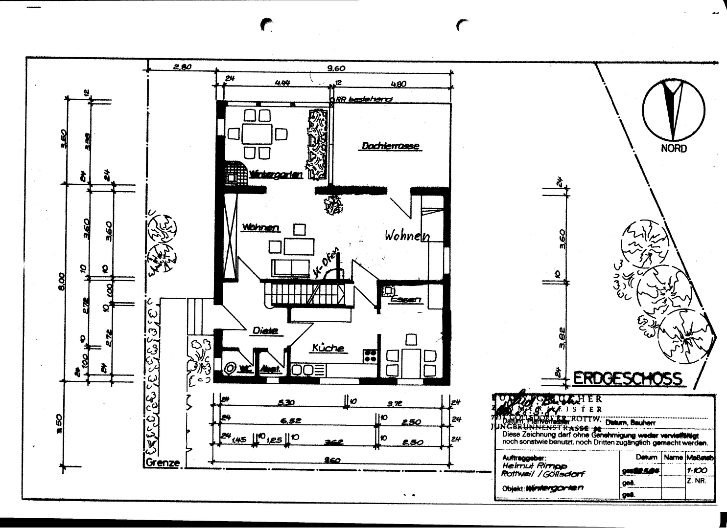
Tento udržovaný rodinný dům na adrese Sonnenhalde 7 v Göllsdorfu zaujme svou tichou polohou v téměř neprojezdné slepé uličce a solídní konstrukcí s četnými modernizacemi. Dům byl poprvé obýván v roce 1962 a během desetiletí byl průběžně renovován a rozšiřován.
Wohnkomfort & Modernisierungen (Pohodlí bydlení a modernizace)
Nemovitost se nachází v dobrém stavu. Kuchyň byla před několika lety kompletně obnovena; předchozí kuchyň je umístěná ve sklepě a ideálně poslouží jako dodatečná zásobní kuchyň. Vysoce kvalitní Meranti okna s izolačním dvojsklem a hliníkovými vnějšími rámy spolu s moderní vstupními dveřmi zajišťují dobrou energetickou efektivitu a dlouhou životnost. Koupelna byla také kompletně zrekonstruována.
Mezi střešními trámy byla umístěna izolace, která byla následně obložena panely – další výhoda z hlediska energetického komfortu domu.
Großzügiger Anbau & Wintergarten (Prostorná přístavba a zimní zahrada)
V letech 1984/85 byla postavena prostorná přístavba podél celé délky domu, která zahrnuje:
• garáž
• vytápěnou sklepní místnost
• vytápěnou zimní zahradu v horním patře
• velkou terasu s elektrickou markýzou
Díky elektrickým žaluziím a dalším možnostem vytápění – radiátorem nebo kamny – nabízí zimní zahrada celoroční komfort bydlení.
Heizung & Energie (Vytápění a energie)
Dům je vytápěn pomocí Viessmann topení na olej (rok 1989) s MAN ventilátorovým hořákem (rok 2003). Je zajištěn také přívod plynu, který umožňuje budoucí úpravy. Kamna v obývacím pokoji, která jsou vytápěna prostřednictvím radiátoru, zajišťují příjemné teplo.
Weitere Ausstattungsmerkmale (Další vybavení)
• Velká dešťová cisterna, částečně zapuštěná v zemi
• Vysoce kvalitní schodišťové výtahy na obou schodištích
• Rozsáhlá satelitní instalace pro velmi dobrý televizní příjem
• Na přání je možný převzetí nábytku
• Ihned k nastěhování
Fazit (Shrnutí):
Velmi udržovaný, průběžně modernizovaný rodinný dům v klidné obytné oblasti s mnoha doplňkovými výhodami, prostornou přístavbou a vynikající využitelností. Ideální pro kupce, kteří kladou důraz na solidní stavební kvalitu, komfort a okamžitou dostupnost.
Lagebeschreibung (Popis lokality)
Rodinný dům se nachází v mimořádně klidné a rodinné čtvrti Göllsdorfu, oblíbené části Rottweilu. Ulice Sonnenhalde je čistě obytnou ulicí, která končí v slepé uličce, což znamená minimální dopravní provoz a zajišťuje tak zvláště příjemné a bezpečné prostředí pro bydlení.
Okolí se vyznačuje upravenými rodinnými domy, spoustou zeleně a harmonickým sousedstvím. Obchody, školy, mateřská školka, lékaři a další zařízení každodenní potřeby jsou dostupné přímo v této části nebo v nedalekém Rottweilu. Veřejná doprava je dobře dostupná a cesty do centra města či do sousedních obcí jsou krátké.
Přírodní prostředí nabízí rovněž vysokou hodnotu z hlediska volnočasových aktivit: pěší a turistické stezky, lesy a rekreační plochy jsou v bezprostředním okolí. Lokalita také těží z blízkosti dálnice A81, což usnadňuje dostupnost regionu Stuttgart i oblasti Bodamského jezera.
Celkově tato lokalita kombinuje klidné bydlení, dobrou infrastrukturu a atraktivní okolí – ideální pro ty, kdo si cení kvality života a uvolněného obytného prostředí.
• Klidná obytná lokalita v slepé uličce
• První obsazení v roce 1962, s plány z roku 1958
• Průběžně renovováno a udržováno
• Možnost převzetí nábytku
• Ihned k nastěhování
Fenster & Türen (Okna a dveře)
• Vysoce kvalitní Meranti okna s izolačním dvojsklem a hliníkovými vnějšími rámy
• Moderní, vysoce kvalitní vstupní dveře
Innenausstattung (Interiérové vybavení)
• Kompletně zrekonstruovaná kuchyň (nová vestavěná kuchyň)
• Další, starší kuchyň umístěná ve sklepě (ideální jako zásobní kuchyň)
• Kombinovaná varná deska s keramickou deskou (2 plotýnky) a plynovým vařičem (2 hořáky)
• Kompletně zrekonstruovaná koupelna
• Kamna v obývacím pokoji (vytápěná radiátorem)
• Izolace mezi střešními trámy, následně oblečená
Heizung & Energie (Vytápění a energie)
• Viessmann topení na olej, rok 1989
• MAN ventilátorový hořák, rok 2003
• Přívod plynu je k dispozici
• Zimní zahrada s možností vytápění radiátorem nebo kamny
Anbau (přístavba z let 1984/85)
• Garáž
• Vytápěná sklepní místnost
• Vytápěná zimní zahrada v horním patře
• Velká terasa nad přístavbou
• Elektrické žaluziové stínění pro zimní zahradu
• Velká elektrická markýza pro terasu
Technik & Komfort (Technika a komfort)
• Rozsáhlá satelitní instalace pro velmi dobrý televizní příjem
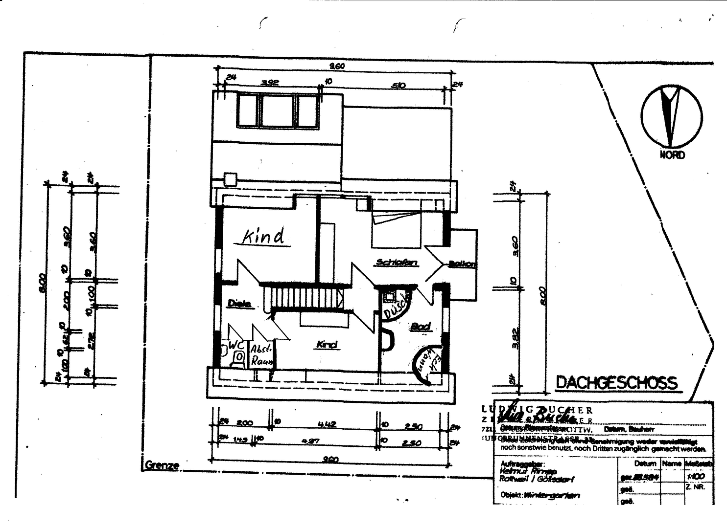
• Vysoce kvalitní schodišťové výtahy na obou schodištích
• Velká dešťová cisterna (částečně zapuštěná v zemi)
V okolí nemovitosti najdete
Stále hledáte to pravé?
Nastavte si hlídacího psa. Nabídky vybrané na míru dostanete souhrnně 1× denně e-mailem. S Premium profilem máte k ruce hlídačů rovnou 5 a když se něco objeví, informují vás obratem.

























































