
Prodej bytu 3+1 • 94 m² bez realitkyBayreuth Bayreuth Bayern 95447
Mit tímto expozicí vám představujeme půdní prostor s potenciálem k přestavbě, který se nachází na atraktivním místě v Bayreuthu. Jednotka se nachází ve velmi udržovaném bytovém domě, který je vytápěn olejovým centrálním topením z roku 2024.
V letech 2025/2026 provedl současný vlastník komplexní modernizaci schodiště. Během této rekonstrukce byly zrenovovány a nově natřeny stěny, stropy, schodiště i vstupní dveře do bytu. Navíc bude brzy kompletně obnovena vstupní dveře do domu, což dále podtrhuje kvalitní celkový dojem objektu.
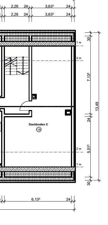
Půda především zaujme svou prostornou šikmou výškou a nabízí vynikající podmínky pro individuální přestavbu. Celkově je možné při rozšíření vytvořit až přibližně 94 m² pronajímatelného prostoru (včetně prostoru pod šikmým stropem nad ním).
Souhlas vlastníků s přestavbou již byl udělen a je závazně stanoven v prohlášení o rozdělení bytového domu. Případné potřebné stavební povolení k přestavbě musí kupující získat samostatně u města.
K půdnímu prostoru je navíc náležité vlastní sklepní kóje.
Nemovitost se nachází ve velmi udržovaném bytovém domě v krásném a žádaném Bayreuthu.
Lokalita spojuje výhody centra města s příjemnou obytnou kvalitou: nakupování, gastronomie, volnočasové a rekreační možnosti jsou v docházkové vzdálenosti, což zajišťuje vysoký komfort bydlení.
Veřejná doprava je skvěle dostupná.
• Olejové centrální topení, rok výroby 2024
• Ideální půdní prostor k přestavbě
• Schodiště zmodernizováno v roce 2025
• Vstupní dveře do domu budou obnověny v roce 2026
• Bytový dům z roku 1969
• Nemá status chráněné památky
• Lokalita blízko centra (pár minut od historického jádra)
• Optimální napojení na veřejnou dopravu
• Možnost moderního dispozice bytu
• Druhé patro
• Vlastní sklepní kóje
V okolí nemovitosti najdete
Stále hledáte to pravé?
Nastavte si hlídacího psa. Nabídky vybrané na míru dostanete souhrnně 1× denně e-mailem. S Premium profilem máte k ruce hlídačů rovnou 5 a když se něco objeví, informují vás obratem.




