Pronájem bytu 3+1 • 95 m² bez realitkyPetersstrasse 23, , Sasko
Petersstrasse 23, , SaskoMHD 3 minuty pěšky • VýtahBydlte tam, kde se psala historie! Tento impozantní obytný a obchodní dům z roku 1640 je pravým originálem Freibergu. Historická památka byla v roce 1997 důkladně a s láskou restaurována tak, aby spojila historický charakter s moderním životním standardem.
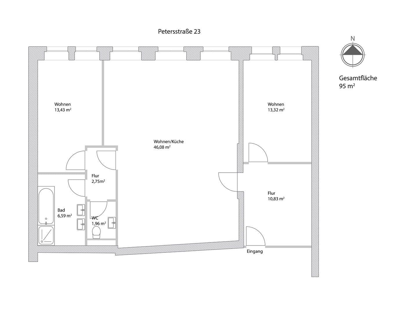
Tento světlý 3-pokojový byt ve 2. patře předního domu byl právě čerstvě zrenovován a je ihned k nastěhování. Dům obsahuje 14 bytových jednotek a dvě tiché komerční jednotky v přízemí.
Na cca 95 m² nabízí byt jedinečný pocit z bydlení díky kombinaci historické podstaty a prostorného řezu:
- Světlé centrum: Prostranná, otevřená obytná a kuchyňská část je srdcem bytu. Díky četným okenním plochám je tento prostor neobvykle světlý pro historickou budovu a nabízí dostatek místa pro individuální uspořádání kuchyně.
- Místa pro ústraní: Malý mezichod dovedně odděluje živou obytnou část od ložnice a sanitárních místností. Další místnost (dětský pokoj nebo pracovna) je přístupná přímo z hlavního chodby.
- Komfortní koupelna: Koupelna je vybavena vanou a sprchou. Samostatné hostinské WC s umyvadlem zajišťuje v každodenním životě další komfort.
- Vybavení: Obytné prostory mají upravené laminátové podlahy. Vlastní úložný prostor na patře poskytuje praktické úložné místo přímo před vstupními dveřmi bytu.
Byt vyniká svou prvotřídní polohou v centru Freibergu. Horní trh, univerzita a četné kavárny, restaurace a obchody jsou vzdáleny jen pár kroků. Navzdory centrální poloze nabízí masivní zděný materiál památky příjemný klid a jedinečnou atmosféru. Bydlíte tam, kde je Freiberg nejkrásnější.
- Obytná plocha: cca 96 m²
- Pokoje: 3
- Patro: 2. patro (přední dům)
- Stav: Čerstvě zrenovováno
- Dostupnost: Ihned k nastěhování
V okolí nemovitosti najdete
Stále hledáte to pravé?
Nastavte si hlídacího psa. Nabídky vybrané na míru dostanete souhrnně 1× denně e-mailem. S Premium profilem máte k ruce hlídačů rovnou 5 a když se něco objeví, informují vás obratem.












