
Prodej bytu 3+kk • 124 m² bez realitkyKoblberg 3 Soyen Koblberg Bayern 83564
Prodáváme náš upravený 3,5-pokojový byt v klidné lokalitě na okraji obce Soyen, s prostorovou blízkostí k Wasserburg am Inn.
Byt je vhodný zejména pro páry, mladé rodiny a pro lidi, kteří ocení klidné bydlení a dobré možnosti pro práci z domova.
Tento byt byl pro nás po mnoho let velmi příjemným domovem – především díky klidu, velkorysému prostoru a flexibilnímu uspořádání místností.
Nachází se v prvním patře malého domu s více byty – pouze se třemi obytnými jednotkami – v klidné slepé uličce bez průjezdu. Oblast oficiálně patří k Soyenu, nachází se však prostorově blíže k Wasserburg am Inn než k centru Soyenu.
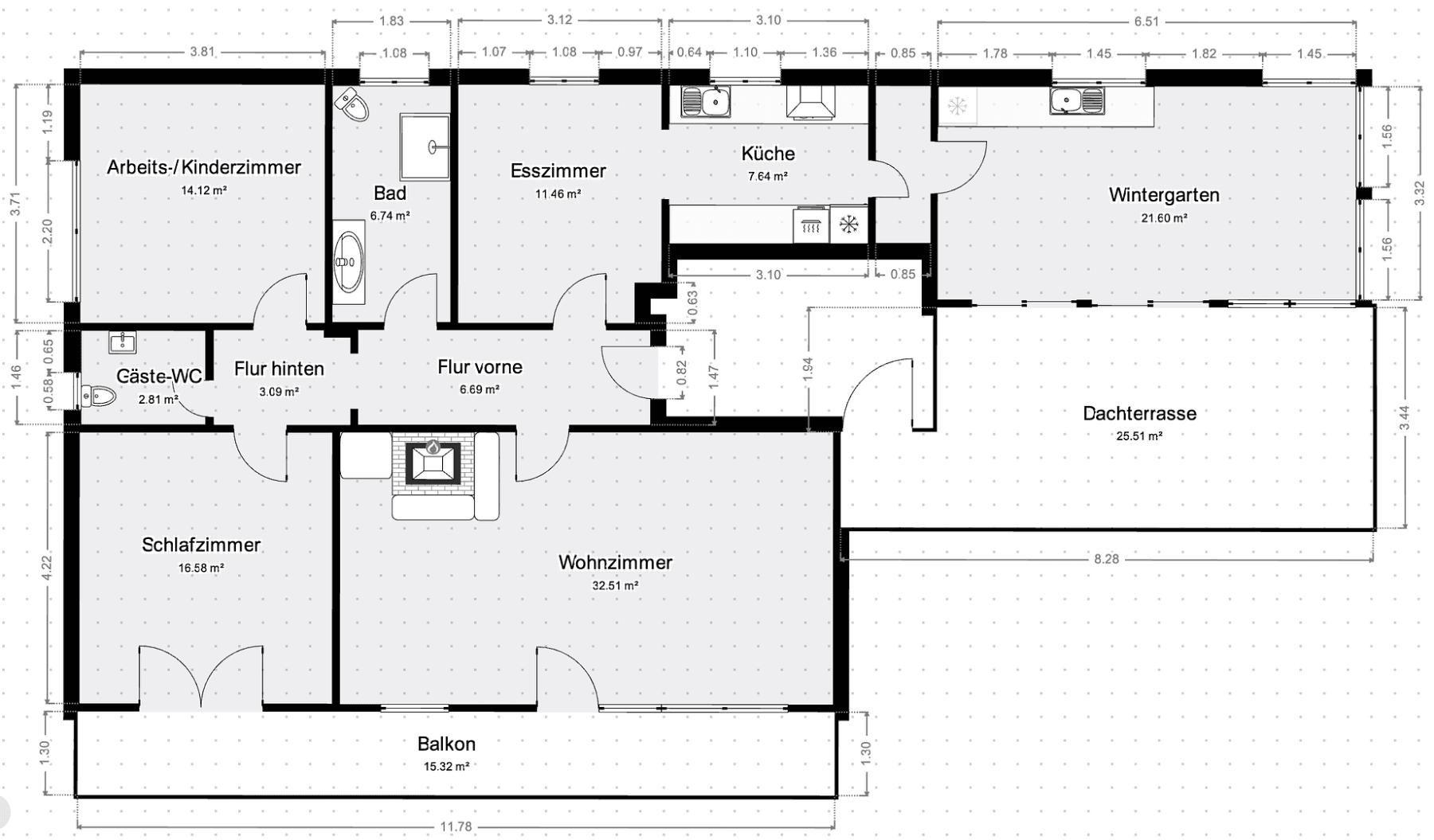
Přibližně 124 m² obytné plochy je rozděláno do 3,5 místností:
• Prostorný obývací pokoj s přístupem na balkon
• Ložnice, rovněž s přístupem na balkon
• Plnohodnotná pracovní místnost, ideální pro práci z domova
• Jídelna, která je otevřeně propojena s kuchyní a proto se počítá jako „půl-místnost“
Zimní zahrada není vytápěná a nepatří do obytné plochy, ale díky dobré izolaci je využitelná po celý rok. Odtud máte přímý vstup na velkou střešní terasu, která náleží výhradně bytu. Navíc existuje zamykatelný přístup na terasu přes schodiště, což je v každodenním životě velmi praktické.
Byt je upravený a je ihned k nastěhování.
Koupelna je vybavena sprchou, navíc je k dispozici samostatné hostinské WC. Vestavěná kuchyň je funkční a patří k bytové jednotce. V zimě zajišťuje příjemné teplo kachlový topení v obývacím pokoji.
Ke bytu dále patří dva prostorné sklepní prostory, garáž s wallboxem pro elektromobily a další venkovní parkovací místo. Na střeše se nachází fotovoltaická elektrárna, kterou využívá společně společenství vlastníků domu. V domě je rovněž k dispozici optické připojení.
Byt se nachází v klidné rezidenční oblasti na okraji Soyenu, bez průjezdu, a leží blíže k Wasserburg am Inn než k samotnému centru Soyenu. Okolí je klidné a příjemně odloučené, aniž by bylo odlehlé.
Wasserburg am Inn s obchodními možnostmi, lékaři, školami, gastronomií a nádražím je dosažitelná během krátké doby. Zařízení pro každodenní potřeby jsou k dispozici jak směrem k Soyenu, tak i směrem k Wasserburg. Lokalita je obzvláště vhodná pro lidi, kteří chtějí bydlet v klidu, ale zároveň mít dobré dopravní spojení.
V okolí nemovitosti najdete
Stále hledáte to pravé?
Nastavte si hlídacího psa. Nabídky vybrané na míru dostanete souhrnně 1× denně e-mailem. S Premium profilem máte k ruce hlídačů rovnou 5 a když se něco objeví, informují vás obratem.




























