
Prodej domu • 294 m² bez realitky, Porýní-Falc
, Porýní-FalcMHD 8 minut autem • ParkováníGroßzügiges Wohnen · Kapitalanlage · Mehrgenerationwohnen · Arbeiten unter einem Dach · KfW-Förderung
Velkorysý životní prostor · Investice do nemovitosti · Vícegenerační bydlení · Práce pod jednou střechou · Dotace KfW
Dieses beeindruckende Bruchsteinhaus aus dem Jahr um die 1900 verbindet den Charme historischer Bausubstanz mit modernster Technik.
Tento impozantní cihlový dům z počátku 20. století (kolem roku 1900) spojuje kouzlo historického stavebního materiálu s nejmodernější technikou.
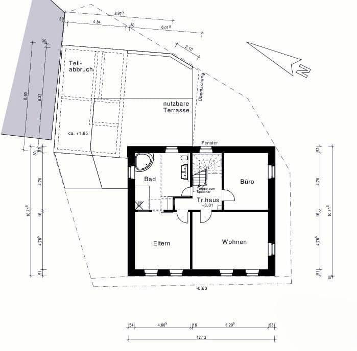
Die Immobilie verfügt über eine Gesamtwohnfläche von ca. 294 m3 , verteilt auf 3 Etagen und wird durch einen ca. 25 m3 großen, historischen Gewölbekeller ergänzt.
Auf dem Grundstück stehen zwei Pkw -Stellplätze zur Verfügung
Nemovitost nabízí celkovou obytnou plochu přibližně 294 m², rozloženou na 3 podlažích, a je doplněna o historický sklep s klenutými stropy o rozloze cca 25 m².
Na pozemku jsou k dispozici dvě parkovací místa pro automobily.
Der aktuelle Zustand befindet sich in einem fortgeschrittenen Rohbau-bzw. Ausbauzustand.
Současný stav je ve fázi pokročilého hrubé stavby resp. rozpracovaného interiéru.
Ein Großteil der kostenintensiven, technischen Kerngewerke wurden bereits vollständig erneuert, während der weitere Innenausbau bewusst offen gestaltet ist.
Velká část nákladných, technických rozvodů byla již kompletně obnovena, zatímco další interiérové úpravy jsou záměrně ponechány otevřené pro budoucí individuální ztvárnění.
Diese Immobilie richtet sich insbesondere an Käufer, die Eigenleistung einbringen und ihre individuellen Ausbauvorstellungen verwirklichen möchten
Tato nemovitost je určena zejména kupcům, kteří chtějí sami přiložit ruku k dílu a realizovat své individuální představy o úpravě.
Ausstattung & Technische Highlights
Vybavení a technické vychytávky
Diese Immobilie wurde technisch nahezu vollständig erneuert:
Tato nemovitost byla technicky téměř kompletně zrekonstruována:
• Vollständig erneuertes Dach inkl. Aufdachdämmung (80 mm Holzweichfaserdämmung), neue Unterspannbahn, Lattung und Dacheindeckung (Tonziegel Anthrazit)
• Kompletně obnověná střecha včetně dodatečné izolace na střeše (80 mm dřevovlákna s měkkou strukturou), nová podložní fólie, krokve a krytina (pálená hlína v antracitové barvě)
• Neue Dachrinne inkl. Fallrohre
• Nové okapové systémy včetně svodů
• Neue Giebel (gedämmt durch 60 mm Putzträgerplatten)
• Nové štíty (izolované 60mm desky pro omítku)
• Neuer, umlaufender und gedämmter Ringanker
• Nový, obvodový a izolovaný základový pás
• Schneefanggitter neu
• Nová ochrana proti hromadění sněhu
• Velux Dachfenster abschließbar inkl. Solarrölladen mit Funkfernbedienung
• Střešní okno Velux s uzamykatelnou funkcí, včetně solárního rolety ovládané na dálku
• Giebelfenster mit VSG Glas Abschließbar
• Štítová okna se sklem VSG, uzamykatelná
• Photovoltaikanlage mit 13,8 kwP
• Fotovoltaická elektrárna s výkonem 13,8 kWp
• Neue 2-fach verglaste Fenster, schallisoliert, Einbruchschutz und abschließbar
• Nová dvojnásobně zasklená okna, zvukově izolovaná, s ochranou proti vloupání a uzamykatelná
• Neue hochwertige Haustür inkl. Einbruchschutz, optisch passend zu den Fenstern, derzeit fachgerecht beim Händler eingelagert (noch nicht montiert)
• Nové kvalitní vstupní dveře včetně ochrany proti vloupání, vizuálně sladěné s okny, které jsou v současné době odborně uskladněny u prodejce (zatím nebyly instalovány)
• Neue Elektrische Rollläden mit Funkfernbedienung und Einbruchschutz
• Nové elektrické rolety ovládané na dálku s ochranou proti vloupání
• Sanitärinstallation ist in den Bädern bereits vorbereitet
• Instalace sanitárního zařízení je v koupelnách již připravena
• Vollständig erneuerte Elektrik im gesamten Gebäude
• Kompletně zrekonstruované elektroinstalace v celé budově
• Teilweise ausgeführter Innenausbau (verputzte Wände, Trockenbau/Rigips)
• Částečně provedené vnitřní úpravy (omítnuté zdi, sádrokartonové příčky)
Der Bauliche Zustand ist teilweise vollständig fertiggestellt, teilweise bewusst im Rohbau, um den zukünftigen Eigentümern maximale Gestaltungsfreiheit zu ermöglichen.
Stavební stav je místy zcela dokončený, jinde záměrně ponechán v podobě hrubé stavby, aby budoucím majitelům poskytl maximální možnosti při realizaci vlastních představ.
Genehmigungen & Erweiterungsmöglichkeiten
Stavební povolení a možnosti rozšíření
Für die Immobilie liegen bereits mehrere genehmigte Maßnahmen vor, die zusätzliche Sicherheit und finanzielle Vorteile bieten:
Pro tuto nemovitost již existuje několik schválených opatření, která nabízejí dodatečnou jistotu a finanční výhody:
• Genehmigte Baugenehmigung für die Errichtung einer Garage inklusive einer Dachterrasse
• Schválené stavební povolení pro výstavbu garáže včetně střešní terasy
• Genehmigte Baugenehmigung für einen Anbau zur Erweiterung der Wohnfläche
• Schválené stavební povolení pro přístavbu za účelem zvětšení obytné plochy
• Genehmigte KFW- Bundesförderung für effiziente Gebäude (BEG)
• Schválená federální podpora KfW pro efektivní budovy (BEG)
Die bestehende Förderzusage ermöglicht es dem Käufer, von staatlichen Fördermitteln im Rahmen der energetischen Sanierung zu profitieren und stellt einen erheblichen finanziellen Mehrwert dar.
Stávající závazek k dotační podpoře umožňuje kupujícímu využít státní dotace v rámci energetické renovace a představuje tak značnou finanční přidanou hodnotu.
Nutzung & Potenzial
Využití a potenciál
Diese Immobilie ist ein echtes Multitalent und bietet vielfältige Nutzungsmöglichkeiten:
Tato nemovitost je opravdovým multitalentem a nabízí rozmanité možnosti využití:
Eigennutzung
• Vlastní bydlení
Ideal für eine große Familie, Mehrgenerationenwohnen oder großzügiges Wohnen mit Homeoffice und individuellen Ausbauambitionen
Ideální pro velkou rodinu, vícegenerační bydlení nebo prostorné bydlení s možností home office a individuálními představami o úpravě.
Kapitalanlage
• Investice
Durch die Größe und den Grundriss ist die Aufteilung in zwei bis drei Wohneinheiten problemlos realisierbar – mit sehr gutem Vermietungspotenzial und nachhaltiger Wertsteigerung
Vzhledem k velikosti a dispozici lze nemovitost bez problémů rozdělit na dvě až tři obytné jednotky – s velmi dobrým potenciálem k pronájmu a dlouhodobým zhodnocením.
Wohnen & Arbeiten
• Bydlení a práce
Im Erdgeschoss ist bereits eine Gewerbeeinheit vorgesehen, ursprünglich als Friseursalon geplant.
Alle Anschlüsse sind vorhanden, können jedoch jederzeit ohne großen Aufwand zurückgebaut oder angepasst werden.
V přízemí je již připravena obchodní jednotka, původně plánovaná jako kadeřnictví.
Všechny přípojky jsou k dispozici, lze je však kdykoliv bez velké námahy zdemontovat nebo upravit.
Lage – Ländliche Ruhe mit Stadtnähe
• Lokalita – venkovský klid s městskou dostupností
In Heimweiler bei Kirn gelegen, vereint diese Immobilie das Beste aus zwei Welten:
Eine ruhige, ländliche Umgebung mit angenehmer Privatsphäre und gleichzeitig guter Anbindung an die Stadt. Ideal für alle, die großzügig wohnen möchten, ohne auf Infrastruktur, Einkaufsmöglichkeiten und kurze Wege verzichten zu müssen.
Nacházející se v Heimweilru u Kirnu, tato nemovitost spojuje to nejlepší z obou světů:
Klidné venkovské prostředí s příjemnou mírou soukromí a současně vynikající dostupností do města. Ideální pro všechny, kdo chtějí prostorné bydlení, aniž by museli obětovat infrastrukturu, možnosti nakupování a krátké vzdálenosti.
Fazit
• Závěr
Ein Haus für Menschen mit Visionen:
Dieses außergewöhnliche historische Bruchsteinhaus überzeugt durch seine solide Substanz, den zusätzlichen Charaktervollen Gewölbekeller umfangreiche modernisierte Technik, genehmigte Erweiterungsoptionen sowie eine bereits vorliegende Kfw Bundesförderung für effizientes Gebäude.
Dům pro lidi s vizemi:
Tento výjimečný historický cihlový dům osloví svou solidní konstrukcí, osobitým charakterem díky klenutému sklepnímu prostoru, rozsáhlou modernizovanou technikou, schválenými možnostmi rozšíření a již zajištěnou federální podporou KfW pro efektivní budovy.
Ideal für Käufer, die den weiteren Ausbau nach eigenen Vorstellungen realisieren möchten und dabei von bereits getätigten Investitionen, genehmigten Maßnahmen und staatlichen Fördermitteln Profitieren.
Ideální pro kupce, kteří chtějí realizovat další úpravy dle svých představ a zároveň využít již provedené investice, schválená opatření a státní dotační prostředky.
Parametry nemovitosti
| Stáří | Nad 50 let |
|---|---|
| Stav | Po rekonstrukci |
| Užitná plocha | 294 m² |
| Celkem podlaží | 3 |
| Dostupné od | 15. 2. 2026 |
|---|---|
| Číslo inzerátu | 991061 |
| Plocha pozemku | 343 m² |
| Cena za jednotku | 1 289 € / m2 |
Co tato nemovitost nabízí?
| Sklep | |
| Parkování |
| MHD 8 minut autem |
V okolí nemovitosti najdete
Stále hledáte to pravé?
Nastavte si hlídacího psa. Nabídky vybrané na míru dostanete souhrnně 1× denně e-mailem. S Premium profilem máte k ruce hlídačů rovnou 5 a když se něco objeví, informují vás obratem.

















