
Prodej bytu 4+1 • 110 m² bez realitkyHohenzollernring 18c Berlin Spandau Berlin 13585
Původně postavená jako kasárna během první světové války (1914) a kompletně zrekonstruovaná v letech 2013–2015, tato vlastnická jednotka ve vyšším přízemí samostatně stojícího vícegeneračního domu nabízí vše, po čem si člověk může vysněný byt přát: kouzlo starých budov s vysokými stropy, prostorné, světlé uspořádání s řadou kasetových oken a dveří, parketovou podlahu, dva balkony a malou zahrádku orientovanou na jih. A to vše v nejlepší lokalitě ve Spandau, v docházkové vzdálenosti od historického centra a nádraží, s mateřskými školami, školami, supermarkety a parky nedaleko Steinwurfu. Navíc bonus: Suterén nabízí dodatečné možnosti přestavby.
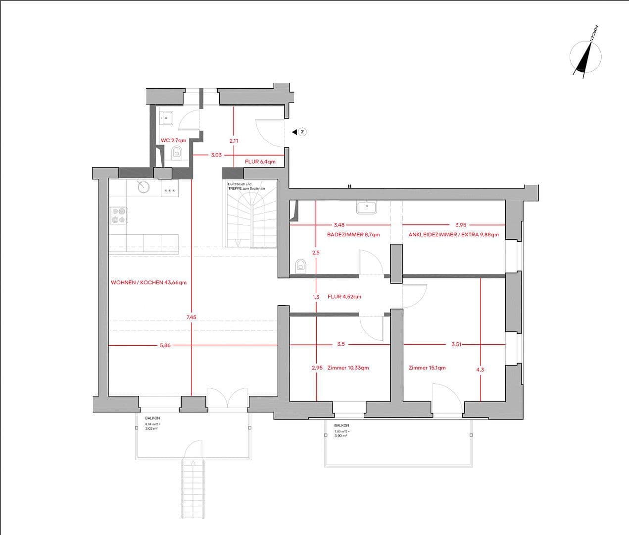
Středobodem přibližně 110 m² velkého bytu je prostorný obývací prostor s integrovaným ostrovem kuchyně. Odtud vede přístup na balkon, který vyúsťuje do malé zahrádky se zvláštním užívacím právem. Z jednoho ze dvou dalších pokojů se dostanete na druhý balkon.
K dispozici je koupelna a samostatné hostinské WC, které doplňují dispozici bytu. Z koupelny je přístup do čtvrtého pokoje, který slouží jako šatna. Parkovací místo lze pronajmout za přibližně 30 €/měsíc.
Součástí kupní ceny je i zvláštní potenciál k přestavbě: V suterénu se nachází dodatečná užitná plocha o rozloze téměř 50 m² se zvláštním užívacím právem, s výškou stropu přibližně 2,30 m a několika okny. Tato část je stavebním úřadem a v dělení prohlášena jako skladovací/hobby/prostor k bydlení. Již existuje (aktuálně uzavřený) průlom do bytu, který by bylo možné, pokud by byl zájem, doplnit schodištěm. Pro tento prostor existuje samostatný vstup ze zahrady.
Kromě kupní ceny je rovněž možnost zakoupit další dva prostory s vlastním SNR. Tyto jsou aktuálně definovány jako skladovací místnosti a nabízejí další potenciál; k tomu je třeba projednání s příslušným stavebním úřadem. Jeden z těchto dvou prostor (místnost C) má vlastní vstup do sklepení.
Dům je udržovaný – nachází se v soukromém, oploceném areálu se dvěma vjezdy a malým dětským hřištěm na pozemku. Společenství vlastníků tvoří převážně majitelé a kladou velký důraz na komunitu. Pořádají se společné aktivity jako letní slavnosti, zdobení vánočního stromku a „Dinner-Hopping“. Neméně atraktivní je nemovitost i dlouhodobě: Společenství vlastníků plánuje energetické novinky, které mají být dle současného plánu financovány z rezerv – což vysílá silný signál ohledně zachování hodnoty a budoucí udržitelnosti.
Byt se nachází v zavedené, klidné části Berlína – a přesto tak centrálně, že všechno potřebné máte v dosahu. Bydlíte pohodově v ustálené čtvrti kolem Hohenzollernringu, s kombinací krásné staré architektury a pečlivě udržované novostavby a s infrastrukturou, která skutečně nabízí vše, po čem si člověk při příjemném městském životě může přát.
Pro každodenní potřeby je tu vše, co potřebujete: supermarkety, pekárny, malé specializované obchody, dále mateřské školy a školy v okolí. A pokud máte chuť na město, v docházkové vzdálenosti se nachází buď staré centrum Spandau nebo Spandau Arcaden s velkým výběrem obchodů.
Ani dostupnost neponechává žádné přání neuspokojené: Zastávka autobusů je přímo před domem a k nádraží dojdu asi za 10 minut. Odtud jste přibližně 30 minut od hlavního nádraží v Berlíně a asi 60 minut od letiště BER.
A nyní přichází část, kterou Spandauer zvláště milují: I když bydlíte ve městě, voda a zeleň máte prakticky "za rohem". Spandauer Grüne Ring, les Spandauer Forst, řeka Havel a jezero Stößensee leží doslova pár kroků od vás. Také Potsdam a okolí Braniborska jsou rychle dostupné. Celkově se jedná o lokalitu, která nabízí to nejlepší z obou světů: městský život se vším, co k němu patří – a zároveň čistou přírodu s velkým potenciálem pro volnočasové a rekreační aktivity.
V okolí nemovitosti najdete
Stále hledáte to pravé?
Nastavte si hlídacího psa. Nabídky vybrané na míru dostanete souhrnně 1× denně e-mailem. S Premium profilem máte k ruce hlídačů rovnou 5 a když se něco objeví, informují vás obratem.













































