
Pronájem bytu 2+1 • 33 m² bez realitkyBrauerstrasse 1 Essen Südviertel Nordrhein-Westfalen 45128
Brauerstrasse 1 Essen Südviertel Nordrhein-Westfalen 45128MHD 2 minuty pěškyDie gut geschnittene 2,5-Raumwohnung liegt im Erdgeschoss eines Mehrfamilienhauses mit 8 WE in einer verkehrsruhigen Seitenstraße.
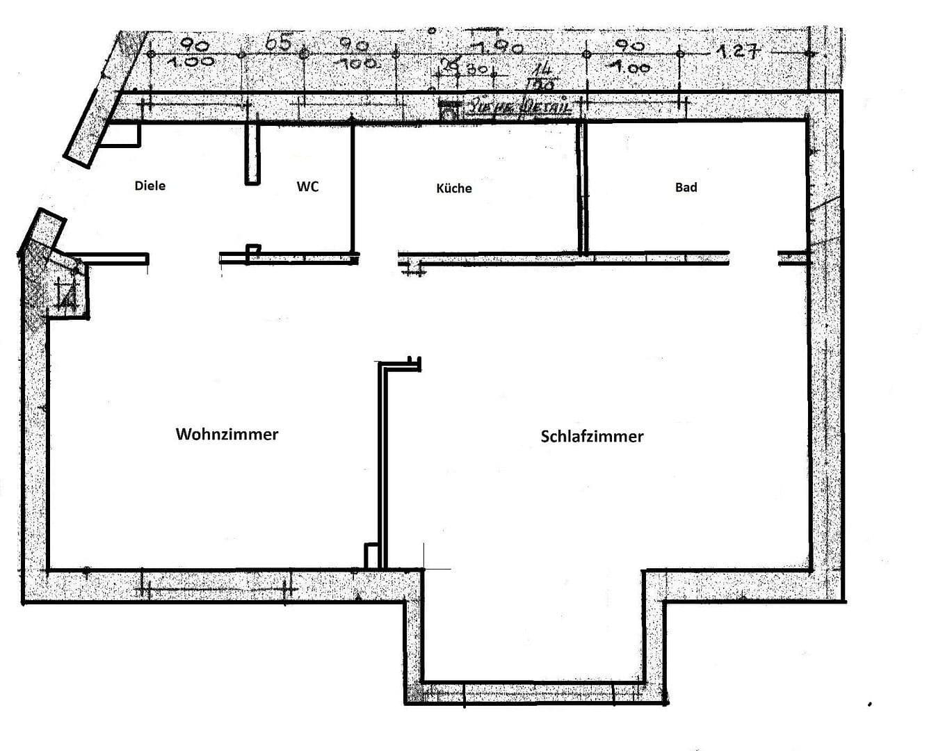
Dobře řežený byt o 2,5 pokojích se nachází v přízemí vícefamilijního domu s 8 byty na klidné vedlejší silnici.
Die gute Infrastruktur vor Ort macht das Leben einfach und bequem:
Výborná místní infrastruktura usnadňuje a zpříjemňuje život:
Anschluss an den öffentlichen Nahverkehr (Straßenbahnlinie 101, 105+106 sowie Bus 145, 146, 193+155: in 1 Min., Hauptbahnhof: 6 Min. Fußweg);
Dopravní spojení s veřejnou dopravou (tramvajové linky 101, 105 a 106 a autobusy 145, 146, 193 a 155: 1 minuta, hlavní nádraží: 6 minut pěšky);
Schnelle Anbindung zur Auffahrt A52 und A40 und zur Ruhrallee 3-5 Min.;
Rychlé spojení na příjezd na dálnici A52 a A40 a k Ruhrallee za 3-5 minut;
Gute Einkaufsmöglichkeiten (Supermarkt/Bäcker: 6 Min., Innenstadt 8 Min.: Fußweg);
Dobré nákupní možnosti (supermarket/pekárna za 6 minut, centrum za 8 minut pěšky);
DHL Poststelle in 100m
DHL poštovní kancelář 100 m
Angenehm ist auch der große Stadtgarten der nur 100m entfernt liegt.
Příjemnou předností je také velká městská zahrada vzdálená jen 100 m.
Im Essener Stadtgarten sind das Aalto-Theater der Saalbau bzw. die Essener Philharmonie zu finden. Fußläufig von hier befindet sich der Isenbergplatz (Kietz), der als Zentrum der Künstlerszene gilt mit Cafe`s, Bar`s und der Rüttenscheider Markt.
V Essenovské městské zahradě se nachází Aalto divadlo, budova Saalbau nebo Essen Philharmonie. Pěšky odtud je i Isenbergplatz (Kietz), které je považováno za centrum umělecké scény s kavárnami, bary a trhem Rüttenscheider.
Bad:
Koupelna:
Das helle, freundliche Bad ist modern, zeitlos gefliest und hat eine sehr geräumige Dusche und ein Fenster.
Světlá, přívětivá koupelna je moderní, nadčasově obložena dlažbou a má velmi prostornou sprchu a okno.
Die Warmwasseraufbereitung wird gradgenau über einen elektronischen Durchlauferhitzer erzielt, der über eine Fernbedienung geregelt werden kann.
Ohřev teplé vody je přesně řízen elektronickým průtokovým ohřívačem, který je ovládán dálkovým ovladačem.
WC:
Toaleta:
Seperater Raum mit Fenster, modern gefliest mit Hänge-WC
Oddělený pokoj s oknem, moderně obložený dlaždicemi, s závěsnou toaletou.
Wohnzimmer:
Obývací pokoj:
Sehr helles freundliches Wohnzimmer, das mit einem großen grauen Hülsta Sofa, kleinem Esstisch, Wohnzimmertisch und Regalen gemütlich eingerichtet ist.
Velmi světlý a přívětivý obývací pokoj, který je útulně zařízen velkou šedou sedací soupravou Hülsta, malým jídelním stolem, konferenčním stolkem a regály.
Schlafzimmer:
Ložnice:
Modern eingerichtet mit einem neuwertigen Hülsta Kleiderschrank sowie ein Hülsta Bett mit Bademia Federkernmatratze, Schreibtisch und einem Regal mit Einschüben.
Moderně zařízená s téměř novým šatní skříněm Hülsta, postelí Hülsta s matrací Bademia s pružinovým jádrem, psacím stolem a regálem s policemi.
Das Bett steht auf einem Podest, was zusätzlich mit 2 riesigen Schubladen Stauraum schafft.
Postel stojí na podestu, který navíc vytváří úložný prostor se dvěma obrovskými zásuvkami.
Küche:
Kuchyně:
Kleine moderne Einbauküche mit Fenster und zeitloser weißer Hochglanzfront, die genügend Stauraum bietet, in der auch das Kochen für eine Person Spaß macht.
Malá moderní zabudovaná kuchyň s oknem a nadčasovou bílou lesklou frontou, která nabízí dostatek úložného prostoru a ve které je vaření pro jednu osobu i zábavou.
Diele:
Chodba:
Kleine Diele mit Fenster sowie einem Regal und Garderobenhaken.
Malá chodba s oknem, regálem a věšákem na kabáty.
Moderne Komfortfenster mit extra Schallschutz und eine energiesparende Gaszentralheizung mit 160mm Wärmedämmverbundsystem ermöglicht es auch in Zukunft energiebewusst zu heizen.
Moderní komfortní okna s dodatečnou zvukovou izolací a energeticky úsporné plynové centrální topení s 160mm tepelně izolačním systémem umožňují i do budoucna ekologicky vytápět.
Die Kosten für Heizung waren letztes Jahr nur 20 Euro im Monat !!
Náklady na topení byly loni pouhých 20 eur měsíčně!!
Waschmaschine kann bequem in der Waschküche im Keller aufgestellt werden.
Pračka může být pohodlně umístěna v prádelně v suterénu.
Ein SAT-TV Anschluss ist vorhanden.
Je zde zapojen satelitní TV.
Internet ist über ein superschnellen Glasfaseranschluss problemlos möglich!
Internet je bez problémů dostupný prostřednictvím superrychlého optického připojení!
Der Eigentümer wünscht sich ein längerfristiges Mietverhältnis und setzt daher eine Mietmindestdauer von 1 Jahr voraus.
Majitel si přeje dlouhodobý nájemní vztah a stanoví minimální dobu pronájmu 1 rok.
!!!! Wir würden uns freuen, wenn Sie uns im Rahmen Ihrer Anfrage (auch) einen kleinen Überblick über Ihre Person (Alter, Job, usw.) geben könnten !!!!
!!!! Budeme rádi, když nám v rámci Vašeho zájmu sdělíte i krátký přehled o sobě (věk, zaměstnání apod.) !!!!
Keine Haustiere erwünscht!
Domácí mazlíčci nejsou povoleni!
Bitte nur Nichtraucher!
Prosím pouze nekuřáky!
!! Für die eingerichtete Wohnung kommt noch ein Möblierungszuschlag von monatlich 40 Euro hinzu !!
!! K zařízenému bytu se navíc účtuje měsíční příplatek za nábytek ve výši 40 eur !!
315€ (Kaltmiete) + ca. 85€ (Nebenkosten) + 40€ (Möblierungszuschlag) = 440€
315 € (nájem bez služeb) + cca 85 € (provozní náklady) + 40 € (příplatek za nábytek) = 440 €
Nebenkosten belaufen sich im Jahr 2025 bei 1 Person auf ca. 79€
Provozní náklady v roce 2025 činí u jedné osoby přibližně 79 €.
In den Nebenkosten ist die wöchentliche Treppenhausreinigung und der SAT-TV Anschluss enthalten.
V provozních nákladech je zahrnuta týdenní úklid schodiště a satelitní TV připojení.
Die Wohnung ist zur Zeit vermietet und kann nach Terminabsprache mit uns besichtigt werden.
Byt je v současné době pronajat a lze jej prohlédnout po domluvení termínu s námi.
Alle Angaben in diesem Exposé wurden von mir so sorgfältig und so vollständig wie möglich gemacht. Gleichwohl kann das Vorhandensein von Fehlern nicht ausgeschlossen werden. Die Angaben in diesem Exposé erfolgen daher ohne jede Gewähr. Maßgeblich sind die im Mietvertrag geschlossenen Vereinbarungen.
Všechny údaje v této prezentaci jsem vyhotovil co nejpečlivěji a nejúplněji, avšak nelze vyloučit možné chyby. Údaje v této prezentaci jsou tedy poskytovány bez záruky. Rozhodující jsou ujednání uzavřená v nájemní smlouvě.
V okolí nemovitosti najdete
Stále hledáte to pravé?
Nastavte si hlídacího psa. Nabídky vybrané na míru dostanete souhrnně 1× denně e-mailem. S Premium profilem máte k ruce hlídačů rovnou 5 a když se něco objeví, informují vás obratem.
































