
Prodej bytu 3+1 • 95 m² bez realitkyHamburg Groß Borstel Hamburg 22529
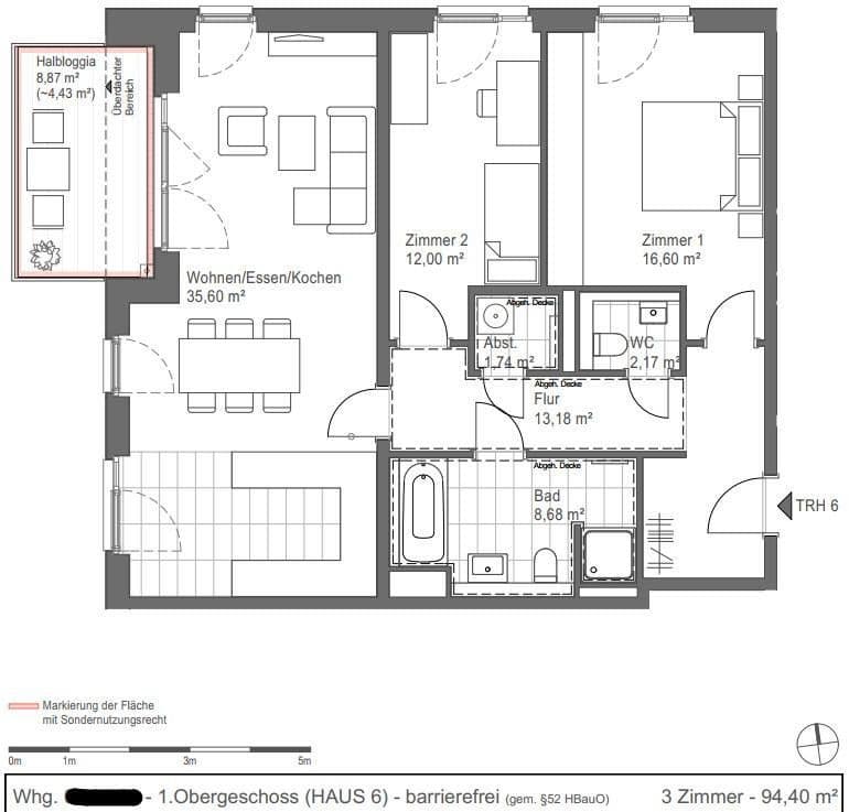
Hamburg Groß Borstel Hamburg 22529MHD 1 minuta pěšky • Výtah • GarážStylový, kvalitně vybavený a světlý 3-pokojový vlastnický byt o prostorné obyvatelné ploše 94,40 m² se nachází v 1. patře oblíbeného bytového komplexu „Dein Lieblingsplatz am Tarpenbeker Ufer“ (stavební parcela č. 7), dokončeném v roce 2019, s prvním nastěhováním v únoru 2020.
Byt zaujme moderní architekturou, bezbariérovým přístupem a mimořádně klidnou polohou s rozsáhlým výhledem do zeleně.
Skutečně jedinečná vlastnost: bydlení s výhledem na Tarpenbek.
Ze všech obytných a spací pokojů je zajištěn přímý, nezastavitelný výhled na Tarpenbek.
Kombinace polohy u vody, širokého výhledu a chráněné orientace do vnitřního dvora vytváří obytné prostředí, které se v této podobě vyskytuje jen zřídka – tiché, zelené a přitom miesky propojené; přímo v Hamburku, zcela bez pouličního hluku.
Promyšlená dispozice s pocitem pohody:
• Prostorný obývací/jídelní/kuchyňský prostor (35,60 m²)
– Otevřené srdce bytu, ideální pro společné chvíle s rodinou a přáteli
• Ložnice (16,60 m²)
– Klidně umístěná s přímým výhledem do zeleně
• Dětský pokoj, pokoj pro hosty nebo kancelář (12,00 m²)
– Univerzálně využitelný – ideální pro rodinu nebo práci z domova
• Polobalkony (8,87 m²) se západní orientací
– Chráněný, soukromý venkovní prostor ideální pro slunění, městské zahrádkaření nebo pohodové večery při západu slunce
• Moderní kompletní koupelna (8,68 m²)
• Samostatné hostinské WC (2,17 m²)
• Prostorná chodba (13,18 m²)
• Úložný prostor / komora (1,74 m²)
• Suterénní místnost
Volitelně je k dispozici parkovací místo v podzemní garáži (35 000 €)
– Přímo v domě, suché, bezpečné a pohodlně přístupné výtahem nebo schodištěm.
– Právě díky omezenému parkovacímu prostoru v této lokalitě představuje vlastní parkovací místo značný komfortní i hodnotový přínos.
– Dodatečná instalace nabíjecí stanice pro elektromobily (Wallbox) je možná. Na bezprostředně sousedícím parkovacím místě již byla Wallbox instalována – což je jasná výhoda pro budoucnost orientovanou mobilitu.
Soukromý prodej – pro kupujícího bez provize.
Dein Lieblingsplatz am Tarpenbeker Ufer – Hamburg-Groß Borstel
Objevte svou novou, klidnou lokalitu přímo u nově zrekonstruovaného čtvrťového parku a u řeky Tarpenbek v Hamburku-Groß Borstel.
Jen pár kroků od domova se nachází idylické Eppendorfer Moor – přibližně 26 hektarů rozsáhlé přírodní oázy s lesními a rašelinnými oblastmi a četnými pěšími i běžeckými stezkami uprostřed hanzburského města.
Vyhledávaný bytový komplex „Dein Lieblingsplatz am Tarpenbeker Ufer“ spojuje bydlení v těsném kontaktu s přírodou s městskou dostupností. Groß Borstel si uchovává svůj vyrostlý, téměř vesnický půvab, zatímco oblíbený Hamburg-Eppendorf se svými historickými budovami, kavárnami, butiky a trhy je vzdálen jen několik minut.
Vaše výhody na první pohled:
• Přímá poloha u parku a u Tarpenbek – relaxace přímo u dveří
• Prostorné a moderně navržené dětské hřiště v čtvrťovém parku
• Řada dalších menších dětských hřišť rozmístěných po celé čtvrti – ideální pro rodiny
• Mnoho spolků malých zahrad v bezprostřední blízkosti – zelené plochy a ustálená sousedská struktura
• Eppendorfer Moor a Hayns Park u řeky Alster jsou vzdáleny přibližně 1 km – příroda přímo ve městě
• Eppendorfer Mühlenteich a Alsterlauf – ideální pro procházky a běhání
• Řada mateřských škol s volnými místy, škol a lékáren v docházkové vzdálenosti
• Velmi dobrá občanská vybavenost: REWE, EDEKA, ALDI, Budni (Borsteler Chaussee, cca 6 minut chůze), Nedderfeld Center s Kauflandem a MediaMarktem v bezprostřední blízkosti
• Výborné cyklotrasy a velmi dobré spojení veřejnou dopravou (např. autobusové linky 5, 114, U-Bahn Lattenkamp)
• Rychlé spojení s centrem Hamburku (cca 20 minut dopravou)
• Letiště Hamburg dosažitelné přibližně za 10 minut autem
• Sportovní kluby a fitness centra přímo v okolí
• Týdenní trhy v Groß Borstel i Lokstedt v širším okolí
Také Eppendorfer Landstraße – oblíbená promenáda s butiky, kavárnami a trhem – je vzdálena jen několik minut.
Ideální domov pro všechny, kteří hledají vzácnou kombinaci klidu, přírodního prostředí, rodinné přívětivosti a městské kvality života.
Kvalitní novostavba od Otto-Wulff – udržitelná, moderní a zachovávající hodnotu
Byt byl kvalitně navržen a zrealizován renomovaným developerem Otto Wulff: veškeré vybavení je již instalováno a je zahrnuto v kupní ceně. Byt se prezentuje moderně, nenáročně na údržbu a na jednotně vysoké úrovni vybavení.
Přehled vybavení:
• Trojnásobně zasklená okna pro vynikající zvukovou a tepelnou izolaci
• Skutečné dubové parkety ve všech obytných a spací pokojích – nadčasové, teplé a trvanlivé
• Kvalitní dlaždice v kuchyni a koupelnách
• Sanitární keramika značky Villeroy & Boch v koupelně i hostinském WC
• Stylová vestavěná kuchyň od Nobilia v ceně
• Trouba Samsung StudioLine (černá kartáčovaná nerezová ocel)
• Varná deska Samsung StudioLine
• Myčka nádobí
• Kombinace chladicí a mrazicí skříňky
• Lékárenská skříň a prostorná řešení pro úložné prostory
• Podlahová okna pro mimořádně světlé, prosvětlené místnosti
• Podlahové vytápění ve všech místnostech
• Moderní videointerkomunikační systém
• Vlastní sklepní místnost i společný sklep na kola
• Osobní výtah od podzemní garáže až na obytné patro
• Bezbariérové řešení dle § 52 HBauO – komfortní a připravené do budoucna
Byt je od dokončení v roce 2019 ve velmi udržovaném stavu. Bytový komplex je již zakořeněný a etablovaný – stylový domov v klidném, zeleném prostředí s udržitelnou stavební kvalitou.
Byt se prodává a předává nebytěný.
K nastěhování připraven od července 2026.
V okolí nemovitosti najdete
Stále hledáte to pravé?
Nastavte si hlídacího psa. Nabídky vybrané na míru dostanete souhrnně 1× denně e-mailem. S Premium profilem máte k ruce hlídačů rovnou 5 a když se něco objeví, informují vás obratem.


































