
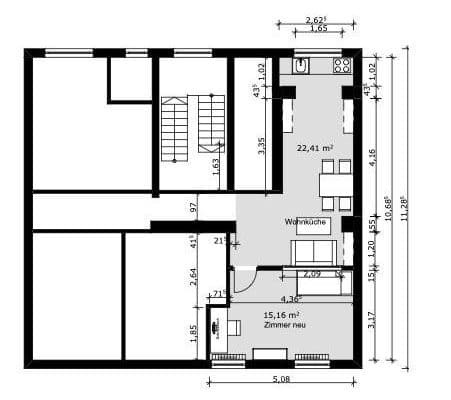
Prodej bytu 3+1 • 95 m² bez realitky, Severní Porýní-Vestfálsko
, Severní Porýní-VestfálskoMHD 2 minuty pěšky • Parkování • GarážTento výjimečně krásný a světlý byt se nachází ve 2. patře čtyřrodinního domu v klidné, ale centrálně situované lokalitě. Z obývacího/jídelního pokoje s přístupem na jihovýchodní balkón nabízí fantastický výhled do dálky. Byt je velmi dobře dispozicovaný a je ideální pro single, pár nebo rodinu s jedním dítětem. Kromě obývacího/jídelního pokoje disponuje byt ložnicí, pracovním či dětským pokojem, kuchyní, koupelnou s přirozeným světlem (se dvěma okny), toaletou, sprchou a vanou, technickou místností s plynovým jednotkovým topením a možností umístit pračku a sušičku.
Přístup do bytu je možný přes bytové dveře umístěné v 1. patře, kde se nachází malý předhall s šatní skříní. Schodiště vede do 2. patra, kde se byt nachází. Před dveřmi bytu v 2. patře se pak nachází technická místnost a vstup na podkroví, které lze částečně využít jako úložný prostor. K bytu rovněž patří sklepní místnost. Měsíční poplatek spojený s bytem činí přibližně 170 €. Garáž je možné zakoupit samostatně, navíc se před garáží nachází parkovací místo pro další automobil.
V ložnici je velká vestavěná skříň s posuvnými dveřmi. Okna jsou nově natřená. Dřevěná podlaha na balkónu byla čerstvě ošetřena olejem a obložení štítu z dřeva bylo nedávno natřeno. Krb v obývací/jídelně již nesmí být používán – případně může být demontován, a v případě potřeby lze ke komínu připojit kamenný kamnový pec.
Nemovitost se nachází v centrální a dobře dostupné části Gevelsbergu, nedaleko centra města. Obchody pro běžné potřeby, kavárny, restaurace, stejně jako lékaři a lékárny jsou pohodlně dostupné pěšky. I rodiny mají v okolí co využít – školy, školky a volnočasové aktivity se nacházejí v bezprostřední blízkosti. Díky dobré dostupnosti veřejné dopravy a blízkosti dálnic A1, A43 a A46 je zaručena ideální dopravní dostupnost okolních měst, jako jsou Wuppertal, Hagen a Dortmund. Lokalita tak spojuje klidné bydlení s městskou dostupností a nabízí vynikající podmínky jak pro vlastní bydlení, tak i pro investory.
V okolí nemovitosti najdete
Stále hledáte to pravé?
Nastavte si hlídacího psa. Nabídky vybrané na míru dostanete souhrnně 1× denně e-mailem. S Premium profilem máte k ruce hlídačů rovnou 5 a když se něco objeví, informují vás obratem.






















