
Prodej domu 6+1 • 150 m² bez realitkyFichteweg 32, , Severní Porýní-Vestfálsko
Fichteweg 32, , Severní Porýní-VestfálskoMHD 4 minuty pěšky • Parkování • GarážTransparentní, prostorné bydlení v řadovém rodinném domě na konci řady, který se nachází v klidné a vyhledávané lokalitě Mettmann-Metzkausen, nedaleko městské hranice Düsseldorfu.
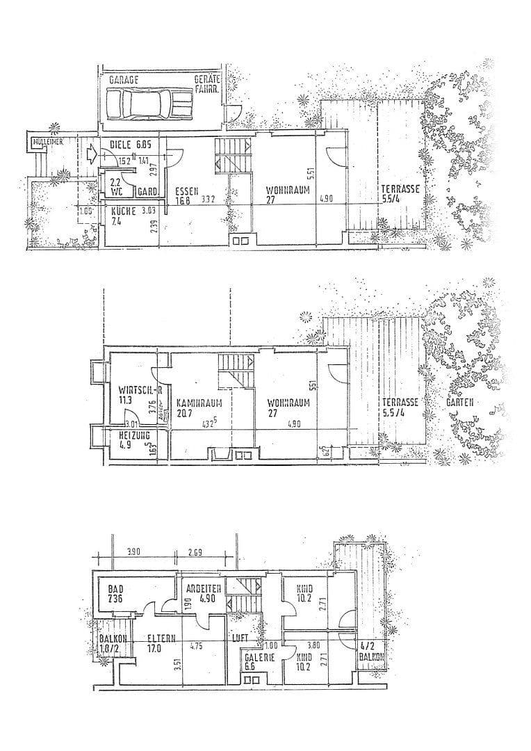
Bydlíte na přibližně 150 m², rozložených do pěti světlých poloúrovní (Split-Level).
Do domu vstupujete na střední úrovni 3. Nacházíte se zde u hostinské toalety, na chodbě s předsíňovým šatníkem, v kuchyni a jídelně. Odtud se dostanete na nižší úroveň 2, kde se nachází obývací pokoj s širokou okenní fasádou směrem k terase a s téměř neviditelnou, velkou zahradou.
O úroveň níže (úroveň 1) se nachází otevřená místnost s krbem. Zde můžete sledovat své děti, jak si hrají na zahradě, zatímco si u krbu čtete dobrou knihu. Za touto místností s krbem se nachází domácí místnost, kotelna/sklep a také sklep pod garáží s přístupem do zahrady.
Ze vstupní úrovně se dostanete nahoru na úroveň 4, kde jsou dvě dětské/obytné místnosti o výměře 11 m² s odděleným přístupem na balkon a galerie. Bez větších obtíží lze tyto dvě místnosti spojit do jedné místnosti o výměře 22 m². Obě místnosti mají východ na velký jižní balkon s výhledem do zahrady.
Na nejvyšší úrovni 5 se nachází hlavní ložnice s balkonem, malá pracovní zóna a kompletní koupelna s vanou a sprchou.
Všechny úrovně propojuje velká, otevřená světelná jáma a otevřené dřevěné schody s průhledným skleněným zábradlím.
Neobvykle velká jednosedlová garáž je kompletně sklepní a má přímý přístup do zahrady. Garáž navíc nabízí možnost parkování dalšího automobilu přímo před ní.
Nádherně upravená a nenáročná předzahrada doplňuje architektonicky náročný a výjimečný dojem tohoto rodinného domu navrženého architektem.
Dům se nachází na konci klidné slepé ulice v čtvrti Metzkausen na pozemku o rozloze přibližně 325 m². Mettmann-Metzkausen patří mezi nejvyhledávanější obytné lokality v Mettmannu, v bezprostřední blízkosti Düsseldorfu.
Dopravní spojení s okolními městy jsou díky Regio S Bahn směřující do Düsseldorfu a na letiště, stejně jako díky blízkosti komunikací K18/B7 a dálnice A3, velmi dobrá.
V bezprostředním okolí naleznete bohatou nabídku sportovních aktivit (tenisové kluby, různá golfová hřiště a jezdecké statky). Hodnota relaxace a volnočasových možností je velmi vysoká, neboť světově proslulé Neandertalské údolí je prakticky přímo za vašimi dveřmi.
Mettmann nabízí vynikající infrastrukturu. V docházkové vzdálenosti se nacházejí obchody, školy a mateřské školy.
V rámci náročné rekonstrukce v roce 2023 byla v celém domě instalována podlahové topení, kompletně zrekonstruovány koupelny, byla nainstalována extrémně kvalitní kuchyň od next125, v celém domě byl položen parket a v ložnici, galerii i vstupní části instalovány velmi kvalitní vestavné skříně na zakázku. V kuchyni a vstupní části byla vlita cementová podlaha "Pandomo". Střecha byla v roce 2004 kompletně znovu pokryta a opatřena dodatečnou tepelnou izolací.
Dům je k prohlídce pouze po domluvě a po doložení úvěrové způsobilosti či schválení financování, a je k dispozici od 01.06.2023.
Těšíme se na vaši zprávu e-mailem.
V okolí nemovitosti najdete


Prodej domuAn der Schanzenbrücke 14 Duisburg Huckingen Nordrhein-Westfalen 47259- 7+1
- 120 m²
- 400 m²
629 000 €
Stále hledáte to pravé?
Nastavte si hlídacího psa. Nabídky vybrané na míru dostanete souhrnně 1× denně e-mailem. S Premium profilem máte k ruce hlídačů rovnou 5 a když se něco objeví, informují vás obratem.




























