
Prodej domu 6+1 • 165 m² bez realitkyEssen Werden Nordrhein-Westfalen 45239
Essen Werden Nordrhein-Westfalen 45239MHD 1 minuta pěšky • Parkování • GarážVýjimečná nemovitost pro výjimečné lidi
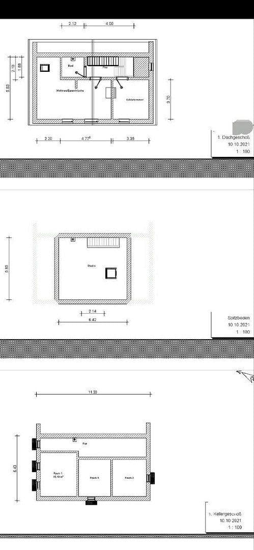
Historická budova z roku 1891 s jedinečným uspořádáním, kompletně zrenovována a modernizována:
Bytová plocha: 165 m²
Užitná plocha: cca 30 m² (střešní studio)
Pozemek: 820 m²
Pokoje: 6
Koupelny: 4 (z toho hlavní koupelna s dešťovou sprchou, vanou, dvěma umyvadly)
Přízemní samostatná bytová jednotka (ideální pro vícegenerační bydlení, hosty, pronájem nebo začlenění do hlavní obytné části), oddělená od hlavní části sádrokartonovou zdí, jejíž odstraněním lze obě části snadno propojit. V současnosti pronajato za 700,00 Euro studeného nájemného.
Připraveno k nastěhování – není nutná žádná rekonstrukce
Výjimečné vlastnosti:
• Historický šarm se setkává s moderní technikou
• Soukromí, bezpečnost a komfort na vysoké úrovni
• Zvenku neviditelný koncept prostoru a designu – vědomé zdrženlivé řešení
Velmi žádaná lokalita v Essen-Werden:
• Klidná poloha na svahu s výhledem
• Baldeneyské jezero dosažitelné pěšky
• Staré město Essen-Werden za pár minut pěšky
• Mateřské školy, základní školy i gymnázia v docházkové vzdálenosti
• Folkwangova univerzita umění / hudební škola také pěšky
• V bezprostřední blízkosti: Nemocnice Svatého Josefa, protestantská nemocnice Werden
• Veřejná doprava (S-Bahn, autobusy) dostupná pěšky
• Bohatá nabídka restaurací, obchodů, lékařů a lékáren v okolí
Optimální dopravní spojení:
– Dálnice A52 dosažitelná za pár minut
– cca 15 minut do veletržního centra Essen
– cca 25 minut do veletržního centra Düsseldorfu / mezinárodního letiště Düsseldorf (DUS)
– cca 20 minut do univerzitní kliniky Essen a dalších městských nemocnic
Okolní přírodní rezervace, pěší stezky, jachtařské a veslařské kluby, cyklostezky, tenisový klub přímo před domem
Vybavení (vnitřní):
• Vestavěná kuchyň
• Kompletně se sklepem
• Zařízené střešní studio s kabrio okny
• Klimatizace v horních ložnicích a ve střešním studiu
• Krbová kamna v obytné části
• Otevřený dispozice s odkrytými zdmi a konstrukčními trámy
• Optické připojení a datové kabely v každé místnosti
• Mediakanály vedené pod omítkou v obývacím pokoji a ložnicích
• Elektrické a programovatelné žaluzie
• Zvonek s video displejem a funkcí otevírání dveří
Rekonstrukce a modernizace:
• Podlahy, zdi, okna, stropy, schodiště, elektroinstalace, sanitární zařízení, radiátory, energetická opatření
Vybavení (venkovní / technika):
• Fotovoltaický systém se zásobníkem elektřiny a nouzovou funkcí
• Elektricky zajištěný ocelový rámový portál pro vjezd
• Vnitřní dvůr s kamerovým dohledem
• 2 parkovací místa ve vnitřním dvoře
• Nabíjecí stanice (wallbox) pro elektromobily
• Garáž + další skladovací prostor
• Na jih orientovaná zahrada se sluneční terasou
• Zahradní domek + skladiště na nářadí
V okolí nemovitosti najdete



Prodej domuMülheim an der Ruhr Mülheim an der Ruhr Nordrhein-Westfalen 45473- 6+1
- 149 m²
- 398 m²
678 000 €
Stále hledáte to pravé?
Nastavte si hlídacího psa. Nabídky vybrané na míru dostanete souhrnně 1× denně e-mailem. S Premium profilem máte k ruce hlídačů rovnou 5 a když se něco objeví, informují vás obratem.










































