
Prodej bytu 2+kk • 65 m² bez realitkyTorstraße 220b Berlin Mitte Berlin 10115
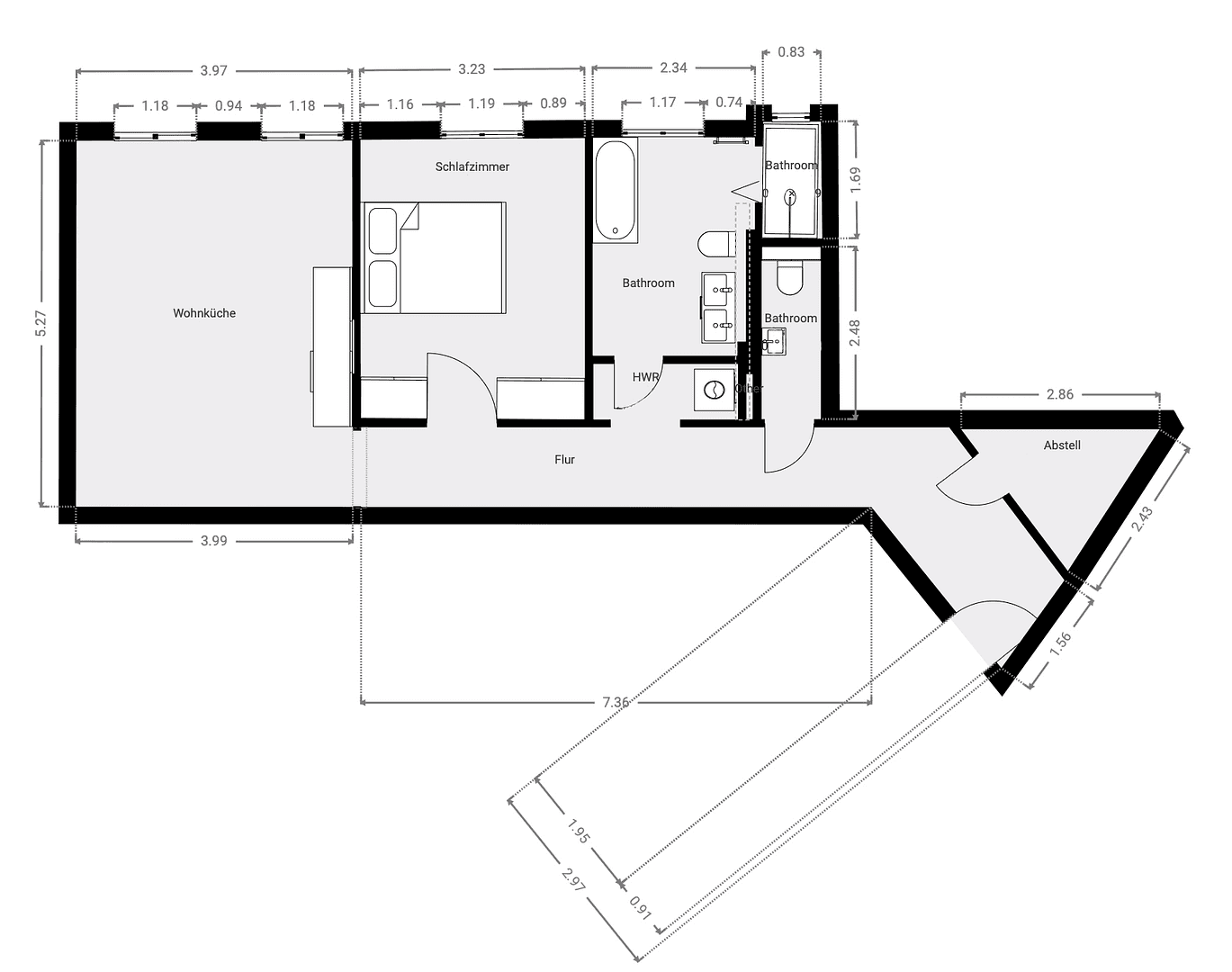
Tato výjimečně kvalitně zrekonstruovaná starší bytová jednotka se nachází ve 2. patře památkově chráněného domu z počátku zakladatelské éry z roku 1900 v Torstraße v Berlín-Mitte. Byt ihned zaujme svými impozantními výškami stropů okolo 360 cm a zrestaurovaným historickým sádrokartonovým zdobením, které dodává objektu zvláštní prostrannost a eleganci. Na přibližné ploše 65 m² byl realizován moderní koncept bydlení, jenž kombinuje kouzlo staré budovy s moderním designem. Nově položená parketa v rybí kost z dubu zajišťuje teplou a kvalitní atmosféru. Z chodby vedou všechny místnosti uspořádané do dokonalé struktury: nejprve se nachází praktická zadní místnost, poté stylová toaleta pro hosty s designovou tapetou. Následuje technická místnost s integrovaným připojením pro pračku a dostatkem úložného prostoru. Velká koupelna je absolutním vrcholem bytu. Ručně vyráběné cementové dlaždice, vysoce kvalitní keramické obklady, umyvadlo od Duravit, černé armatury od Steinberg a vestavěná sprchová zóna pod zrestaurovaným obloukem z cihlového zdiva vytvářejí exkluzivní, hotelový pocit. Koupelně se zde nachází vana i prostorná sprchová zóna, vše v harmonickém celkovém designu. Klidná ložnice díky vyšším oknům a sádrokartonovému stropu nabízí příjemné útočiště. Na konci chodby se otevírá světlý obývací a kuchyňský prostor, který svými rozměry a pohledem na nádvoří zaujme. Ukázaná kuchyně je součástí profesionálního home-stagingu a slouží k lepší představě prostoru; všechna připojení pro individuální kuchyňské řešení jsou připravena. Také veškerý nábytek a doplňky zobrazené na fotografiích nejsou součástí kupní ceny, ale na přání je lze zakoupit zvlášť. Nová plynová jednotková topení, vysoce kvalitní značkové produkty a promyšlený celkový koncept dokončují tuto výjimečnou nemovitost.
Tento byt je ideální volbou pro kupce, kteří hledají design, vysoce kvalitní rekonstrukci a autentický půvab starších budov v srdci Berlína.
Byt se nachází v bezkonkurenční lokalitě Berlín-Mitte, přímo na slavné Torstraße – jednom z nejživějších a nejžádanějších míst hlavního města. Téměř žádná ulice nevyjadřuje moderní, kreativní a mezinárodní Berlín tak jako Torstraße: zde se setkávají scéna, gastronomie, design, architektura a městský životní styl.
V přímém okolí se nachází trendy kavárny, vysoce kvalitní restaurace, bary, konceptuální obchody, galerie a menší butiky – vše, co dnes definuje Berlín-Mitte. Okolí je charakterizováno historickou starobylou zástavbou, současnou architekturou a jedinečnou kulturní rozmanitostí. Dopravní spojení je vynikající: několik tramvajových a metropolitních linek (včetně U8, U2, U6 a několika tramvajových linek) je dosažitelných za pár minut chůze. Přes Alexanderplatz, Rosenthaler Platz či Hackeschen Markt se dostanete ke všem hlavním dopravním uzlům města během několika minut. Zároveň klidné boční ulice, zeleni oplývající dvory a četné malé parky v okolí nabízejí příjemná místa úniku od ruchu městského života. Torstraße patří k těm ulicím, které za poslední roky zaznamenaly obrovské zhodnocení a dnes jsou považovány za prémiovou lokalitu pro kupované byty – jak pro vlastní bydlení, tak i pro investory. Stručně řečeno: jedna z nejžádanějších, nejdynamičtějších a nejstabilnějších lokalit Berlína – městská, autentická, centrální a plná charakteru.
• Kompletní rekonstrukce 2025 – prvotní nastěhování po rekonstrukci
• Impozantní výška stropu cca 360 cm se zrestaurovanými sádrokartonovými ozdobnými prvky
• Nově položená parketa z dubu v rybí kost (PARAT, přírodní olej/vosk)
• Vysoce kvalitní nová plynová jednotková topení (novinka 2025)
• Památkově chráněný domovní celek zakladatelské doby z roku 1890 (ochrana celého komplexu)
• Prostorná designová koupelna s:
– ručně vyráběnými cementovými dlaždicemi
– nástěnnými dlaždicemi „Lume Bone Lux“
– umyvadlem Duravit Qatego
– černými armaturami Steinberg
– vanou a prostornou sprchou
– vestavěnou sprchovou zónou pod historickým cihlovým obloukem
• Samostatná hostinská toaleta s vysoce kvalitní designovou tapetou od Hooked on Walls
• Technická místnost (HWR) s připojením pro pračku a úložným prostorem
• Moderní nové elektrické instalace a nové světelné body
• Vysoce kvalitní dřevěné dveře s černými kováními
• Praktická zadní místnost přímo u vstupu
• Otevřený obývací a kuchyňský prostor směřující k nádvoří
• Ukázaná kuchyň je v rámci home-stagingu – připojení pro vestavěnou kuchyni jsou připravena
• Veškerý nábytek, lampy a dekorace nejsou součástí kupní ceny, lze je však na přání zakoupit zvlášť
• Klidná ložnice s ozdobným stropem, vysokými okny a elegantní atmosférou
• K dispozici je sklepní místnost
• Cyklostání vevnitřním dvoře
• Velmi žádaná lokalita na slavné Torstraße – přímo v srdci Berlín-Mitte
Zaujala vás tato nabídka?
Budeme se těšit na váš zájem. Prosím, využijte kontaktní formulář nebo nám přímo zavolejte, pokud si přejete další informace nebo domluvit prohlídku.
Tato nabídka je poskytována přímo vlastníkem a je bez provize.
Veškeré informace byly sestaveny podle nejlepších dostupných znalostí. Nicméně nemůžeme zaručit jejich úplnost, správnost a aktuálnost.
V okolí nemovitosti najdete

Prodej bytuColbestrasse 22 Berlin Friedrichshain Friedrichshain Berlin 10247- 2+kk
- 86 m²
605 000 € + 350 €



Stále hledáte to pravé?
Nastavte si hlídacího psa. Nabídky vybrané na míru dostanete souhrnně 1× denně e-mailem. S Premium profilem máte k ruce hlídačů rovnou 5 a když se něco objeví, informují vás obratem.

















