
Prodej domu 5+1 • 140 m² bez realitkyHöhenkirchen-Siegertsbrunn Siegertsbrunn Bayern 85635
Wunderschöne, sehr helle Doppelhaushälfte mit sehr hochwertiger Austattung, 2 West-Terrassen mit großem Garten.
____________________________________________
Úžasně krásná, velmi světlá dvojdomek s velmi kvalitním vybavením, 2 západní terasy s rozsáhlou zahradou.
Wohnfläche: 140qm
Obytná plocha: 140 m²
Nutzfläche ( UG): 64 qm
Užitná plocha (suterén): 64 m²
Im DG zusätzlich: Raum unterhalb der Dachschräge ca. 33 qm
V nadstřeší navíc: prostor pod šikmou střechou cca 33 m²
Gesamt: 237 qm
Celkem: 237 m²
Grundstücksfläche: 365 qm
Výměra pozemku: 365 m²
Gemeinschaftsfläche: (Genossenschaftsanteile wie Zufahrtswege, Rasenflächen usw.): 90 qm
Společná plocha (podíly družstva – např. příjezdové cesty, trávníky atd.): 90 m²
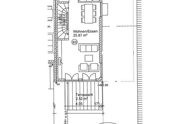
EG: Wohnzimmer mit Kamin, Küche mit EBK, Esszimmer, 2 West-Terrassen, 1 Gäste-WC
Přízemí: obývací pokoj s krbem, kuchyň s vestavěnou kuchyňskou linkou, jídelna, 2 západní terasy, 1 toaleta pro hosty
OG: 3 Schlafzimmer und ein großes Badezimmer mit Dusche und Badewanne sowie 2 Waschbecken
Patro: 3 ložnice a prostorná koupelna se sprchou a vanou, navíc 2 umyvadla
DG: 1 komplett ausgebautes Studio, Möglichkeit für ein 2. Bad (Alle Anschlüsse bereits verlegt)
Nadstřeší: 1 kompletně zrekonstruované studio, možnost vytvoření druhé koupelny (všechny přípojky již jsou instalovány)
UG: Heizraum, Hobbyraum (derzeit als Heimkino genutzt), Wirtschaftsraum, Werkstattraum, Vorratsraum, Pellet-Bunker
Suterén: topná místnost, hobby místnost (aktuálně využívaná jako domácí kino), technická místnost, dílna, sklad, pelletový bunkr
Garten + 2 Terrassen, 1 Garage + 1 Stellplatz davor
Zahrada + 2 terasy, 1 garáž + 1 parkovací místo před domem
Die Gemeinde Höhenkirchen-Siegertsbrunn liegt ca. 17 km südöstlich von München
Obec Höhenkirchen-Siegertsbrunn se nachází přibližně 17 km jihovýchodně od Mnichova
Ursprünglich waren beide Ortsteile eigenständig, bis sie 1978 vereint wurden.
Původně byly obě části samostatné, dokud nebyly v roce 1978 sloučeny.
Ob mit dem Auto oder den öffentlichen Verkehrsmitteln, man erreicht München in etwa einer halben Stunde gleich schnell. Die S-Bahn verkehrt hier im 20-Minuten-Takt. Des Weiteren stehen im Ort zahlreiche Busverbindungen zu diversen Schulen oder in benachbarte Gemeinden zur Verfügung.
Ať už autem, nebo veřejnou dopravou, Mnichov se dostanete přibližně za půl hodiny – obě varianty jsou stejně rychlé. S-Bahn jezdí každých 20 minut. Dále je zde mnoho autobusových linek spojujících obec s řadou škol a sousedními obcemi.
Die Autobahn A8, und damit weiterführende Autobahnen sind in wenigen Minuten erreichbar.
Dálnice A8 a další dálniční sítě jsou dostupné během několika minut.
Geschäfte des täglichen Bedarfs wie z. B. EDEKA und Penny, Ärzte, Banken, Post, Restaurants und Cafés sind im Ort ausreichend vorhanden. Größere Einkäufe kann man in den benachbarten Orten Brunnthal oder Ottobrunn erledigen. Hier sind neben Ikea, Hagebaumarkt, Lidl, Aldi und Metro noch viele weitere Geschäfte unterschiedlichster Branchen vertreten.
Obchody pro běžné každodenní potřeby, jako například EDEKA či Penny, lékaři, banky, pošta, restaurace a kavárny, jsou v obci dostatečné. Větší nákupy lze uskutečnit v blízkých obcích Brunnthal nebo Ottobrunn. Tam kromě Ikea, Hagebaumarkt, Lidl, Aldi a Metro najdete i mnoho dalších obchodů z různých odvětví.
Familien mit Kindern schätzen vor allem das gute Angebot an Schulen, Kindergärten, Krippen und Vereinen. Im Ort kann eine Grundschule, eine Grund- und Mittelschule und ein Gymnasium besucht werden. Eine Realschule befindet sich im nahegelegenen Neubiberg sowie geplant ab 2027 im Nachbarort Hohenbrunn.
Rodiny s dětmi velmi oceňují kvalitní nabídku škol, mateřských škol, jeslí a sportovních či volnočasových spolků. V obci lze navštěvovat základní školu, nižší střední školu a gymnázium. Střední průmyslová škola se nachází v nedalekém Neubibergu a od roku 2027 se plánuje i ve sousedním Hohenbrunnu.
Infrastruktur:
Apotheke, Lebensmittel-Discount, Allgemeinmediziner, Kindergarten, Grundschule, Realschule, Gymnasium, Gesamtschule, Öffentliche Verkehrsmittel
Infrastruktura: lékárna, diskont potravin, praktický lékař, mateřská škola, základní škola, střední škola, gymnázium, všeobecná škola, veřejná doprava
Das Haus wurde 2005 gebaut. 2013 wurde ein Anbau geplant und umgesetzt, in dem sich heute ein wunderschönes, sonniges Esszimmer mit eigener West-Terrasse befindet. Im Rahmen dieses Bau´s wurde im gesamten Wohnbereich im EG und OG hochwertiger Ahornparkett und im Eingangsbereich und in der Küche Fliesen verlegt.
Dům byl postaven v roce 2005. V roce 2013 byla naplánována a realizována přístavba, ve které se dnes nachází krásná, slunná jídelna s vlastní západní terasou. V rámci této stavby byla v celém obytném prostoru v přízemí a patře položena kvalitní javorová parketa a ve vstupní části a kuchyni dlažba.
Ebenfalls 2013 wurde das UG ausgebaut und angeschlossen. 2022 wurde das DG ausgebaut.
V roce 2013 byl také suterén dokončen a připojen. Rok 2022 byl věnován dokončení nadstřeší.
Die Heizung ist eine moderne SOLVIS Pelletheizung.
Topení je zajištěno moderním pelletovým kotlem SOLVIS.
Das Haus kann nach Vereinbarung noch 2026 ohne weitere Baumaßnahmen bezogen werden. Es gibt keinen Sanierungsstau oder andere Arbeiten, die ergriffen werden müssten.
Dům může být podle dohody nastěhován již v roce 2026 bez nutnosti dalších stavebních úprav. Neexistují žádné opožděné rekonstrukční práce ani jiné úkony, které by bylo třeba realizovat.
Das Haus wird für den Käufer provisionsfrei angeboten. Wir freuen uns auf Ihre Anfragen.
Dům je nabízen kupujícímu bez provize. Těšíme se na vaše dotazy.
Gerne schicken wir Ihnen ein Exposé mit ausführlichen Plänen/ Grundrissen und der Adresse zu.
Rádi vám zašleme expozici s podrobnými plány/půdorysy a adresou.
Bitte prüfen Sie regelmäßig Ihren SPAM-Ordner, wenn Sie uns eine Anfrage geschickt haben, vielen Dank.
Prosím pravidelně kontrolujte svůj spamový adresář, pokud jste nám poslali dotaz. Děkujeme.





































