
Prodej domu • 165 m² bez realitky, Bádensko-Württembersko
, Bádensko-WürttemberskoMHD 1 minuta pěšky • Parkování • GarážSamostatně stojící rodinný dům v klidné poloze na jižním svahu, velmi energeticky úsporný, protože kompletně postavený z materiálu Ytong a s instalací solárního ohřevu teplé vody s velkým zásobníkem tepla. Roční spotřeba energie cca 1200 l. Budova byla modernizována a rozšiřována v několika fázích – v roce 1965 byl postaven východní přístavek (garáž, ložnice, dětský pokoj), v roce 1978 byl přistavěn západní křídlo s terasou a v roce 1990 byla objevena velká „teplá“ zimní zahrada s podlahovým topením.
Skvělá poloha na jižním svahu ve střední části Remstalu s panoramatickým výhledem směrem k Schorndorfu, Schurwaldu a dolnímu Remstalu. Dům se nachází na horní ulici, za kterou přímo navazuje zeleň!
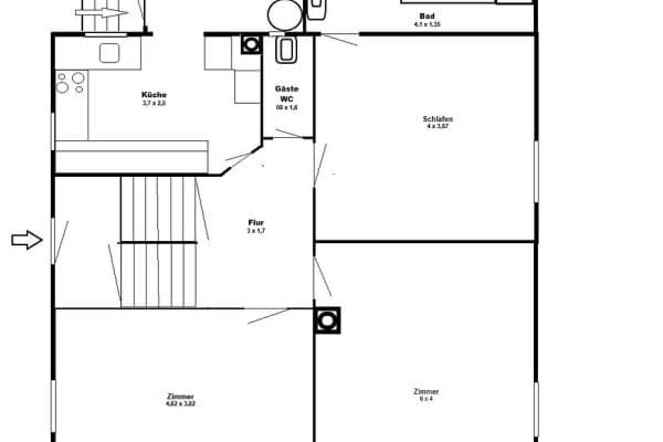
Viz obrázky
Viz obrázky
K dispozici je velká dešťová cisterna. Zahrada s různými ovocnými stromy (jabloně, třešně, švestky, kiwi, révou). V suterénu se nachází uzavřený vnitřní bazén se sprchou a toaletou, ideální pro umístění sauny.
Parametry nemovitosti
| Stáří | Nad 50 let |
|---|---|
| Číslo inzerátu | 1012179 |
| Plocha pozemku | 718 m² |
| Cena za jednotku | 3 630,30 € / m2 |
| Stav | Po rekonstrukci |
|---|---|
| Užitná plocha | 165 m² |
| Celkem podlaží | 3 |
Co tato nemovitost nabízí?
| Balkón | |
| Garáž | |
| Parkování | |
| Terasa |
| Sklep | |
| MHD 1 minuta pěšky |






































