
Prodej domu • 183 m² bez realitky, Bádensko-Württembersko
Samostatně stojící rodinný dům / vícegenerační dům v blízkosti S-Bahn
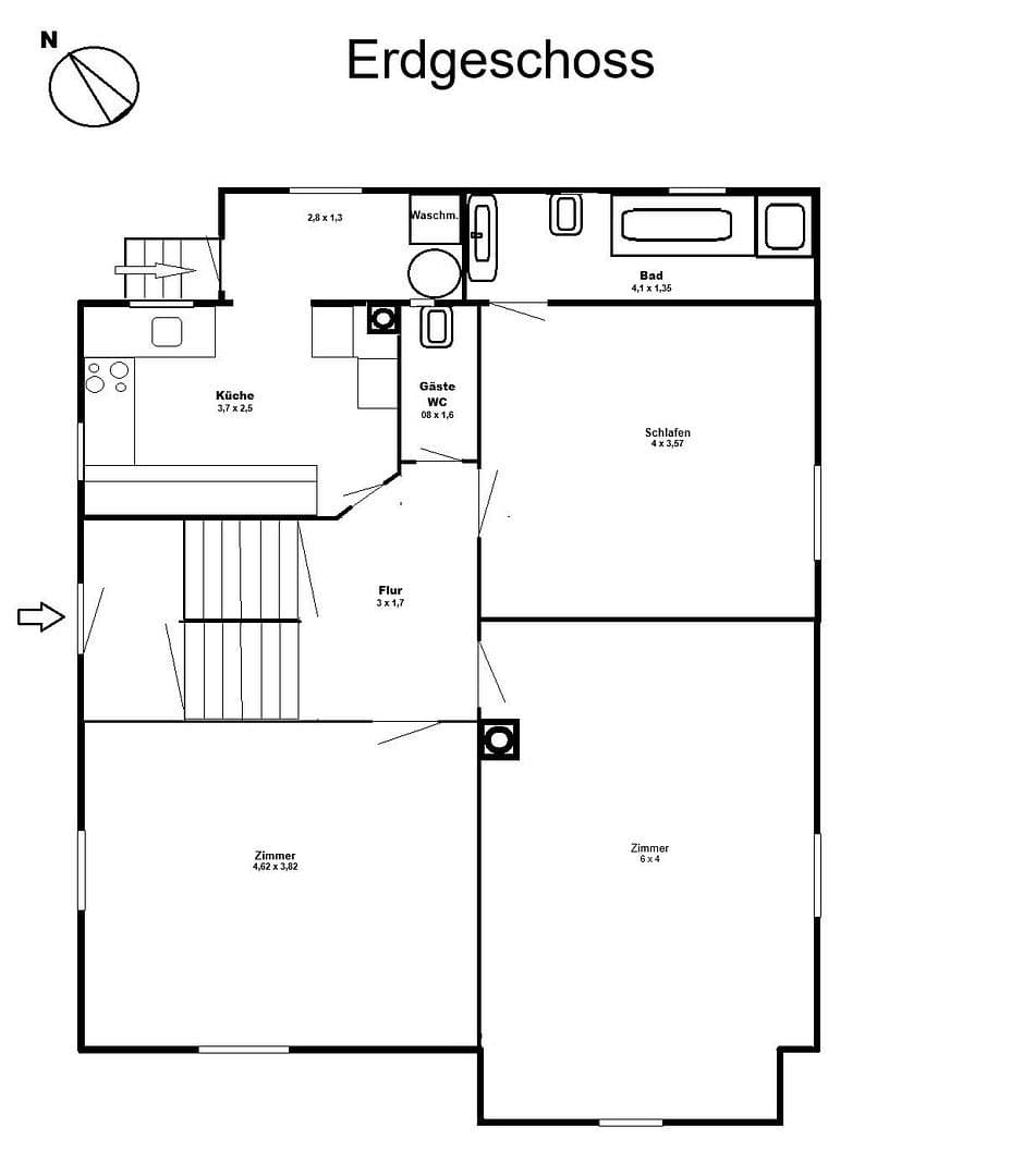
Dům se rozprostírá na 3 obytných úrovních a disponuje celkem 8 pokoji, hostinskou toaletou, 2 koupelnami a 2 novými vestavěnými kuchyněmi (2019), stejně jako malou zahrádkou se zděným zahradním domkem a dvěma velkými sklepními místnostmi.
V přízemí se nachází 3-pokojový byt s kuchyní, světlou koupelnou s vanou a sprchou, hostinskou toaletou a prádelnou s plynovým kondenzačním kotlem (2016).
V prvním patře se nacházejí další tři pokoje, druhá kuchyň, nová světlá koupelna se sprchou (2019) a vstup na podkroví se dvěma dalšími pokoji.
Dům je v současné době uvolňován.
Dům byl průběžně modernizován a renovován:
2016: nový připojovací bod pro plyn, vodu a elektřinu, nový plynový kondenzační kotel, elektroinstalace v patře
2019: nová koupelna se sprchou v patře a nové vestavěné kuchyně v přízemí a patře
2022: nové bytové dveře v přízemí, nový laminátový podlahový kryt v podkroví
Tento univerzálně využitelný dům se nachází v dopravně výhodné lokalitě, nedaleko stanice S-Bahn Oberesslingen, a je ideální pro větší rodinu nebo jako vícegenerační dům. Stanice S-Bahn, autobus, veškeré obchody, lékaři, mateřská škola a školy jsou v docházkové vzdálenosti.
Parametry nemovitosti
| Stáří | Nad 50 let |
|---|---|
| Číslo inzerátu | 1014186 |
| Užitná plocha | 183 m² |
| Celkem podlaží | 3 |
| Stav | Po rekonstrukci |
|---|---|
| PENB | C - Úsporná |
| Plocha pozemku | 300 m² |
| Cena za jednotku | 3 437,16 € / m2 |
Co tato nemovitost nabízí?
| Sklep | |
| MHD 2 minuty pěšky |




















