
Prodej bytu 3+1 • 96 m² bez realitkyReinbeker Redder 57a Hamburg Lohbrügge Hamburg 21031
Na adrese Reinbeker Redder 55, 55a, 57, 57a Hamburg, v katastrálním území Boberg, vzniká nová obytná čtvrť „Alte Gärtnerei“ se celkem 71 obytnými jednotkami rozdělenými do čtyř domů a s podzemní garáží s 64 parkovacími místy.
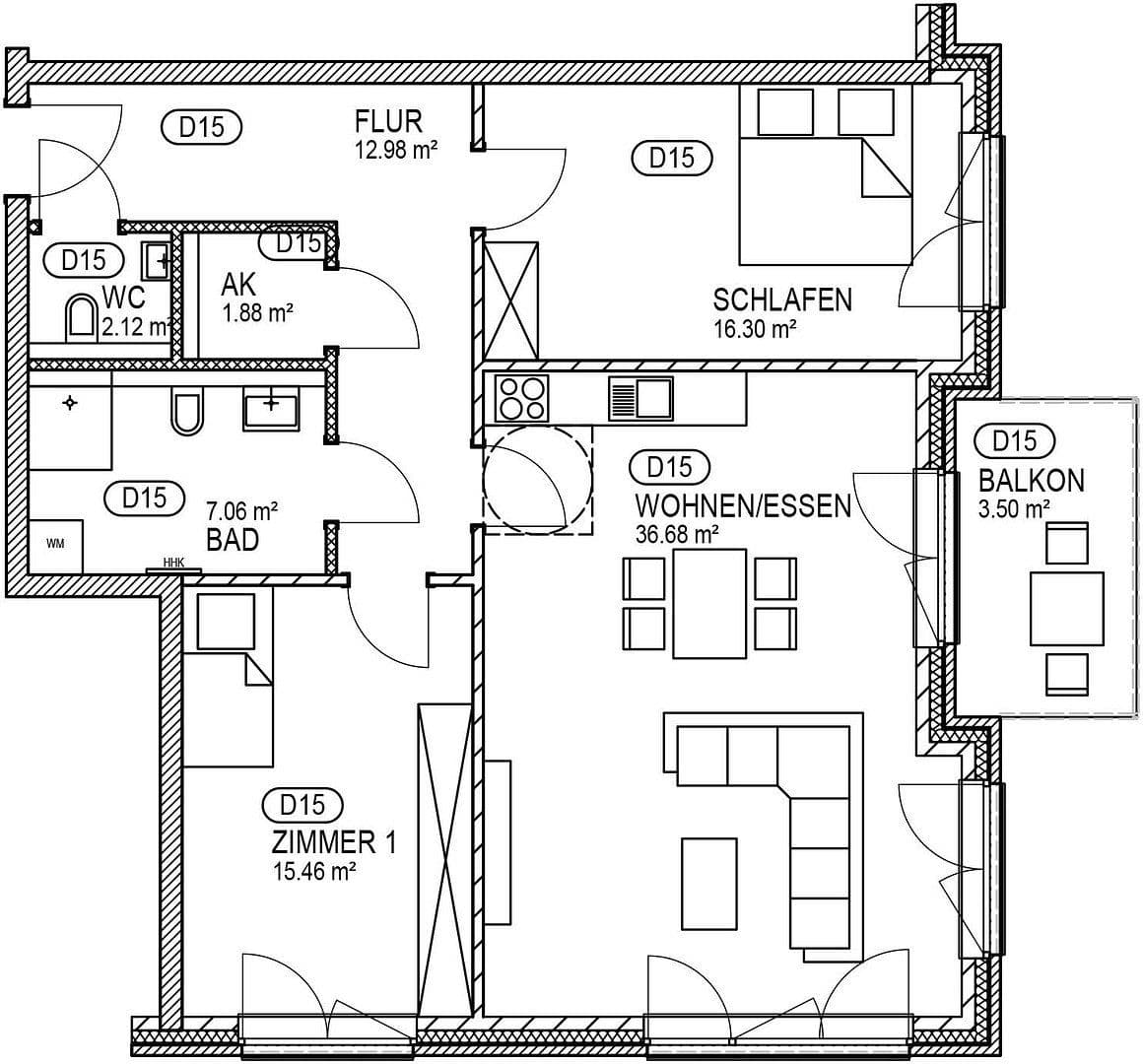
Nabízený 3-pokojový byt D15 v obytné čtvrti „Alte Gärtnerei“ se nachází v prvním nadzemním podlaží domu D. Srdcem bytu je prostorný obývací a jídelní kout o rozloze cca 36,7 m², který poskytuje dostatek místa pro příjemné večery, společenská setkání a individuální možnosti úprav. Odtud máte přímý vstup na sluncem zalitý balkon o rozloze cca 7 m², který zve k odpočinku na čerstvém vzduchu. Při navrhování obytných prostor bylo dbáno na mnoho detailů, které zvyšují komfort bydlení.
Po vstupu do bytu se ocitnete v přívětivém halovém prostoru, odkud je možné vstoupit do všech místností. V předsíni napravo se nachází hostinská toaleta, dále pak umístěný úložný prostor. Poté na vás čeká koupelna se sprchou v bezbariérovém provedení. Z haly vychází ještě jedna další místnost, kterou lze flexibilně využít – ideálně jako pracovnu, pokoj pro hosty nebo dětský pokoj. Celý byt doplňuje klidná ložnice, příjemné útočiště pro odpočinek.
Kompaktní, promyšlený a s veškerým vybavením pro vaše pohodlí.
Prodej probíhá bez provize přímo od developera a byt je již nyní k prohlédnutí.
Předpokládané dokončení čtvrti je v červnu 2026.
Včleněný mezi zahrady spojené s malými zahrádkářskými spolky a řadou rodinných a vícegeneračních domů se prezentuje čtvrť „Alte Gärtnerei“. Lokalita Reinbeker Redder 57a v Hamburku, region Boberg, je nejen centrálně situovaná, ale i obyvatelná.
V pěší vzdálenosti lze prozkoumat půvabné okolí nedaleko rekreační oblasti Boberger Dünen a Boberger Ausgleichswiesen.
Na hranici Hamburku se Šlesvicko-holštýnskem vaši budoucí nájemci objeví vedle centrální polohy – mezi hamburgerkým centrem a Hamburg Bergedorf – vysokou míru volnočasových aktivit a zážitkového faktoru.
Krátké cesty do přírody nebo k volnočasovým aktivitám, jako je například golf, fitness, tenis nebo exkluzivní SPA zařízení Vabali, přidávají této lokalitě velmi vysokou hodnotu pro volnočasové vyžití.
Veřejná dětská hřiště, procházky v přírodě a v pěší dostupnosti umístěný místní obchod dokončují koncept lokality „Alte Gärtnerei“ a činí ji mimořádně atraktivní pro všechny generace.
K bytu náleží úložný prostor o rozloze cca 7,7 m² v suterénu.
Vybavení:
- Energeticky efektivní dům dle bývalé normy KfW 55
- Výtah z podzemní garáže až k obytným podlažím
- Podlahové vytápění
- Venkovní rolety u všech oken a terasových dveří
- Stěny s malířskou fólií a bílým nátěrem
- Koupelny: obklady, závěsné WC, ručníkovač, bezprůběhové sprchové koutu
- Designová vinylová podlaha v dřevěné imitaci v obytných a ložnicových místnostech
- Vytápění dodané teplou energií prostřednictvím centrálního tepla
Další vybavení získáte při zaslání naší stavební dokumentace.
Speciální služby:
- Kuchyně (vlastní realizace) – rádi vám zprostředkujeme kontakt na našeho dlouholetého dodavatele kuchyňského nábytku.
- Parkovací stání v podzemní garáži lze dokoupit od 35.000,-€.
Všechny vizualizace, návrhy vybavení, návrhy zařízení, grafické podklady a rozměry slouží pouze k ilustraci a mají pouze význak ilustrační, nepředstavují právní podklad.
Stručné informace:
Spolková země: Hamburg, čtvrť: Hamburg-Lohbrügge – katastr Boberg, čtvrť: Alte Gärtnerei – 71 obytných jednotek, budova: Dům B – 15 obytných jednotek, 1. cyklistická místnost – 65 parkovacích míst, 2. cyklistická místnost – 113 parkovacích míst, podzemní garáž 64 – parkovací místa pro osobní automobily.
Vzdálenosti:
Mateřská škola: 1,2 km, základní škola: 1,6 km, střední škola: 2,8 km, gymnázium: 1,7 km, BG Klinikum: 1,7 km, Klinik Bergedorf: 3,3 km, Univerzita Hamburg Bergedorf: 4,8 km, centrum Bergedorf: 4,5 km, centrum Reinbeku: 5,4 km, hamburské centrum: 14,5 km, příjezd na A1 Hannover/Lübeck: 3,2 km, příjezd na A24 Berlín: 8,2 km, obchodní služby: 600 m, veřejné hřiště: 450 m.
Stavební investorem je developerská společnost Reinbeker Redder 55 mbH.
Realizaci zajišťuje společnost np Projektentwicklung GmbH z Möllnu, která má za sebou více než 25 let zkušeností se stavbou vícepodlažních obytných domů.
Kontaktní osobou pro dotazy k tomuto propagačnímu materiálu je pan Robert Wolff ze společnosti np Projektentwicklung GmbH z Möllnu.
Impressum
Informace dle § 5 TMG:
np Projektentwicklung GmbH
Hindenburgstraße 15e
23879 Mölln
Zastoupená:
Panem Marcus Pape – jednatelem np Projektentwicklung GmbH
Kontakt:
Telefon: +49 (0) 4542 99 59 10
Fax: +49 (0) 4542 99 59 199
E-mail: info@np-projektentwicklung.de
Zápis do rejstříku:
Zapsáno v obchodním rejstříku.
Okresní soud Lübeck
Registrační číslo: HRB 18431 HL



























