
Prodej bytu 3+1 • 83 m² bez realitkyRegattastr. 35 Berlin Grünau Berlin 12527
Byt:
Nádherný 3-pokojový byt k vlastnímu užívání či jako investiční nemovitost ve zbrus nové developerské stavbě „52° Nord – Bydlení u vody v Berlín-Grünau“.
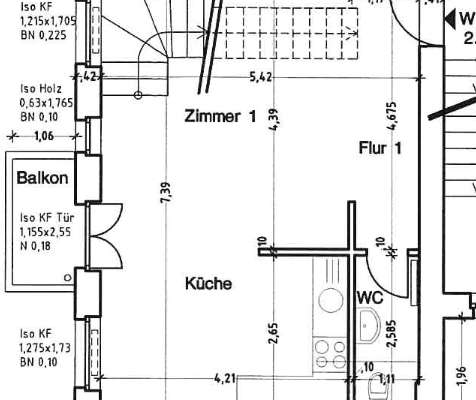
Tento nádherný, téměř nový byt ve 2. patře okouzlí nejen fantastickým výhledem na vodu, ale také prostorným a funkčním dispozicím, která zahrnuje částečně otevřený kuchyňsko-jídelní kout, přilehlou komoru a skladovací místnost u kuchyně, další úložný prostor pro pračku a sušičku, dvě koupelny (sprchovou i vanovou) a úžasnou lodžii s výhledem do dálky a na vodu.
Projekt:
Novostavba „52º Nord – Bydlení u vody v Berlín-Grünau“ je jedinečná.
Spojuje řadu unikátních prvků, za což získala opakovaně národní i mezinárodní ocenění:
• Rozmanitý architektonický jazyk renomovaných architektů z Německa i zahraničí
• Udržitelná energetická zásoba díky vlastní energetické stanici se třemi malými kogeneračními jednotkami a podzemní sítí lokálního tepla
• Čtvrťový vnitrozemský rybník, který je napájen dešťovou vodou z okolních budov a volných ploch a biologicky čištěn vytvořenými pobřežními biotopy (koncept „sponge city“ – houbařské město)
• Příjemné mikroklima zajištěné vnitrozemským rybníkem o rozloze 6 000 m², který tvoří srdce atraktivní čtvrti
• Infrastruktura přímo v rezidenční čtvrti: ekologická mateřská škola, dvě kavárny, zdravotní dům, nabíjecí stanice pro elektromobily, 600 m dlouhá pobřežní stezka a další vybavení
• Jedinečná kombinace geografických zvláštností:
– Poloha v nejzelenější a nejvodnatější části Berlína
– Umístění u Dahmy, která se v Köpenick vlévá do Spree
– Blízkost a trajektové spojení s Müggelbergem, nejvyšším přírodním výčnělkem Berlína
– Přímá poloha u 6 000 m² velkého vnitrozemského rybníka
– Tramvajová zastávka v bezprostřední blízkosti
Nabízený byt WE 17 se nachází v objektu zvaném Seefeld 1, který je složen ze dvou stavebních bloků „Haus am Quartiersplatz“ a „Haus am Wasser“. Byl dokončen v roce 2016 a postaven dle předpisů EnEV 2009. K bytu kromě dvou úložných místností uvnitř bytu patří také promyšleně uspořádaný sklep v suterénu objektu. Volitelně je k dispozici také pěkné parkovací stání pro automobil v přidružené podzemní garáži.
Novostavba „52º Nord – Bydlení u vody v Berlín-Grünau“ se nachází v nejzelenějším a nejvodnatějším okrese Berlína, Treptow-Köpenick. Idyllicky situovaný u přítoku Spree, Dahme, si Grünau své jméno získal dle popisu vesnice „Grüne Aue“ sahajícího až do roku 1749.
Již v roce 1866 zřídila železniční společnost Berlin-Görlitzer Eisenbahn v Grünau zastávku. Současně otevřela berlínská parní lodní společnost (Berliner Dampfschifffahrts-Aktiengesellschaft) mol na Dahmě. Tak se Grünau vyvinulo v oblíbené místo pro výlety, kam se o letních víkendech sjížděly tisíce obyvatel Berlína hledajících odpočinek.
Do tohoto půvabně situovaného místa se po roce 1875 začala stěhovat řada finančně silné buržoazie, která zde budovala první tovární budovy, honosné vily a prosperující hostince.
Nejpozději s konáním závodů v veslování na Dahmě dne 27. června 1880 bylo toto území objeveno jako centrum vodních sportů. Kolem roku 1900 byla postavena dodnes fungující regatová trať s krytou tribúnou a pavilonem pro německého císaře, a v roce 1936 se zde konaly olympijské závody ve veslování a kanoistice.
Za počátku 20. století probíhalo rychlé rozšíření infrastruktury v Grünau a jeho okolí. V roce 1905 vznikla ve spolupráci s Adlershof a Altglienicke první vodárna, a o tři roky později byla rozšířena síť plynu a elektřiny. Další průmyslové výrobní a servisní podniky (například největší prádelna v Německu) se usadily na břehu Dahmy. S industrializací vzniklo mnoho dalších komfortních budov v idylické oblasti Grünau, čímž se upevnila pověst Grünau jako předměstí vil v jihovýchodní části hlavního města. Již Theodor Fontane ve svých putováních po Mark Brandenburg popisoval idylickou polohu Grünau.
Dnes je Grünau nejen atraktivním místem k bydlení přímo u břehu Dahmy, ale díky blízkosti a vynikající dopravní dostupnosti k novému hlavnímu letišti BER, přítomnosti několika mezinárodních korporací (včetně TESLA, AMAZON, MERCEDES BENZ, ALLIANZ), novému ústředí berlínské Sparkasse v nedalekém Johannisthalu a největšímu evropskému ekonomicko-vědeckému areálu WISTA v sousedním Adlershof se stává místem s vysokým růstovým a hodnotovým potenciálem.
Nabízený 3-pokojový byt je vysoce kvalitně postaven a vybaven. Výhradně renomované značky a známé designové linie svědčí o vysokém standardu nové výstavby a zaručují kvalitu, pohodu, dlouhověkost a trvalou hodnotu. Navíc vlastníci vybavili byt exkluzivní vestavěnou kuchyní značky SIEMATIC, která reprezentativně obklopuje kuchyňsko-jídelní kout a vyhovuje všem funkčním potřebám.
V rámci komplexu „Haus am Quartiersplatz“ a „Haus am Wasser“ vzniklo 64 bytů o rozloze přibližně 44 m² až 110 m². Nabízený byt WE 17 se nachází ve 2. patře „Haus am Quartiersplatz“, který sousedí přímo s čtvrťovým vnitrozemským rybníkem. Zatímco tato nádherná vodní plocha se svými okolními pobřežními biotopy primárně zvyšuje kvalitu volného času, stačí jen asi 100 m do Dahmy – přítoku řeky Spree, který zve ke koupání a rozmanitým vodním sportům. Mnoho obyvatel se tam před začátkem práce vydává na plavání nebo si po pracovním dni vezme paddleboard a projet se po krásné Dahmě s nejčistší vodou.
Prostorné stropy až do výšky 2,75 m a velká okna umožňují, aby všechny místnosti byly zalité slunečním světlem. Přilehlá lodžie se v létě proměňuje v čtvrtý pokoj a potěší srdce milovníků slunce a květin. Dva praktické úložné a technické prostory spolu se sklepem v suterénu doplňují vysoký standard bydlení.
K bytu dále volitelně náleží parkovací stání pro osobní automobil v podzemní garáži a řada kolových stání v rámci společného vlastnictví.
S takovýmto standardem kvality není divu, že je byt vybaven také dalšími komfortními prvky, například podlahovým vytápěním s individuální regulací v jednotlivých místnostech, parketovou podlahou, žaluzie, video-vzájemným interkomem či vstupními dveřmi do bytu splňujícími bezpečnostní standard WK-2.
Vysoce kvalitní vestavěná kuchyně značky SIEMATIC byla instalována před nastěhováním a je již zahrnuta v kupní ceně.
IMPRESSUM
Podle § 5 TMG
Bernd Mervelskemper
Teichmummelring 55
12527 Berlín
Mobil: +49 / 177 / 33 88 550
E-mail: Bernd.Mervelskemper@outlook.com
Člen IVD | Německé sdružení nemovitostí | Spolek realitních poradců, makléřů, správců a znalých osob e.V. | Region Berlín-Braniborsko e.V.
Povolení podle § 34c obchodního řádu: uděleno městem Kolín | Úřad pro veřejný pořádek | Uděleno dne 29. ledna 2013.
Odpovědný okresní úřad: Okresní úřad Treptow-Köpenick | Alt-Köpenick 21 | 12555 Berlín-Köpenick






















