
Pronájem bytu Garsoniéra • 14 m² bez realitkyPod Kesnerkou, Praha - Smíchov
Máte o nabídku zájem?
Ušetřete 11 000 Kč na provizi a komunikujte se všemi majiteli.
For English description please feel free to contact me.
Nabízím k pronájmu malý ale světlý, zrenovovaný byt v prvním patře v samostatně stojícím rodinném domě, kde je celkem 8 nájemných bytů.
!!!Byt je vhodný díky velikosti pouze pro jednoho nájemníka (např. studenta)!!! Páry či rodiny se mi prosím neozývejte, děkuji
Byt má 1 pokoj spojený s malým kuchyňským koutem (vestavěná lednička, dvouplotýnkový vařič), předsíň, samostatné WC, samostatnou koupelnu s vanou a pračku. Byt je volný 1.2.2026.
Byt má vlastní bojler na ohřev teplé vody, vytápění je společné na dům, stejně tak přívod pitné vody. Měřiče v bytech. Elektřina je v ceně (mám lepší tarif díky mé práci v energetice). Internet k dispozici také, a to separátní smlouvou přímo na nájemníka.
Velmi klidná lokalita, výborná dopravní dostupnost do centra, tramvaj pět minut pěšky, bus dvě minuty pěšky, Anděl do 15 minut. Občanská vybavenost v místě.
K dispozici je zahrada s udírnou, grilem.
Parkování na ulici bez zón, případně za příplatek je možné se dohodnout na parkování auta/motorky na vlastním parkovišti hned u domu.
K dispozici sauna v domě, za drobný poplatek 200 Kč za použití.
Hledám klidného nájemníka, nekuřáka, na dlouhodobý pronájem (maximálně pro 1 člověka!).
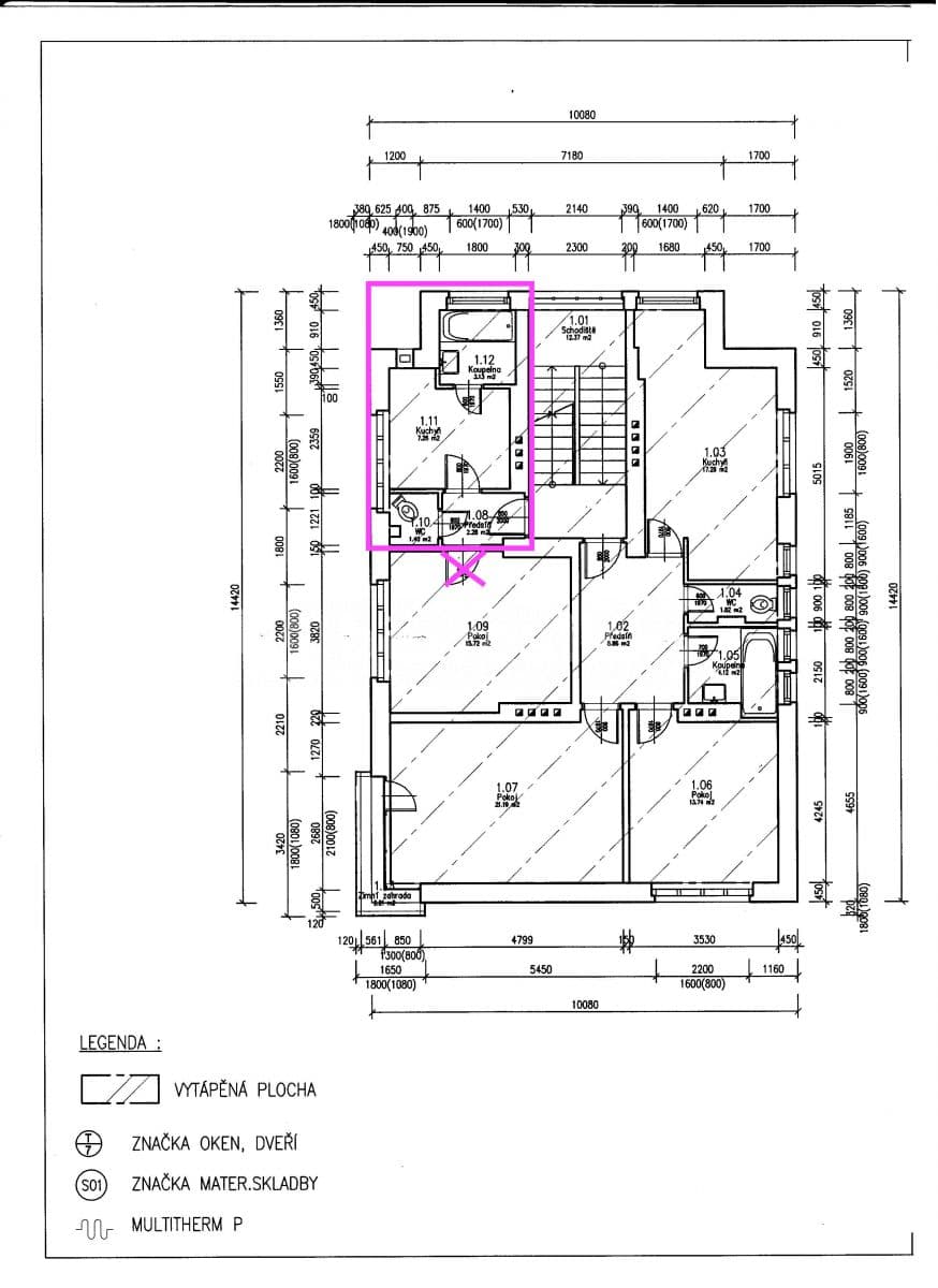
Na plánku se jedná o místnosti: 1.08, 1.10, 1.11, 1.12. Dveře do vedlejšího bytu neexistují, je to chyba v nákresu (v nákresu přeškrtnuté).
V domě není výtah.
Nájem 11.000 Kč měsíčně, poplatky za služby, elektřinu, vodu a teplo 4.000 Kč měsíčně, celkem tedy 15.000 Kč. Vratná kauce 15.000 Kč. Nájemní smlouva na dobu určitou, min. na 1 rok, nájem se platí na daný měsíc dopředu.
Prohlídky plánované na sobotu 31.1.2026 v 10.00 na adrese Pod Kesnerkou 2, Praha 5. Ozvěte se mi a napište mi rovnou něco o sobě - co děláte, kde pracujete, kdy byste se mohli přestěhovat. Je možné se rovnou domluvit a 1.2.2026 se nastěhovat. Těším se na prohlídky, děkuji.
I am offering for rent a small but bright, renovated apartment on the first floor of a detached family house with a total of 8 rental apartments.
!!! Due to its size, the apartment is suitable for one tenant only (e.g. a student) !!!
Couples or families, please do not contact me, thank you.
The apartment consists of one room combined with a small kitchenette (built-in fridge, two-burner cooker), an entrance hall, a separate toilet, a separate bathroom with a bathtub, and a washing machine. The apartment is available from 1 February 2026.
The apartment has its own boiler for hot water. Heating is central for the whole house, as is the drinking water supply. Individual meters are installed in the apartments. Electricity is included in the rent (I have a favourable tariff due to my work in the energy sector). Internet is also available, under a separate contract directly with the tenant.
Very quiet location with excellent transport connections to the city centre: tram stop 5 minutes on foot, bus stop 2 minutes on foot, Anděl within 15 minutes. Full local amenities nearby.
A garden with a smokehouse and barbecue is available.
Street parking is available without parking zones; alternatively, for an extra fee it is possible to arrange parking for a car or motorcycle on a private parking space directly next to the house.
A sauna is available in the building for a small fee of CZK 200 per use.
I am looking for a quiet, non-smoking tenant for long-term rent (maximum 1 person only).
On the floor plan, the apartment consists of rooms: 1.08, 1.10, 1.11, 1.12. The door to the neighbouring apartment does not exist; this is an error in the drawing (crossed out on the plan).
There is no elevator in the building.
Rent is CZK 11,000 per month, service charges including electricity, water and heating are CZK 4,000 per month, total CZK 15,000 per month. Refundable security deposit: CZK 15,000. Fixed-term lease agreement for a minimum of 1 year. Rent is payable in advance for the given month.
Viewings are planned for Saturday, 31 January 2026 at 10:00, at Pod Kesnerkou 2, Prague 5. Please contact me and include some information about yourself right away – what you do, where you work, and when you could move in. It is possible to agree immediately and move in on 1 February 2026. I look forward to the viewings, thank you.
Parametry nemovitosti
| Stáří | Do 10 let |
|---|---|
| Stav | Velmi dobrý |
| Dispozice | Garsoniéra |
| Podlaží | 1. podlaží z 3 |
| Vytápění | Ústřední |
| Vlastnictví | Osobní |
| Rekonstrukce | Interiér |
| Užitná plocha | 14 m² |
| Dostupné od | 1. 2. 2026 |
|---|---|
| Konstrukce budovy | Cihla |
| Vybaveno | Částečně |
| Provedení | Standardní |
| Číslo inzerátu | 558336 |
| PENB | B - Velmi úsporná |
| Umístění | Klidná část |
| Cena za jednotku | 786 Kč / m2 |
Co tato nemovitost nabízí?
| MHD 2 minuty pěšky |
V okolí nemovitosti najdete
Máte o nabídku zájem?
Ušetřete 11 000 Kč na provizi a komunikujte se všemi majiteli.
Stále hledáte to pravé?
Nastavte si hlídacího psa. Nabídky vybrané na míru dostanete souhrnně 1× denně e-mailem. S Premium profilem máte k ruce hlídačů rovnou 5 a když se něco objeví, informují vás obratem.





























