
Prodej domu 5+1 • 132 m² bez realitky, Šlesvicko-Holštýnsko
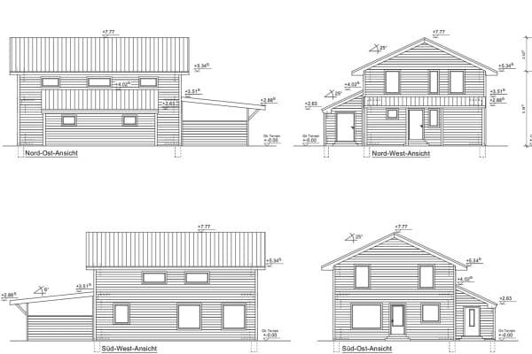
, Šlesvicko-HolštýnskoMHD 2 minuty pěšky • ParkováníOkouzlující frízský dům se skládá ze 4 ložnic s prostorným a světlým obývacím/jídelním prostorem, otevřenou kuchyní s ostrovem, koupelnou a hostinským WC, vše na celkové obytné ploše 132 m² včetně terasy.
Je ihned k nastěhování a byl nedávno čerstvě natřen malířem.
Budova, postavená v roce 2008, je vytápěna velmi energeticky účinnou zemní tepelnou čerpadlem. V celém domě zajišťuje podlahové topení příjemné teplo bez rušivých radiátorů.
Navíc zcela izolovaný a utěsněný šikmý podkrovní prostor poskytuje spoustu úložného prostoru.
Terasa orientovaná směrem na jihozápad láká k dlouhým slunečným dnům a může být zastíněna markýzou. Autoparkovací stání se zabudovanou kůlnou poskytuje dostatek úložného prostoru a zajišťuje soukromí.
Celkově s pozemkem o rozloze 526 m² nabízí dostatek místa pro zahradničení, hraní nebo grilování s přáteli.
Celý pozemek včetně domu je prodáván za cenu 599 000 Euro.
Žádáme, aby se nezasílaly dotazy od makléřů.
Nemovitost se nachází v Henstedt-Ulzburg, v oblíbené části Rhen.
V bezprostředním okolí nemovitosti se nacházejí autobusové linky a nákupní možnosti, školy i školky nejsou daleko.
Těsně naproti se nachází chráněná oblast přírody Henstedter Moor s pramenem Alster.
Hned vedle se nachází kvalitní zdravotnická péče a rozmanité možnosti pro odpočinek a sport.
V okolí nemovitosti najdete
Stále hledáte to pravé?
Nastavte si hlídacího psa. Nabídky vybrané na míru dostanete souhrnně 1× denně e-mailem. S Premium profilem máte k ruce hlídačů rovnou 5 a když se něco objeví, informují vás obratem.