
Prodej domu • 294 m² bez realitkyTaufkirchen-München Taufkirchen Bayern 82024
Taufkirchen-München Taufkirchen Bayern 82024MHD 2 minuty pěšky • Parkování • GarážDer einzigartige Bungalow aus 1974 wurde in den letzten Jahren aufwendig renoviert.
Unikátní bungalov z roku 1974 byl v posledních letech pečlivě zrenovován.
Er besticht durch zeitlose Eleganz und luxuriöse Details.
Okouzluje svou nadčasovou elegancí a luxusními detaily.
Auf einem 636m² großen Eckgrundstück bietet das Anwesen Privatsphäre und gehobenen Wohnkomfort.
Na rohovém pozemku o rozloze 636 m² nabízí tato nemovitost soukromí a vybraný komfort bydlení.
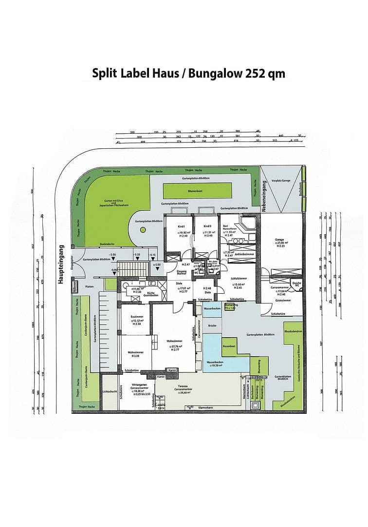
Das Erdgeschoss mit ca. 218m² beeindruckt durch hochwertige Materialien und eine raffinierte Raumgestaltung.
Přízemí o přibližně 218 m² působí dojmem díky vysoce kvalitním materiálům a promyšlenému uspořádání prostor.
Das edle Interieur wird durch polierten Marmor, prachtvolle Säulen mit kunstvollen Ornamenten sowie dezente goldene Akzente unterstrichen und verleiht eine exklusive Atmosphäre.
Elegantní interiér je podtržený leštěným mramorem, nádhernými sloupy s uměleckými ornamenty a decentními zlatými akcenty, což mu dodává exkluzivní atmosféru.
Das lichtdurchflutete Wohnzimmer bietet durch eine verspiegelte Decke und bodentiefe Fenster eine beeindruckende Raumwirkung.
Prosvětlený obývací pokoj s efektem prostoru, který vytváří zrcadlový strop a podlahová okna, působí velmi působivě.
Der Kamin sorgt für gemütliche Behaglichkeit.
Krb zajišťuje útulnou atmosféru.
Der Essbereich wird durch hochwertige Holzeinbauten geprägt und schafft eine Verbindung zur Küche.
Jídelna je charakterizována kvalitními dřevěnými vestavbami a spojuje se s kuchyní.
Der Wintergarten mit Beschattung und automatischer Pflanzenbewässerung erweitert das Raumgefühl.
Zimní zahrada se zastíněním a automatickým zavlažováním rostlin rozšiřuje pocit prostoru.
Das großzügige Schlafzimmer bietet neben einem Bad en Suite auch eine separate Ankleide.
Prostorná ložnice nabízí kromě vlastní koupelny i samostatnou šatnu.
Eine geschickte Aufteilung ermöglicht vom Hauptschlafzimmer und den beiden weiteren Zimmern den Zugang zum WC.
Chytré rozvržení umožňuje, aby hlavní ložnice i dvě další místnosti měly přístup na WC.
Ein flexibles Schiebeelement ermöglicht es, die beiden Zimmer im Ganzen oder getrennt zu nutzen.
Flexibilní posuvný prvek umožňuje obě místnosti využívat společně nebo odděleně.
Der pflegeleichte Atriumgarten wird von einem Wasserbecken durchzogen.
Snadno udržovatelná atriemová zahrada je protkána vodním jezírkem.
Eine überdachte Terrasse mit Außenkamin sowie eine freie Terrasse laden zu ungestörten Stunden im Freien ein.
Zakrytá terasa s venkovním krbem a volná terasa zvou k nerušeným chvílím venku.
Der Außenbereich schafft eine idyllische und private Atmosphäre.
Exteriér vytváří idylickou a intimní atmosféru.
Ideal für Gäste ist das angrenzende Apartment, ausgestattet mit maßgefertigten Holzelementen.
Pro hosty je ideální sousední apartmán, vybavený zakázkovými dřevěnými prvky.
Durch einen eigenen Eingang erreichen Sie die im Souterrain befindliche Gewerbeeinheit mit ca. 207m².
Vstupem vlastním vchodu se dostanete do komerční jednotky v suterénu o přibližně 207 m².
Sie umfasst sechs Räume, zwei Toiletten, eine Küche mit Aufenthaltsraum und ein beeindruckendes Atelier mit 70m² Fläche und 3,5m Deckenhöhe.
Tato jednotka zahrnuje šest místností, dvě toalety, kuchyni s odpočinkovou zónou a impozantní ateliér o rozloze 70 m² a se stropní výškou 3,5 m.
Das Souterrain ist dank der Größe vielseitig nutzbar und könnte auch als Wohnraum umgestaltet werden.
Díky své velikosti lze suterén využít mnohostranně a může být přestavěn i na obytný prostor.
Die attraktive Immobilie befindet sich in begehrter Randlage im Süden von München.
Atraktivní nemovitost se nachází v žádané okrajové oblasti na jihu Mnichova.
Die Umgebung ist geprägt von einer familienfreundlichen Wohnsiedlung mit überwiegend Einfamilienhäusern.
Okolí je charakteristické rodinnou rezidenční zástavbou převážně jedrodinných domů.
Taufkirchen ist eine aufstrebende Gemeinde im Landkreis München und profitiert von ihrer hervorragenden Infrastruktur sowie der unmittelbaren Nähe zur bayerischen Landeshauptstadt.
Taufkirchen je rostoucí obec v okrese Mnichov a těží z vynikající infrastruktury a bezprostřední blízkosti k bavorské hlavní metropoli.
Die Lage bietet sowohl für Privatpersonen als auch Gewerbetreibende optimale Voraussetzungen.
Lokalita nabízí optimální předpoklady jak pro soukromé osoby, tak pro podnikatele.
Eine hervorragende Anbindung über die Autobahn A8, die B13 sowie den öffentlichen Nahverkehr (S-Bahn und Bushaltestelle) sorgt für kurze Wege.
Vynikající dopravní spojení díky dálnici A8, silnici B13 a veřejné dopravě (S-Bahn a autobusová zastávka) zajišťuje krátké cesty.
Die Stadtgrenze Münchens ist in nur 7 Minuten und das Zentrum mit der S-Bahn in 20 Minuten erreichbar.
Okraj Mnichova je dosažitelný za pouhých 7 minut a centrum se spojovou linkou S-Bahn za 20 minut.
Zum Flughafen gelangen Sie in rund 30 Minuten.
Na letiště se dostanete zhruba za 30 minut.
Taufkirchen kombiniert ideal die Vorteile urbaner Nähe mit ländlicher Ruhe.
Taufkirchen ideálně kombinuje výhody městské blízkosti s venkovským klidem.
Die Gemeinde bietet eine Vielzahl an Einkaufsmöglichkeiten, Erholungs- und Freizeitangeboten, kulturellen Einrichtungen sowie ein umfassendes Bildungsangebot.
Obec nabízí řadu obchodních příležitostí, možností odpočinku a volnočasových aktivit, kulturních zařízení i komplexní vzdělávací nabídku.
Ärzte, Apotheken und weitere Dienstleistungen sind vor Ort vorhanden.
Na místě jsou k dispozici lékaři, lékárny a další služby.
Auch Spazier- und Wandermöglichkeiten befinden sich in direkter Umgebung, was die Lebensqualität zusätzlich erhöht.
Také možnosti pro procházky a turistiku jsou přímo v okolí, což dále zvyšuje kvalitu života.
Die Nähe zur Hauptstadt schafft ebenso wertvolle Synergien.
Blízkost k metropoli vytváří rovněž cenné synergie.
München ist eine pulsierende Metropole mit hoher Lebensqualität, die als bedeutendes wirtschaftliches, kulturelles und wissenschaftliches Zentrum Europas gilt.
Mnichov je pulzující metropole s vysokou kvalitou života, která je považována za významné ekonomické, kulturní a vědecké centrum Evropy.
Die Stadt bietet eine starke Infrastruktur, internationale Vernetzung und vielfältige Karrieremöglichkeiten.
Město nabízí silnou infrastrukturu, mezinárodní propojení a rozmanité kariérní příležitosti.
München entwickelt sich stetig weiter und zieht zahlreiche neue Bewohner an.
Mnichov se neustále rozvíjí a přitahuje řadu nových obyvatel.
Auch die Randlagen wie Taufkirchen profitieren von diesem Wachstum, da immer mehr Menschen die Kombination aus ruhiger Wohnlage und schneller Anbindung an das urbane Leben schätzen.
I okrajové oblasti jako Taufkirchen profitují z tohoto růstu, protože stále více lidí si cení kombinace klidného bydlení a rychlé dostupnosti městského života.
Diese Immobilie bietet daher sowohl für Wohnzwecke als auch für geschäftliche Nutzungen vielseitige Möglichkeiten in einer der wachstumsstärksten und lebenswertesten Umgebungen.
Tato nemovitost tak nabízí rozmanité možnosti jak pro bydlení, tak pro komerční využití v jedné z nejdynamičtějších a nejpříjemnějších lokalit.
- ruhige Wohnsiedlung in südlicher Randlage von München
- klidná rezidenční čtvrť na jižním okraji Mnichova
- sehr gute Infrastruktur
- velmi dobrá infrastruktura
- vielseitige Nutzungsmöglichkeiten
- víceúčelové využití
- 636 m² großes, privates Eckgrundstück
- 636 m² velký, soukromý rohový pozemek
- Erdgeschoss mit 218 m² Wohnfläche, Gesamtwohnfläche 294 m²
- přízemí s 218 m² obytné plochy, celková obytná plocha 294 m²
- Souterrain mit etwa 207 m² Wohn- oder Gewerbefläche
- suterén s přibližně 207 m² obytné nebo komerční plochy
- aufwendige Renovierung 2023-2024-2025
- náročná rekonstrukce 2023–2024–2025
- hochwertige Materialien
- vysoce kvalitní materiály
- qualitative Einbauelemente aus Holz
- kvalitní vestavěné prvky ze dřeva
- Wintergarten mit Beschattung, Elektroheizung, automatischer Pflanzenbewässerung
- zimní zahrada se zastíněním, elektrotopením, automatickým zavlažováním rostlin
- separates Apartment mit kompaktem Bad
- samostatný apartmán s kompaktní koupelnou
- Fußboden-, Schacht- und Konvektorheizung
- podlahové, průduchové a konvektorové vytápění
- Doppelgarage mit 27 m², elektrischem Sektionaltor
- dvougaráž o 27 m² s elektrickými sekčními vraty
- Atriumgarten mit rundum Beleuchtung, Wasserbecken und Außenkamin
- atriemová zahrada s celkovým osvětlením, vodním jezírkem a venkovním krbem
Diese Anwesen, wie "NEU", wird privat (ohne Makler) verkauft.
Tato nemovitost je nabízena jako "NOVÁ" a prodává se soukromě (bez makléře).
Ein Verkauf erfolgt aus Altersgründen.
Prodej probíhá z důvodu věku.
Für weitere Fragen bitte Erstkontakt per Email mit Angabe von Name und Adresse. Anschließend erhalten Sie meinen Kontakt mit Telefonnummer.
Pro další dotazy prosím nejprve kontaktujte emailem s uvedením jména a adresy. Poté obdržíte mé kontaktní telefonní číslo.
Angaben (Bin interessiert nur mit .........@gmail....) werden nicht beantwortet. (Immer unseriöse Angebote vom Ausland).
Informace (mám zájem pouze o kontakty s .........@gmail....) nebudou zodpovězeny. (Vždy podvodné nabídky ze zahraničí.)
Danke für Ihr Verständnis!
Děkuji za pochopení!
Parametry nemovitosti
| Stáří | Nad 50 let | 
|---|---|
| Číslo inzerátu | 952928 | 
| Užitná plocha | 294 m² | 
| Celkem podlaží | 2 | 
| Stav | Novostavba | 
|---|---|
| PENB | D - Méně úsporná | 
| Plocha pozemku | 636 m² | 
| Cena za jednotku | 7 789 € / m2 | 
Co tato nemovitost nabízí?
| Bezbariérový přístup | |
| Garáž | |
| Parkování | |
| Terasa | 
| Sklep | |
| MHD 2 minuty pěšky | 
V okolí nemovitosti najdete
Stále hledáte to pravé?
Nastavte si hlídacího psa. Nabídky vybrané na míru dostanete souhrnně 1× denně e-mailem. S Premium profilem máte k ruce hlídačů rovnou 5 a když se něco objeví, informují vás obratem.


























