
Prodej bytu 4+1 • 99 m² bez realitkyErich-Ollenhauer-Straße Düsseldorf Garath Nordrhein-Westfalen 40595
Erich-Ollenhauer-Straße Düsseldorf Garath Nordrhein-Westfalen 40595MHD 3 minuty pěšky • Výtah • ParkováníAtraktivní investiční příležitost: 97 m² byt s balkonem, zrekonstruovaný!
Adresa:
Erich-Ollenhauer-Straße 7,
Garath, 40595 Düsseldorf
Zobrazit na mapě
Kolik stojí stěhování sem?
Doba dojíždění (např. do práce, školky…)
Doba cestování
Nechte si spočítat dobu dojíždění z této nemovitosti do jiných lokalit.
Přidat místo
329.500 €
Koupní cena, 3.295 €/m²
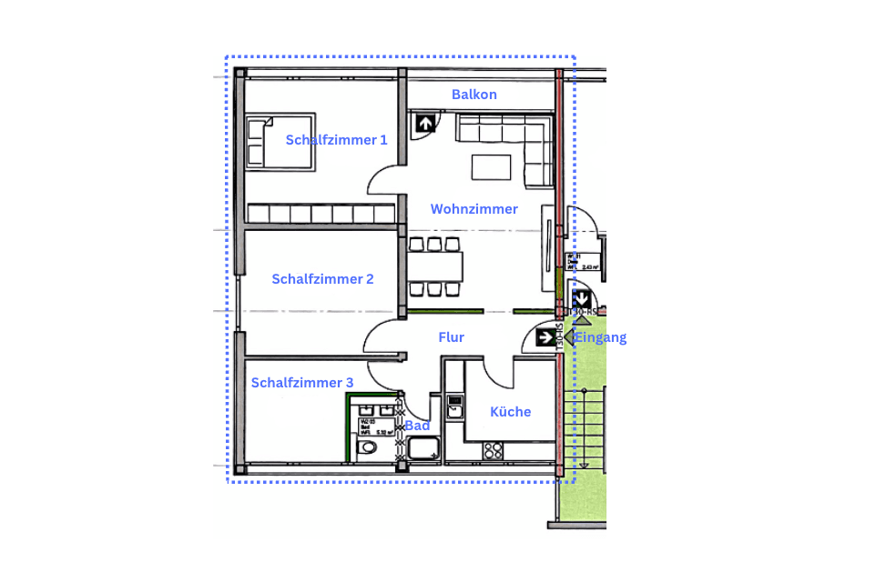
4 místnosti
přibližně 100 m² obytné plochy
Na čem je založena prodejní cena?
Požádat o ocenění nemovitosti
Financování od 964 € měsíčně
Osobní výtah, balkon/terasa, bezbariérový přístup, pronajatá, bez provize pro kupující
Typ: Bytová jednotka
Podlaží: 2. z 4
Obytná plocha: cca 100 m²
Místnosti: 4
Ložnice: 3
Koupelna: 1
Garáž/parkovací místo: 1 – venkovní parkovací místo
Rychlost internetu: až 100 MBit/s
Zobrazit tarify
powered by
Členové vědí víc!
Prozkoumej své šance na tuto nemovitost.
Zhlédnutí:
Publikováno:
Poznamenáno:
Kontaktováno:
Analýza konkurence
Informace o příjmech, velikosti domácnosti...
Aktivovat nyní
Náklady
Koupní cena: 329.500 €
Mohu si tento byt dovolit?
Cena/m²: 3.295 €/m²
Společenství / poplatky: 320 €
Provize pro kupující: Ne
Nájemné měsíčně: 1.340 €
Hodnota nemovitosti
Ocenění je zdarma pro uživatele KäuferPlus
Financování
Financovat byt?
Prozkoumej nyní
357.508 €
Celkové náklady
329.500 €
Koupní cena
28.008 €
Případné dodatečné náklady
Porovnej měsíční splátku a úroky ve své oblasti a v celém Německu.
Interhyp AG
(226)
1.096 € měsíčně
3,60 % efektivní roční úrok
3,51 % nominální úrok
BSH Bausparkasse Schwäbisch Hall
(17)
1.191 € měsíčně
4,00 % efektivní roční úrok
3,90 % nominální úrok
MA Immobilienfinanzierung
(0)
1.157 € měsíčně
3,85 % efektivní roční úrok
3,76 % nominální úrok
Na základě průměrných tržních údajů: 2,97 % nominální úrok, 3,01 % efektivní roční úrok, 10 let fixace, 1 % splácení, 65.900 € vlastního kapitálu
Financovat od 964 € měsíčně
Stavební stav a energetický průkaz
Modernizace/rekonstrukce proběhla naposledy v roce 2025
Stav objektu: Zrekonstruovaný
Vybavení: Standardní kvalita
Druh vytápění: Plynové vytápění
Hlavní zdroj energie: Plyn
Energetický průkaz: K dispozici
Typ energetického průkazu: Výdajový
Konečná spotřeba energie: 70,4 kWh/(m²*rok)
Energetická třída: B
Rok výstavby dle energetického průkazu: 1965
Služby pro tebe
• Domácí zábava
• Podpora KfW
• Spotřeba elektřiny
• Plynový kalkulátor
• Ukončení bytu
• Tarif MagentaTV MegaStream
powered by Telekom
V chytrém tarifu MegaStream si můžete vychutnat s MagentaTV HD-/UHD-televizi s úžasnými funkcemi, v kombinaci se streamovaným obsahem od Netflix, Disney+ a RTL+ Premium – se zvýhodněnou cenou oproti individuálním odběru. Pohodlně přes jedno rozhraní, doma i na cestách, s či bez připojení od Telekom.
Zde se informujte
Popis nemovitosti
Prostorný 99 m² byt s balkonem a parkovacím místem – ideální pro páry, rodiny nebo všechny, kdo milují prostor. Přehledné dispozice, dostatek světla, pohodový každodenní život: venku si můžete užít balkon a parkovat bez hledání díky vyhrazenému parkovacímu místu.
Byt je spolehlivě pronajatý za 1.340 € (bez vytápění) měsíčně (ročně 16.080 €).
Stručně:
+ BEZ PROVIZE
+ cca 99 m² obytné plochy
+ Velký balkon
+ Parkovací místo
+ Pronajatý: 1.340 € měsíčně
+ Dobré dispozice, zrekonstruovaný stav
+ Bezbariérový přístup
+ Skvělá dostupnost
+ Elektronické žaluzie
Další dokumenty (půdorys, prohlášení o dělení, ekonomický plán) zašleme rádi na požádání.
Nemovitost se nachází v rušné oblasti Düsseldorfu, čtvrť Garath. V docházkové vzdálenosti najdete několik autobusových linek a železniční tratě S6 a S68. V pěší vzdálenosti jsou také pekárny, lékaři, kavárny, restaurace a nákupní centrum. Také několik zelených ploch a parků, módních obchodů, fitness center, knihkupectví a knihovna je v dosahu.
V okolí nemovitosti najdete
Stále hledáte to pravé?
Nastavte si hlídacího psa. Nabídky vybrané na míru dostanete souhrnně 1× denně e-mailem. S Premium profilem máte k ruce hlídačů rovnou 5 a když se něco objeví, informují vás obratem.











