
Prodej domu • 219 m² bez realitkyIm grünen Winkel 2 Landau Landau in der Pfalz Rheinland-Pfalz 76829
Im grünen Winkel 2 Landau Landau in der Pfalz Rheinland-Pfalz 76829MHD 3 minuty pěšky • ParkováníDvojdomovní polovina a hostinský dům byly postaveny masivně a jsou v současnosti prázdné. Ať už jako klasický rodinný dům, dům pro více generací, nebo jako investice – zde najdete prostor pro své individuální bytové sny. Domy se nacházejí v klidné lokalitě Landau.
*** HOSTINSKÝ DŮM:
- Rok výstavby: 2014
- Stavba: z masivního materiálu
- Stav: jako nový a prázdný – můžete se ihned nastěhovat nebo pronajmout
- Prostorný a moderní obývací a jídelní pokoj s otevřenou kuchyní
- Ložnice
- Moderní koupelna s vanou a sprchou
- přibližně 79 m² obytné plochy
*** HLAVNÍ DŮM:
- Rok výstavby: 1993
- přibližně 140 m² obytné plochy
- Stavba: masivní dům / dvojdomovní polovina
- Dům vykazuje potřebu rekonstrukce interiéru (podlahy, stěny, stropy) – s malou prací lze dům proměnit ve skvost.
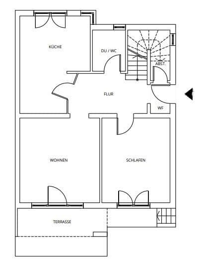
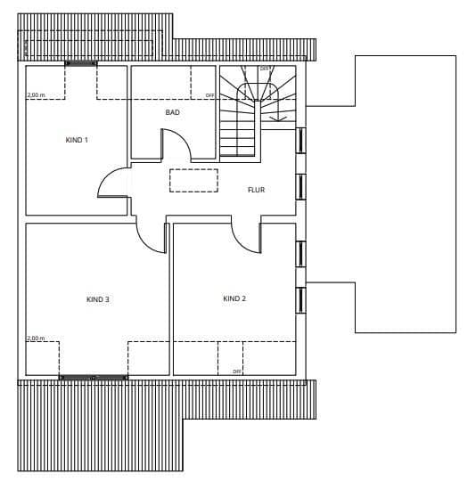
V přízemí se nachází hostinská koupelna se sprchou a toaletou, kuchyň, ložnice a prostorný obývací pokoj. Z obývacího pokoje se dostanete na nádhernou slunnou terasu. V patře se nachází tři ložnice a moderní koupelna.
Oba domy jsou vytápěny ústředním plynovým topením.
Energetický štítek je momentálně ve zpracování.
Prodej probíhá soukromým vlastníkem, a proto není zprostředkovatelský poplatek účtován.
Poptávky od realitních kanceláří nejsou výslovně vítány a nebudou zodpovězeny.
Parametry nemovitosti
| Stáří | Nad 50 let |
|---|---|
| Stav | Velmi dobrý |
| Užitná plocha | 219 m² |
| Celkem podlaží | 3 |
| Dostupné od | 3. 11. 2025 |
|---|---|
| Číslo inzerátu | 959077 |
| Plocha pozemku | 420 m² |
| Cena za jednotku | 1 817 € / m2 |
Co tato nemovitost nabízí?
| MHD 3 minuty pěšky |
| Parkování | |
| Terasa |
V okolí nemovitosti najdete
Stále hledáte to pravé?
Nastavte si hlídacího psa. Nabídky vybrané na míru dostanete souhrnně 1× denně e-mailem. S Premium profilem máte k ruce hlídačů rovnou 5 a když se něco objeví, informují vás obratem.

























