
Pronájem bytu 2+kk • 67 m² bez realitkyHoffmannstr. 27, , Bádensko-Württembersko
Hoffmannstr. 27, , Bádensko-WürttemberskoMHD 1 minuta pěšky • GarážPěkně udržovaný 2,5 pokojový byt se nachází v posledním patře dvoupatrového půvabného panelového domu.
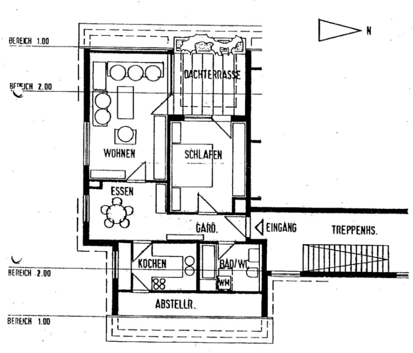
Obývací pokoj je díky několika oknům světlý a přívětivý. Odtud se dostanete na slunnou západní střešní terasu s nádherným výhledem až na Höfingen. Pro výsadbu rostlin je zde dostatek místa. Dokonce i z okna obývacího pokoje můžete pozorovat i věž Engelberg.
Vedle se nachází prostorná ložnice, která nemá střešní šikmé stěny, takže do ní lze bez problémů umístit velkou skříň. I tato ložnice má přístup na střešní terasu.
Kuchyň je vybavena vestavěnými spotřebiči a má také další úložný prostor pro zásoby nebo kuchyňské náčiní.
Koupelna, do které proniká denní světlo, je vybavena vanou s výhledem z oken ve střeše. Dále disponuje umyvadlem, toaletou a připojením pro pračku.
Pro další úložný prostor slouží sklepní komora a další uzamykatelná společná skladovací místnost.
Společně se využívají také velkorysá prádelna a snadno přístupný, uzamykatelný pokoj pro kola.
Pohodlné parkovací místo v podzemní garáži na úrovni terénu pak doplňuje tuto atraktivní nabídku.
Dům byl postaven v roce 1982 v oblíbené obytné čtvrti nedaleko historického centra Leonberger a nachází se v pečlivě udržovaném dobrém stavu.
V okolí nemovitosti najdete
Stále hledáte to pravé?
Nastavte si hlídacího psa. Nabídky vybrané na míru dostanete souhrnně 1× denně e-mailem. S Premium profilem máte k ruce hlídačů rovnou 5 a když se něco objeví, informují vás obratem.












