
Prodej domu • 221 m² bez realitky, Bádensko-Württembersko
Nový
, Bádensko-WürttemberskoMHD 3 minuty pěšky • GarážCena650 000 €
Přeloženo pomocí AI
Rodinný dům pro 1–2 rodiny, kompletně zrekonstruován v roce 1988, během let proběhly další renovace. Další opravárenské práce jsou však zapotřebí. Možnost přístavby a přestavby je případně možná. Velká zahrada nabízí mnoho možností úpravy. V domě je k dispozici plynové připojení pro přechod na jiné vytápění.
Dům se nachází v dobré centrální lokalitě, jen pár minut chůze od nádraží, mateřské školy, obchodů, škol, lékařů apod. Navíc jste rychle v přírodě, ideální pro turistiku nebo jízdu na kole.
K dispozici je také starší vestavěná kuchyň.
Parametry nemovitosti
| Stáří | Nad 50 let |
|---|---|
| PENB | G - Mimořádně nehospodárná |
| Plocha pozemku | 701 m² |
| Cena za jednotku | 2 941 € / m2 |
| Číslo inzerátu | 960972 |
|---|---|
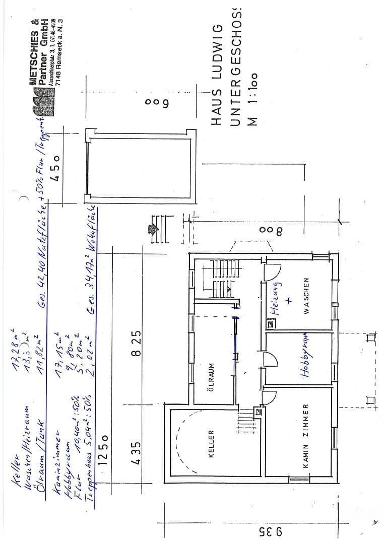
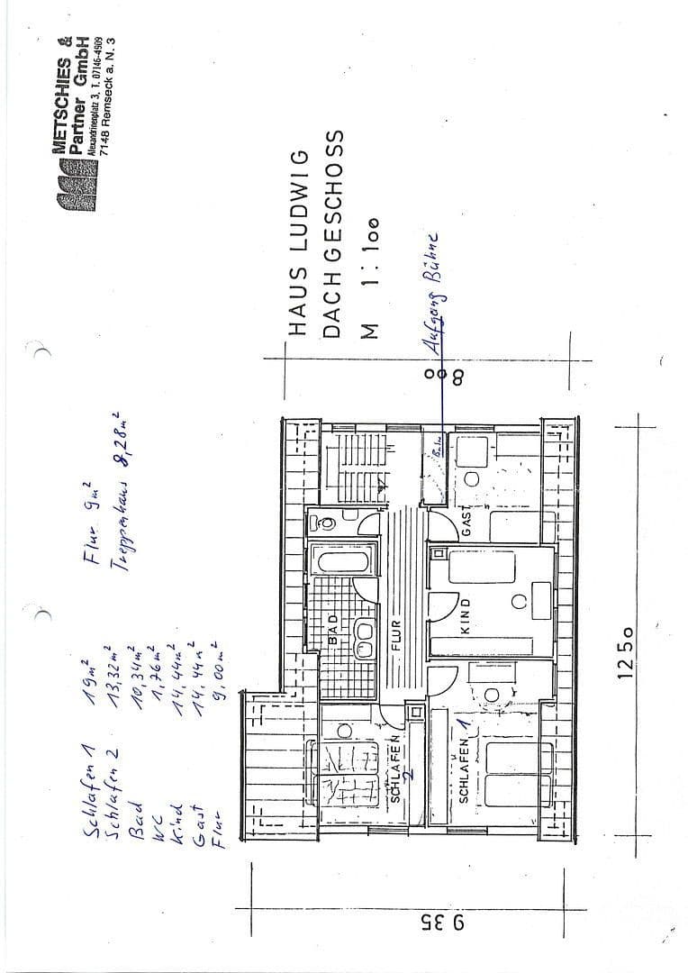
| Užitná plocha | 221 m² |
| Celkem podlaží | 1 |
Co tato nemovitost nabízí?
| Balkón | |
| Garáž | |
| MHD 3 minuty pěšky |
| Sklep | |
V okolí nemovitosti najdete
MHDEnzplatz
🚶 209 m (3 min)
PoštaPoststelle Besigheim
🚶 360 m (4 min)
ObchodAnNa unverpackt Kaufladen
🚶 123 m (1 min)
BankaVR-Bank
🚶 170 m (2 min)
RestauraceMarktwirtschaft
🚶 131 m (2 min)
LékárnaEnztal-Apotheke
🚶 351 m (4 min)
ŠkolaSchule am Steinhaus
🚶 273 m (3 min)
Mateřská školaBühl
🚶 280 m (3 min)
SportovištěAB Sports
🚶 195 m (2 min)
Hřiště
🚶 260 m (3 min)
Vzdálenost k:
Cena650 000 €
Stále hledáte to pravé?
Nastavte si hlídacího psa. Nabídky vybrané na míru dostanete souhrnně 1× denně e-mailem. S Premium profilem máte k ruce hlídačů rovnou 5 a když se něco objeví, informují vás obratem.










