
Prodej domu 4+1 • 124 m² bez realitkyPichling bei Stainz Steiermark 8524
Tento dům splňuje všechny nároky moderního bydlení i přes jeho malou základní plochu. Tento prostorový zázrak uspokojuje všechny požadavky moderního bydlení – s maximální funkčností. Je ideální pro všechny, kdo plánují s rozmyslem a nechtějí si nic odepřít. Promyšlený dům, který překvapí: s prosvětlenou obytnou částí, chytrým rozložením místností a se vším, co moderní bydlení vyžaduje. Pro lidi, kteří mají rádi to podstatné – a cení si pohodlí.
Funkční, efektivní, pohodlný: Tento dům ukazuje, kolik kvality života se skrývá v kompaktní architektuře. Pro všechny, kteří plánují s předstihem – a využívají prostor inteligentně.
Na Vašem pozemku nebo …
Aktuálně nabízíme následující pozemky:
Güssing: přibližně 2 600 m² – velikosti a umístění pozemku dle výběru
-----------------------------------------------------------------------------------------
Pichling u Stainz: přibližně 7 500 m² stavebního pozemku – velikosti a umístění pozemku dle výběru
-----------------------------------------------------------------------------------------
Kraubath v Groß St. Florian: přibližně 5 000 m² stavebního pozemku – velikosti a umístění pozemku dle výběru
-----------------------------------------------------------------------------------------
8530 Deutschlandsberg: přibližně 2 180 m² stavebního pozemku. Schválený projekt se 4 obytnými jednotkami
Majitel je stále otevřen dalším nabídkám – velikosti a umístění pozemku dle výběru
-----------------------------------------------------------------------------------------
Oberer Bahnweg 14, 8523 Frauental: 1 000 m² stavebního pozemku se schváleným projektem dvojdomku
a volným výběrem dalších parametrů
-----------------------------------------------------------------------------------------
Vlastník pozemku a stavitel domu nejsou v ekonomicky blízkém vztahu!
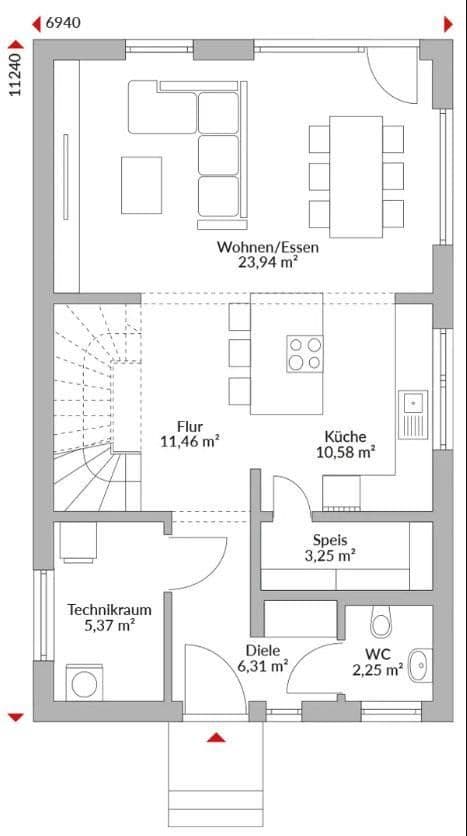
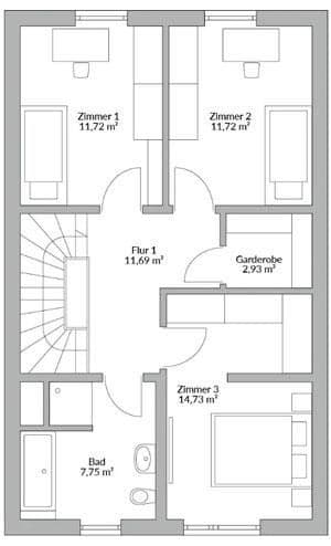
Rodinný dům se 4 pokoji – exkluzivní vybavení!
Klíčový dům včetně dodávky a montáže od horní hrany základů.
️ Posílená střešní konstrukce pro sněhovou zátěž
️ Vzduch-voda tepelná čerpadla a podlahové vytápění
️ Větrání obytných prostor s rekuperací tepla (letní chlazení)
️ Elektrické rolety po celém domě
️ Podlahové krytiny a sanitární vybavení dle vlastního výběru
️ Příprava pro fotovoltaiku
️ Balíček "všechno v jednom" bez starostí
Možné vlastní zapojení – přesně podle Vašich představ.
Poradenství & prodej:
paní Tatjana Wyss
+43 676 553 77 47
tatjana.wyss@danwood.at
Zajistěte si první konzultaci již nyní!
Požádejte o stavební popis a katalogy!
Pro tento účel je nutné uvést Vaše telefonní číslo, e-mailovou adresu a adresu.
Děkujeme!
FINANČNÍ KALKULAČKA
https://www.finaustria.at/finanzierungsrechner
DALŠÍ NABÍDKY!
https://qr.scan.page/uploads/pdf/1752348182250_686ba1debcb60.pdf
V okolí nemovitosti najdete
Stále hledáte to pravé?
Nastavte si hlídacího psa. Nabídky vybrané na míru dostanete souhrnně 1× denně e-mailem. S Premium profilem máte k ruce hlídačů rovnou 5 a když se něco objeví, informují vás obratem.



















