
Prodej domu 4+1 • 124 m² bez realitkyFrauental Steiermark 8523
Kompaktní a promyšlený – zázrak prostoru na malém půdorysu.
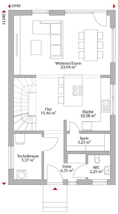
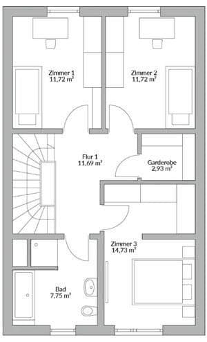
Přes malou zastavěnou plochu tento dům splňuje všechny požadavky moderního bydlení. Kuchyň je funkčně řešená, technická místnost nabízí dostatek prostoru pro domácí techniku a skladování. Koupelna je vybavena vanou i sprchou, navíc je k dispozici hostinská toaleta. Předvstupní chodba poskytuje prostornou předsíň, dětský pokoj a ložnice mají dobré možnosti uspořádání. Obývací/jídelna zaujme velkými okenními plochami a otevřenými přechody, které opticky zvětšují prostor.
Ideální pro všechny, kdo se zaměřují na podstatu – aniž by se vzdali komfortu.
Na vašem pozemku, nebo ...
Následující pozemky vám aktuálně můžeme nabídnout:
Güssing: přibližně 2 600 m² – velikosti i polohy pozemků jsou volné podle vašeho výběru
-----------------------------------------------------------------------------------------
Pichling u Stainz: přibližně 7 500 m² stavebního pozemku – velikosti i polohy pozemků jsou volné podle vašeho výběru
-----------------------------------------------------------------------------------------
Kraubath ve Velkém St. Florian: přibližně 5 000 m² stavebního pozemku – velikosti i polohy pozemků jsou volné podle vašeho výběru
-----------------------------------------------------------------------------------------
8530 Deutschlandsberg: přibližně 2180 m² stavebního pozemku. Schválený projekt se 4 obytnými jednotkami. Vlastník je stále otevřen dalším nabídkám – velikosti i polohy pozemků jsou volné podle vašeho výběru
-----------------------------------------------------------------------------------------
Oberer Bahnweg 14, 8523 Frauental: 1000 m² stavebního pozemku se schváleným projektem dvojdomu – volba je zatím volná
-----------------------------------------------------------------------------------------
Vlastník pozemku a stavitel domu spolu nejsou ve vzájemném obchodním vztahu!
Rodinný dům se 4 pokoji – exkluzivní vybavení!
Hotový klíč v ruce včetně dodávky a montáže od horní hranice základu.
️ Zesílená střešní konstrukce odolná proti sněhové zátěži
️ Tepelné čerpadlo vzduch-voda a podlahové vytápění
️ Ventilace obytných prostor s rekuperací tepla (letní chlazení)
️ Elektrické rolety v celém domě
️ Podlahové krytiny a sanitární vybavení dle vlastního výběru
️ Příprava pro fotovoltaiku
️ Kompletní balíček bez starostí
Pozemky od 500 m² do 1 500 m² jsou k dispozici na vyžádání!
Možnost vlastní účasti – zcela dle vašich představ.
Poradenství a prodej:
Paní Tatjana Wyss
+43 676 553 77 47
tatjana.wyss@danwood.at
Zajistěte si první konzultaci již nyní!
Požádejte o stavební popis a katalogy!
K tomu je nutné uvést telefonní číslo, e-mailovou adresu a adresu.
Děkujeme!
Kalkulačka financování
https://www.finaustria.at/finanzierungsrechner
DALŠÍ NABÍDKY!
https://qr.scan.page/uploads/pdf/1752348182250_686ba1debcb60.pdf
V okolí nemovitosti najdete
Stále hledáte to pravé?
Nastavte si hlídacího psa. Nabídky vybrané na míru dostanete souhrnně 1× denně e-mailem. S Premium profilem máte k ruce hlídačů rovnou 5 a když se něco objeví, informují vás obratem.



















