
Prodej domu 4+1 • 124 m² bez realitkyGroß St. Florian Steiermark 8524
Trotz malé zastavěné plochy splňuje tento dům všechny požadavky moderního bydlení. Tento prostorový zázrak naplňuje všechny nároky moderního bydlení – s maximální funkčností. Ideální pro všechny, kteří plánují uváženě a nechtějí na ničem šetřit. Dobře promyšlený dům, který překvapí: s prosvětleným obytným prostorem, chytrým uspořádáním místností a se vším, co moderní bydlení vyžaduje. Pro lidi, kteří mají rádi to podstatné – a oceňují komfort.
Funkční, efektivní, pohodlný: tento dům ukazuje, kolik kvality života se skrývá v kompaktní architektuře. Pro všechny, kteří plánují s předstihem – a využívají prostor inteligentně.
Na vašem pozemku, po celé Rakousku
Aktuálně nabízíme následující pozemky:
Güssing: Cca 2 600 m² – velikosti pozemků a jejich umístění lze volit libovolně
-----------------------------------------------------------------------------------------
Pichling u Stainzu: Cca 7 500 m² stavebního pozemku – velikosti a umístění pozemků lze volit libovolně
-----------------------------------------------------------------------------------------
Kraubath ve Velkém Svatém Floriánu: Cca 5 000 m² stavebního pozemku – velikosti a umístění pozemků lze volit libovolně
-----------------------------------------------------------------------------------------
8530 Deutschlandsberg: Cca 2 180 m² stavebního pozemku. Schválený projekt se 4 bytovými jednotkami
Majitel je stále otevřen dalším nabídkám – velikosti a umístění pozemků lze volit libovolně
-----------------------------------------------------------------------------------------
Oberer Bahnweg 14, 8523 Frauental: 1 000 m² stavebního pozemku se schváleným projektem dvojdomu – uspořádání lze dle přání volit
-----------------------------------------------------------------------------------------
Vlastník pozemku a stavitel domu nejsou ve vzájemně úzkém obchodním vztahu!
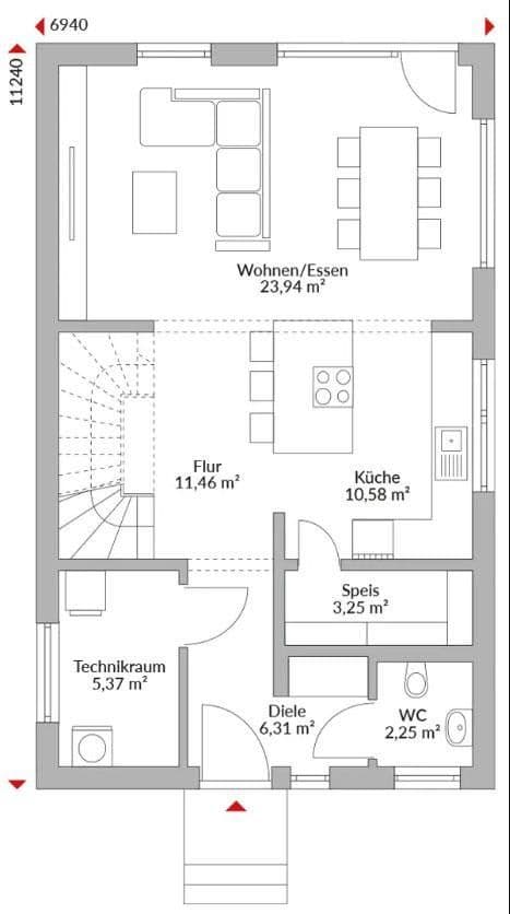
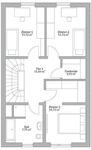
Rodinný dům se 4 pokoji – exkluzivní vybavení!
Hotový k nastěhování včetně dodávky a montáže od horní hrany základů.
• Zesílená konstrukce střechy pro sněhovou zátěž
• Vzduch-voda tepelné čerpadlo a podlahové vytápění
• Větrání obytných prostor s rekuperací tepla (letní chlazení)
• Elektrické rolety v celém domě
• Podlahové krytiny a sanitární zařízení volitelné podle vašich představ
• Příprava pro fotovoltaiku
• Balíček „vše v jednom“
Na přání dostupné pozemky od 500 m² do 1 500 m²!
Možnost vlastního zapojení – přesně podle vašich představ.
Poradenství & Prodej:
Paní Tatjana Wyss
+43 676 553 77 47
tatjana.wyss@danwood.at
Získejte nyní první konzultaci!
Další nabídky
https://qr.scan.page/uploads/pdf/1752348182250_686ba1debcb60.pdf
Požádejte o popis stavby a katalogy!
K tomu je nutné uvést vaše telefonní číslo, emailovou adresu a adresu.
Děkujeme!
V okolí nemovitosti najdete
Stále hledáte to pravé?
Nastavte si hlídacího psa. Nabídky vybrané na míru dostanete souhrnně 1× denně e-mailem. S Premium profilem máte k ruce hlídačů rovnou 5 a když se něco objeví, informují vás obratem.


















