
Pronájem bytu 3+1 • 68 m² bez realitkyNeubiberg Neubiberg Bayern 85579
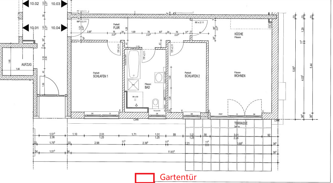
Tento atraktivní, světlem prostoupený přízemní byt se 3 pokoji o přibližně 68 m² obytné plochy se nachází v pečlivě udržovaném bytovém domě z roku 2018. Všechny místnosti jsou orientovány na jih, takže můžete celý den těžit z dostatku slunečního světla a prostory září jasným, příjemným světlem.
Zvláštním lákadlem je prostorná, soukromá zahrada (se zvláštním právem užívání, cca 75 m²) se slunnou terasou. Zde si užijete odpočinkové chvíle venku – ideální pro rodiny, páry nebo všechny, kteří ocení blízkost přírody.
Hlavní vybavení:
• Podlahové topení ve všech místnostech pro příjemné klima
• Elektrické rolety u všech oken
• Vestavěná kuchyň s myčkou nádobí a lednicí
• Vlastní sklep pro další úložný prostor
• Podzemní garážové stání včetně možnosti instalace nabíjecí stanice pro elektromobily
Byt bude k dispozici od 1. ledna 2026.
Neubiberg, oblíbená předměstí na jihovýchod od Mnichova, nabízí vynikající infrastrukturu a kvalitu života.
Byt se nachází v centrální části Neubibergu. Pouze cca 300 metrů daleko se nachází nejbližší stanice S-Bahn a různé obchody, jako EDEKA a REWE – ideální pro každodenní potřeby. Školy, mateřské školy, kavárny a zelené plochy jsou také snadno dostupné.
Stávající nábytek je možné po atraktivní ceně převzít, takže máte možnost okamžitě využívat byt plně zařízený a připravený k nastěhování.
V okolí nemovitosti najdete
Stále hledáte to pravé?
Nastavte si hlídacího psa. Nabídky vybrané na míru dostanete souhrnně 1× denně e-mailem. S Premium profilem máte k ruce hlídačů rovnou 5 a když se něco objeví, informují vás obratem.
















