
Pronájem bytu 1+1 • 29 m² bez realitkyRichard-Tauber-Straße 3 München Pasing Bayern 81243
Richard-Tauber-Straße 3 München Pasing Bayern 81243MHD 2 minuty pěšky • Výtah • GarážToto hezké a kompaktní jednopokojové apartmá se nachází v horním patře bytově-kancelářského domu postaveného v roce 2020 (v přízemí se nacházejí dvě kanceláře).
Kvalitní vybavení a inovativní technika zajišťují vysoký komfort bydlení:
Prostorná, až k podlaze sahající okna s izolačním sklem a integrovaným slunečním stíněním poskytují hodně denního světla a příjemnou atmosféru. Obývací a spací část je pokryta krásnou dubovou parketou.
Koupelna zaujme moderními obklady a exkluzivním vybavením sanitární značky, které zahrnuje bezprahovou sprchu, umyvadlo a WC.
Podlahové vytápění zajišťuje v celém apartmánu příjemné teplo, v koupelně navíc komfort umocňuje ručníkový ohřívač.
Otevřená a funkční vestavěná kuchyň je vybavena vysoce kvalitními elektrickými spotřebiči značky Siemens a nezanechává žádné pěry.
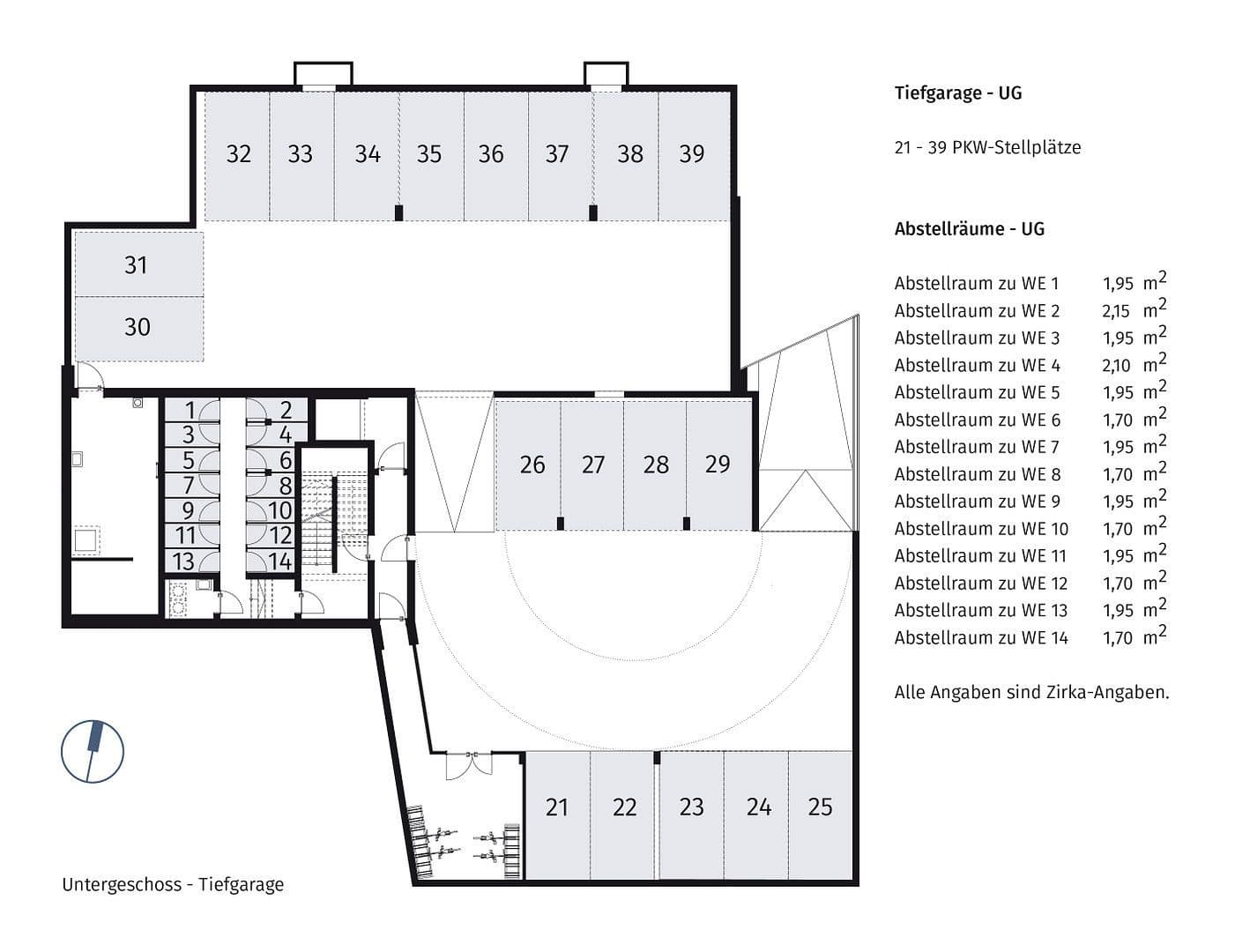
K apartmánu náleží praktická úložná místnost v suterénu. V ní se nachází také místnost pro kola a společná prádelna s pračkou a sušičkou.
K apartmánu patří parkovací místo pro osobní automobil v podzemní garáži za 75 € měsíčně.
Na požádání je možné při dostupnosti si pronajmout i další parkovací místa v podzemní garáži (každé za 75 € měsíčně).
V případě potřeby je po domluvě možný i dřívější nástup.
Pasing se nachází na západě hlavního města Bavorska a společně s Obermenzingem tvoří 21. městskou část Mnichova. Pasing disponuje vynikající infrastrukturou – nabízí vše, co člověk potřebuje pro každodenní život: veřejné a kulturní zařízení, školy a zařízení pro předškoláky, možnosti volnočasových a rekreačních aktivit.
Rušný dění panuje v okolí Marienplatz a stanice Pasinger Bahnhof – téměř jako v centru města. V centru této čtvrti se scházejí lékaři, lékárny a různorodé gastronomické podniky. Zejména Pasing Arcaden s řadou obchodů, kaváren a restaurací nabízí skvělé možnosti nakupování.
Skrytý na dvoře a opravdový tip pro znalce je Pasinger Viktualienmarkt, kde na ploše 400 m² najdete čerstvý chléb, sýry, salámy, maso, květiny a bylinky.
Kulturní a eventové centrum Pasinger Fabrik na severní straně nádraží nabízí pestrý program včetně koncertů, divadelních a kabaretních představení a pravidelně se zde konají měnící se výstavy.
Kdo hledá klid a odpočinek, může relaxovat při procházce idylickým městským parkem podél řeky Würm.
Náš bytově-kancelářský dům se nachází na ulici Richard-Tauber-Straße, jejíž velkou výhodou je dobrá dopravní dostupnost. Velmi blízko se nachází zastávka S-Bahn Westkreuz (linky S6 a S8). Centrum čtvrti u stanice Pasinger Bahnhof je také nedaleko a je dosažitelné pěšky, na kole nebo autobusem během několika minut. U stanice Pasinger Bahnhof protékají hlavní trať S-Bahn a železniční trať z hlavního nádraží Mnichova.
S autem máte spojení do všech směrů přes křižovatku München Freiham-Mitte.
Hlavní přednosti v přehledu:
• moderní architektura s jasnými liniemi
• solidní masivní výstavba z kvalitních tepelně izolovaných cihel
• moderní a ekologické vytápění na dřevní pelety
• výtah od suterénu po poslední patro
• podlahové vytápění s individuálním řízením v jednotlivých místnostech
• až k podlaze sahající spojená plastová okna a dveře s izolačním sklem a integrovanými elektricky ovládanými žaluziemi jako sluneční ochranou spolu s integrovanou ventilací
• prvotřídní vybavení
• kvalitní parkety v obytném prostoru
• elegantní obklady stěn a podlahy v koupelně
• koupelna s vybavením renomované značky, bezprahovou sprchou a dodatečným ručníkovým ohřívačem
• vysoce kvalitní kuchyň s elektrickými spotřebiči Siemens
• interkom
• uzamykatelný sklepní prostor
• individuální parkovací místo v podzemní garáži na požádání
• společná zelená plocha s dětským hřištěm
IMPRESSUM
Údaje podle § 5 TMG
Haslreiter BauConsulting GmbH
Sammarei 13
94496 Ortenburg
Ředitel: Günter Haslreiter
Okresní soud: Amtsgericht Passau
Obchodní rejstřík: HRB 9019
DIČ: 153/128/11453
Osobně odpovědná osoba podle § 10 odst. 3 MDStV: Günter Haslreiter
Poznámky k nájemnímu omezení:
Existují čtyři možné výjimky, za kterých se nájemní omezení neuplatňuje. Tato nabídka pronájmu spadá pod výjimku novostavby. Nájem je více než o 10 % vyšší než obvyklý nájem v dané lokalitě. Podle § 566g BGB je to povoleno, protože apartmán byl poprvé využit a pronajat po 1. říjnu 2014.
V okolí nemovitosti najdete
Stále hledáte to pravé?
Nastavte si hlídacího psa. Nabídky vybrané na míru dostanete souhrnně 1× denně e-mailem. S Premium profilem máte k ruce hlídačů rovnou 5 a když se něco objeví, informují vás obratem.














