
Prodej domu • 170 m² bez realitky, Dolní Sasko
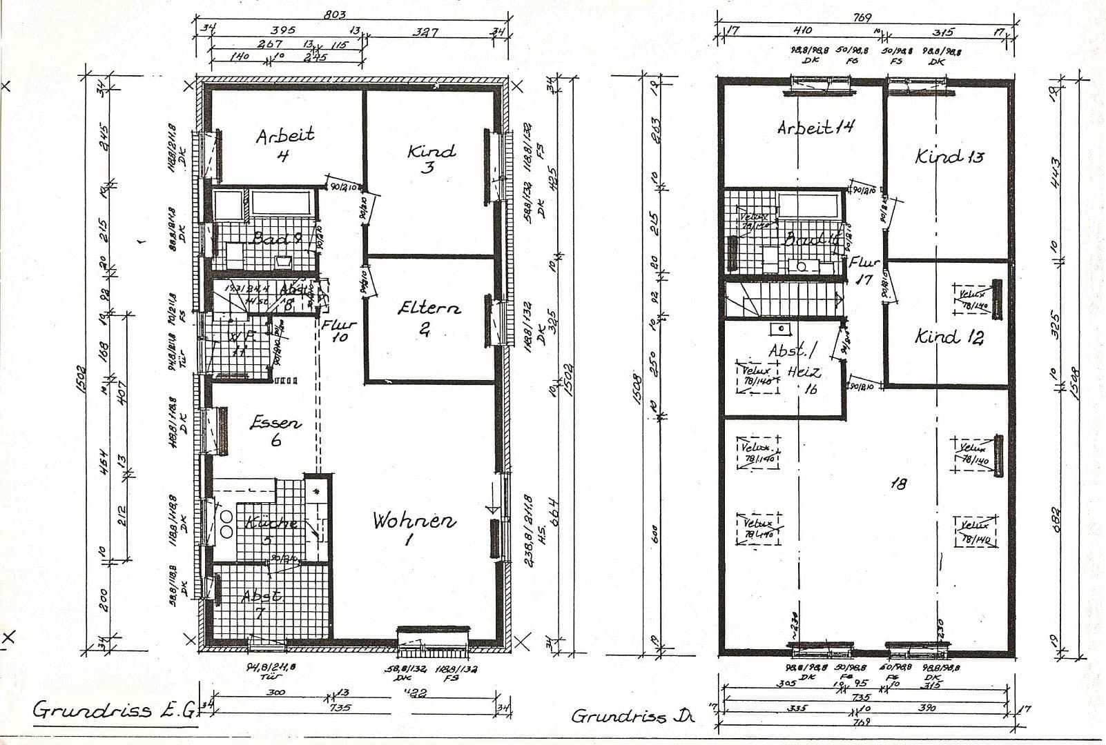
, Dolní SaskoMHD 1 minuta pěšky • Parkování • GarážVítejte v malebném Overu, okouzlující čtvrti Seevetal. Zde naleznete prostorný dům v klidné lokalitě, který je ideální pro rodiny a dvě generace. S celkovou rozlohou 170 metrů čtverečních a 8 světlými pokoji nabízí tento domov dostatek místa pro vaše nejbližší. Disponuje 2 koupelnami, 2 dobře vybavenými kuchyněmi a 3 terasami, jež zvou k odpočinku na čerstvém vzduchu. Zahrada navíc poskytuje prostor pro hry a volnočasové aktivity. Byla nově upravena s ohledem na nízkou náročnost údržby.
K dispozici je energetický štítek. Dům je vytápěn zemním plynem. Podle energetického štítku činí spotřeba energie 95,9 kWh na metr čtvereční, čímž dům získal energetickou třídu C.
Lokalita nemohla být lepší. V bezprostřední blízkosti se nachází zastávky autobusových linek 149 a 548, které zaručují vynikající dopravní spojení s okolím. Supermarket a restaurace jsou dosažitelné do 350 metrů a DRK Kindergarten Bullenhausen se nachází pouhých 450 metrů od vašeho nového domova. Školy jsou rovněž v blízkosti.
Tento rodinný dům s dostatkem prostoru a příjemným okolím je ideálním místem pro vytváření nových vzpomínek. Dům je koncipován jako vícegenerační a doposud byl využíván právě tímto způsobem. Nezmeškejte příležitost a domluvte si prohlídku již dnes!
Dům byl průběžně renovován.
V dubnu 2020 byla instalována nová okna s trojitým zasklením a bezpečnostním uzávěrem RC2N, stejně jako venkovní dveře s bezpečnostním uzávěrem RC2N.
V květnu 2021 byla do obytné a kuchyňské částí v podkroví instalována split klimatizace.
V květnu 2023 bylo přízemí renovováno, přičemž byla provedena kontrola a částečná obnova elektroinstalace.
V červnu 2024 byla obnovena zahrada včetně teras a pergol.
Parametry nemovitosti
| Stáří | Nad 50 let |
|---|---|
| Číslo inzerátu | 966955 |
| Plocha pozemku | 634 m² |
| Cena za jednotku | 2 935 € / m2 |
| Stav | Dobrý |
|---|---|
| Užitná plocha | 170 m² |
| Celkem podlaží | 2 |
Co tato nemovitost nabízí?
| Garáž | |
| Parkování | |
| Terasa |
| MHD 1 minuta pěšky |
V okolí nemovitosti najdete
Stále hledáte to pravé?
Nastavte si hlídacího psa. Nabídky vybrané na míru dostanete souhrnně 1× denně e-mailem. S Premium profilem máte k ruce hlídačů rovnou 5 a když se něco objeví, informují vás obratem.






















