
Prodej bytu 3+1 • 131 m² bez realitkyMünchen Harlaching Bayern 81545
Bez provize od soukromého vlastníka:
„Atraktivní bydlení ve skvělé lokalitě, mezi dobrou dostupností do centra, středního okruhu, salzburské dálnice a obrovskými volnočasovými možnostmi v přírodě, navíc s VELKOU sluneční terasou.“
Pokojný, světlem zalitý byt s terasou na střeše ve druhém patře 6-jednotkového domu se vyznačuje díky širokým výhledovým osám a stropní výšce 2,60 m, což působí úžasným pocitem prostoru. Ze všech oken se naskýtá pohled do zeleně. Dobrá nabídka parkovacích míst umocňuje hodnotu bydlení.
Byt disponuje dobře využitelnou jižní terasou orientovanou k hezké zahradě, dvěma dalšími venkovními prostory, moderní vestavěnou kuchyní a otevřeným krbem.
K nabídce patří dále také prakticky využitelná hobby místnost s denním světlem a vodou, sklepní kóje a parkovací místo v podzemní garáži vhodné pro SUV.
Bytový komplex je ve velmi dobrém a reprezentativním stavu. I okolí působí přívětivě a esteticky přitažlivě.
K nastěhování, dobrý stav po rekonstrukci/modernizaci v roce 2020.
Prodej bez provize od vlastníka.
Kupní cena:
1.040.000 € za byt = 7.951 €/m²
30.000 € za parkovací místo
Celkem 1.070.000 €
Nejlepší obytná čtvrť, ulice určená obyvatelům
Velmi klidně a nedaleko idylického břehu řeky Isar!
• Zoologická zahrada Hellabrunn
• Menterschwaige
• Perlachský les
• Běžecké a venčicí trasy
• Stezky pro horská kola
• Veřejný bazén Maria Einsiedl
• Park a jezero Hinterbrühler
• Golfové hřiště
• SUP, kanoe, kajak
• Lezení, bouldering
… vše na krátkou vzdálenost, částečně dostupné pěšky
Nemocnice Harlaching, možnosti nákupů, lékárna, obchodní služby, gastronomie různých národností, pivní zahrady … v přehledné blízkosti
Městská hromadná doprava:
Tramvaj 4 minuty chůze,
odtud 31 minut k Marienplatz.
Automobilem:
7 minut k střednímu okruhu
30 minut k STA-jezeru
8 minut na dálnici Salzburg
směrem k Chiemsee a horským masivům
• Velká jižní střešní terasa
• Prostorná markýza
• Severní terasy + loggia na východní straně
• Výška stropu 2,60 m
• Krb
• Kuchyň vybavená špičkovými spotřebiči Siemens/Blanco
• Chladnička s mrazákem, moderní trouba, indukční varná deska, myčka
• Koupelna s přípojkou pro pračku
• Masivní bambusové parkety
• Světlá hobby místnost s oknem a umyvadlem/přípojkou vody
• Kromě toho sklepní kóje
• Jednotlivé parkovací místo v podzemní garáži (vhodné pro SUV, Range Rover)
• Domovní elektroinstalace upravena pro wallbox
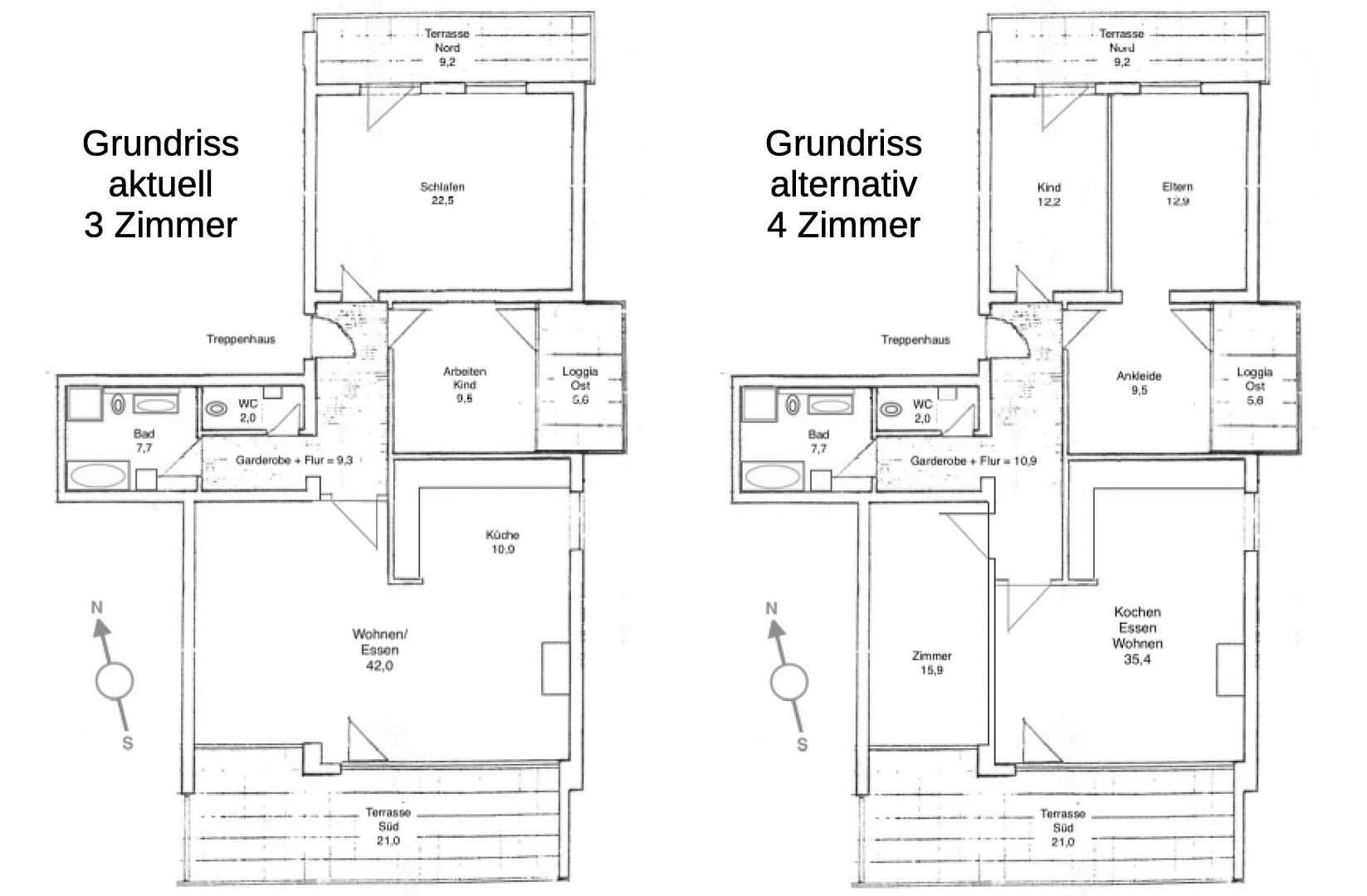
Prostory/ rozměry:
• Obývací pokoj + kuchyně: 52,9 m²
(hlavní rozměry: 7,4 m x 8,5 m)
• Ložnice: 25,5 m²
(5,80 m x 4,40 m)
• Pracovna/dětský pokoj: 9,5 m²
• Koupelna: 7,7 m²
• WC: 2,0 m²
• Chodba: 9,3 m²
• Jižní střešní terasa: 21 m²
• Všechny 3 venkovní prostory: 35,8 m² hrubého, započítáno 16,4 m²
• Hobby místnost: 15,0 m²
(5,6 m x 2,68 m), započítáno 7,5 m²
• Sklepní kóje: 4,0 m²
• Obytná plocha: 130,8 m²
• Užitná plocha: 152,4 m²
Rekonstrukce/modernizace v roce 2020 za cca 150.000 € pro vlastní potřebu majitele (elektro-, vodovodní, topná instalace, okna se sklem, zarovnání stropních podlah a další úpravy).
Společenství vlastníků:
• 6 jednotek
• Topení renovováno koncem roku 2021
• Správní poplatek vyúčtován v roce 2024: 557 € měsíčně
V okolí nemovitosti najdete
Stále hledáte to pravé?
Nastavte si hlídacího psa. Nabídky vybrané na míru dostanete souhrnně 1× denně e-mailem. S Premium profilem máte k ruce hlídačů rovnou 5 a když se něco objeví, informují vás obratem.































